Provisionsfrei: Renovierter 109m² Altbau mit 3 Zimmern und Einbauküche - 1030 Wien

Wohnung , 1030 Wien


Bechardgasse

Beschreibung der Immobilie

Provisionsfrei: Renovierter 109m² Altbau mit 3 Zimmern und Einbauküche - 1030 Wien

Sonniger 109m² Altbau mit 3 Zimmern und Einbauküche in schöner Lage!



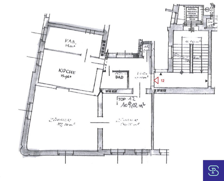
Die angebotene Wohnung ist neu renoviert und befindet sich im 3. Liftstock (nicht barrierefrei!) eines gepflegten Altbaus in der Bechardgasse, nur wenige Schritte vom Kolonitzplatz entfernt. Die ruhige Wohnung ist süd- und ostseitig ausgerichtet und besteht aus 3 Zimmern, Küche, Badezimmer, Vorraum und WC,.



Bezüglich allfälliger WG-Tauglichkeit beachten Sie bitte unbedingt den beigefügten Grundriss sowie die Fotos! 



Ausstattung: Renovierter Altbau mit Einbauküche inkl. Geräten, Gasetagenheizung, Parkettböden, Flügeltüren, Fliesenbad mit Badewanne, Kunststofffenster mit Mehrfachverglasung, Lift (ab Zwischengeschoß, daher nicht barrierefrei), Kabel-TV und Internetvorbereitung, Sprechanlage,.    



Die schöne und zentrale Wohnlage in unmittelbarer Nähe des Kolonitzplatzes bietet zahlreiche Freizeitmöglichkeiten durch die Nähe zur Donaukanal-Promenade und zum Prater. Ebenso ist die Innenstadt zu Fuß in 10 Minuten erreichbar. Sehr gute Infrastruktur durch zahlreiche Einkaufsmöglichkeiten des täglichen Bedarfs im Umkreis der Wohnung und durch die Nähe zu Landstraßer Hauptstraße und Wien Mitte, sowie zum Rochusmarkt. Gute öffentliche Verkehrsanbindung durch U3, U4, Schnellbahn sowie Straßenbahnlinie 1 und O sowie Autobus 4A und 74A.



Die Wohnung wird ab sofort in befristeter Hauptmiete (5 Jahre+) vermietet.

Gesamtmiete inkl. Bk, Lift und 10% USt. € 1.670,32
(HMZ € 1.253,73 + Bk € 196,24 + Lift € 67,59 + 10% USt. € 151,75 + Manip. € 1,-)

Kaution € 5.100,-



KONTAKT: Anfragen bitte nur per Email-Anfragefunktion! Keine telefonische Terminvergabe!




Besuchen Sie für unsere weiteren Angebote bitte auch unsere Homepage: www.sitarz.at


Der Immobilienmakler erklärt, dass er – entgegen dem in der Immobilienwirtschaft üblichen Geschäftsgebrauch des Doppelmaklers – einseitig nur für den Vermieter tätig ist.

Infrastruktur / Entfernungen

Gesundheit
Arzt <500m
Apotheke <500m
Klinik <1.000m
Krankenhaus <1.000m

Kinder & Schulen
Schule <500m
Kindergarten <500m
Universität <500m
Höhere Schule <1.500m

Nahversorgung
Supermarkt <500m
Bäckerei <500m
Einkaufszentrum <500m

Sonstige
Geldautomat <500m
Bank <500m
Post <500m
Polizei <500m

Verkehr
Bus <500m
U-Bahn <500m
Straßenbahn <500m
Bahnhof <500m
Autobahnanschluss <2.500m

Angaben Entfernung Luftlinie / Quelle: OpenStreetMap

Eckdaten Objektnr. 7681

Art: Wohnung
Land: Österreich
Baujahr: 1918
Zustand: Teil_vollsaniert
Alter: Altbau
Gesamtmiete: 1.670,31
Kaltmiete (netto): 1.253,73 €
Kaltmiete: 1.518,56 €
Provision: Gemäß Erstauftraggeberprinzip bezahlt der Abgeber die Provision.
Betriebskosten: 196,24 €
MwSt Gesamt: 151,75 €
Wohnfläche: 109,00 m²
Zimmer: 3
Bäder: 1
WC: 1
Heizwärmebedarf:  D  128,20 kWh/m²a
fGEE:  E  3,04
Immobilie merken Exposé

Ausstattung

Fliesen, Parkett, Gas, Etagenheizung, Einbauküche, Personenaufzug, Badewanne, Kabel/Satelliten-TV


Immobilie anfragen


Ihre persönliche Beratung

Sitarz & Partner Immobilien GmbH

Anna Sitarz

Sitarz & Partner Immobilien GmbH

T +43 664 403 83 83