2-Zimmer-Dachgeschoßwohnung mit Terrasse nahe U1 Troststraße

Wohnung , 1100 Wien , Ettenreichgasse


Beschreibung der Immobilie

2-Zimmer-Dachgeschoßwohnung mit Terrasse nahe U1 Troststraße

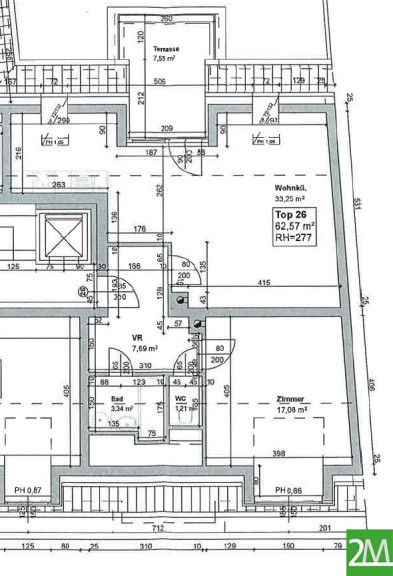
Zur Vermietung gelangt eine 2-Zimmer-Dachgeschoßwohnung mit Terrasse und einer Wohnfläche von rd. 63m². Die Wohnung befindet sich im letzten Liftstock eines älteren Neubaus in der Ettenreichgasse und wird auf 5 Jahre befristet vermietet. Eine Videotour durch die Wohnung steht auf der Plattform zur Verfügung und kann bei Bedarf auch gerne zugeschickt werden. 



WICHTIG: Bitte beachten Sie die Bonitätsvorgaben des Eigentümers, bevor Sie eine Anfrage stellen.



Die wichtigsten Infos zur Wohnung auf einen Blick



  • Geräumige Wohnküche mit Ausgang zur Terrasse (hofseitig)
  • Küche wird voraussichtlich in nächsten 6 Wochen eingebaut
  • Schönes Schlafzimmer mit Fernsicht
  • Badezimmer mit Badewanne und separates WC
  • Zustand: Frisch ausgemalt, Küche wird neu eingebaut, kleinere Sanierungs- und Reinigungsarbeiten (z.B. im Badezimmer) noch offen
  • Betriebskostenanpassung ab 01/2026 ca. 82€/Monat höher
  • Kellerabteil vorhanden
  • Bonität: Haushaltseinkommen mind. 2.750€ netto/Monat (über die Gehaltszettel der letzten drei Monate nachzuweisen), Bürgschaft möglich


Die Anbindung an den öffentlichen Nahverkehr ist durch die Nähe zur U1-Station Troststraße sowie zahlreichen Bus- und Straßenbahnverbindungen in der Umgebung sehr gut gegeben. Auch mit dem Auto sind Sie gut angebunden.



Für weitere Auskünfte sowie eine Besichtigung stehe ich Ihnen jederzeit gerne zur Verfügung.



Mathias Mesaric, MA

2M Immobilien e.U.

Mobil: 0650 80 22 435

Mail: mm@2m-immobilien.at



www.2m-immobilien.at



Hinweis:



Es wird festgehalten, dass die Firma 2M Immobilien e.U. nicht als Doppelmakler, sondern nur einseitig für den Vermieter tätig ist. Nähere Informationen entnehmen Sie bitte dem beiliegenden Informationsblatt.


Wir weisen darauf hin, dass zwischen dem Vermittler und dem zu vermittelnden Dritten ein familiäres oder wirtschaftliches Naheverhältnis besteht.


Der Immobilienmakler erklärt, dass er – entgegen dem in der Immobilienwirtschaft üblichen Geschäftsgebrauch des Doppelmaklers – einseitig nur für den Vermieter tätig ist.

Infrastruktur / Entfernungen

Gesundheit
Arzt <250m
Apotheke <500m
Klinik <750m
Krankenhaus <2.000m

Kinder & Schulen
Schule <250m
Kindergarten <250m
Universität <500m
Höhere Schule <2.750m

Nahversorgung
Supermarkt <250m
Bäckerei <250m
Einkaufszentrum <1.500m

Sonstige
Geldautomat <500m
Bank <500m
Post <500m
Polizei <1.000m

Verkehr
Bus <250m
U-Bahn <500m
Straßenbahn <500m
Bahnhof <500m
Autobahnanschluss <1.250m

Angaben Entfernung Luftlinie / Quelle: OpenStreetMap

Eckdaten Objektnr. 1774

Art: Wohnung
Land: Österreich
Baujahr: 1992
Zustand: Gepflegt
Alter: Neubau
Gesamtmiete: 1.099,80
Kaltmiete (netto): 781,00 €
Kaltmiete: 999,82 €
Provision: Gemäß Erstauftraggeberprinzip bezahlt der Abgeber die Provision.
Betriebskosten: 218,82 €
MwSt Gesamt: 99,98 €
Wohnfläche: 62,57 m²
Zimmer: 2
Bäder: 1
WC: 1
Heizwärmebedarf:  D  103,00 kWh/m²a
fGEE:  D  2,05
Immobilie merken Exposé

Ausstattung

Fliesen, Laminatboden, Zentralheizung, Wohnküche / offene Küche, Personenaufzug, Badewanne


Immobilie anfragen


Ihre persönliche Beratung

2M Immobilien e.U.

Mathias Mesaric, MA

2M Immobilien e.U.

T +43 650 8022435