Exklusives Wohnungspaket - Parkapartmants am Belvedere
Wohnung
,
1100
Wien
Beschreibung der Immobilie
Exklusives Wohnungspaket - Parkapartmants am Belvedere
Alles im Blick haben Sie aus den oberen Etagen dieser einzigartigen Gelegenheit vom Star-Architekten "Renzo Piano" geplanten PARKAPARTMANTS AM BELVEDERE.
Ein Neubauprojekt von Weltrang titelte die Presse bei der Vorstellung des in allen Belangen im Jahr 2019 fertiggestellten, beeindruckenden Projekts.
Die besondere Lage kann kaum attraktiver sein.
Eingebettet zwischen dem großen Grünareal Schweizer Garten, dem botanischen Garten und dem Schlossgarten Belvedere - direkt angrenzend an den 3ten und 4ten Bezirk.
Die 10 Wohnungen:
| W1 | 13te Etage | TOP 1304 | 57,3 WNFL + 5,73 Terrasse | VKP 458.760 Euro | Mietvertrag bis 27.02.2028 |
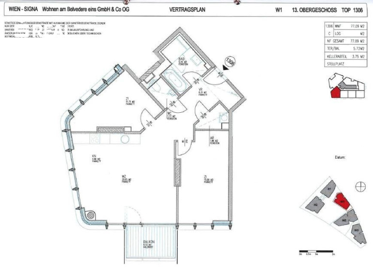
| W1 | 13te Etage | TOP 1306 | 77,9 WNFL + 5,73 Terrasse | VKP 616.720 Euro | Mietvertrag bis 31.05.2027 |
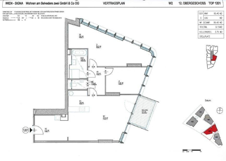
| W2 | 12te Etage | TOP 1201 | 95,4 WNFL + 6,15 Terrasse | VKP 734.580 Euro | Mietvertrag bis 31.03.2029 |
| W2 | 13te Etage | TOP 1306 | 61,4 WNFL + 4,09 Loggia | VKP 491.120 Euro | Mietvertrag bis 30.09.2028 |
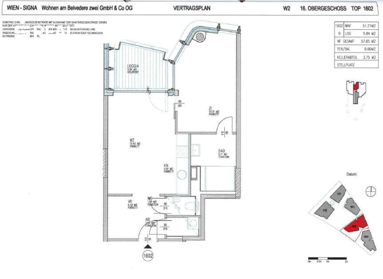
| W2 | 16te Etage | TOP 1602 | 51,2 WNFL + 5,84 Loggia | VKP 460.890 Euro | Mietvertrag bis 31.08.2027 |
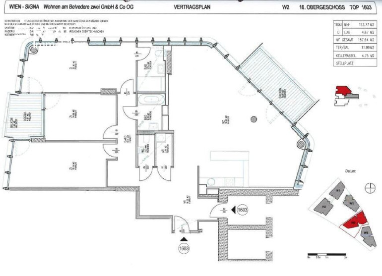
| W2 | 16te Etage | TOP 1603 | 152,7 WNFL + 11,9 Terrasse + 4,87 Loggia | VKP 1.398.394 Euro | Mietvertrag bis 30.04.2026 |
| W3 | 15te Etage | TOP 1509 | 69,7 WNFL + 5,70 Terrasse | VKP 591.643 Euro | Mietvertrag bis 31.10.2027 |
| W3 | 16te Etage | TOP 1609 | 69,7 WNFL + 5,70 Terrasse | VKP 522.750 Euro | Mietvertrag bis 18.12.2026 |
| W3 | 17te Etage | TOP 1701 | 52,9 WNFL + 6,92 Terrasse | VKP 449.552 Euro | Leerstand |
| W3 | 17te Etage | TOP 1709 | 69,6 WNFL + 5,70 Terrasse | VKP 629.236 Euro | Mietvertrag bis 31.12.2028 |
Exzellente Nahversorgung 7 Tage die Woche, perfekte Infrastruktur, beste öffentliche Verkehrsanbindung und kulturelle Angebote liegen in unmittelbarer Nachbarschaft.
Das angebotene Paket besticht durch seinen Querschnitt an verschiedenen Wohnungsgrößen von 52m² bis hin zu 152m² Wohnfläche plus 12m² Terrasse und 5m² Loggia.
Gesamt ca. 757 m² WNFL + ca. 54 m² Terrassenfläche + 14,8 m² Loggia - Zusätzlich sind allen Wohnungen Kellerabteile zugeordnet.
Im Preis inkludiert ist 1 Tiefgaragenstellplatz Preis: 23.406 Euro
3D Rundgang Top 1701 : https://app.immoviewer.com/portal/tour/3104713?accessKey=677d
Infrastruktur / Entfernungen
Gesundheit
Arzt <500m
Apotheke <500m
Klinik <500m
Krankenhaus <1.500m
Kinder & Schulen
Schule <1.000m
Kindergarten <500m
Universität <1.500m
Höhere Schule <1.500m
Nahversorgung
Supermarkt <500m
Bäckerei <500m
Einkaufszentrum <1.000m
Sonstige
Geldautomat <500m
Bank <500m
Post <500m
Polizei <500m
Verkehr
Bus <500m
U-Bahn <1.000m
Straßenbahn <500m
Bahnhof <500m
Autobahnanschluss <1.500m
Angaben Entfernung Luftlinie / Quelle: OpenStreetMap
Eckdaten Objektnr. 960/71874
| Art: | Wohnung |
| Land: | Österreich |
| Baujahr: | 2019 |
| Alter: | Neubau |
| Kaufpreis: | 6.377.000,00 € |
| Provision: | 3% des Kaufpreises zzgl. 20% USt. |
| Wohnfläche: | 757,00 m² |
| Terrassen: | 8 |
| Stellplätze: | 1 |
| Heizwärmebedarf: | B 24,70 kWh/m²a |
| fGEE: | A+ 0,78 |
Ausstattung
Parkett, Fliesen, Fernwärme, Einbauküche, Personenaufzug
Ihre persönliche Beratung
Dieser Makler ist ein offizielles Mitglied des IR – ir.at Mehr Erfahren

