Piaristengasse – Top Location

Wohnung - Etage, 1080 Wien , Piaristengasse


Piaristengasse, Florianigasse

Beschreibung der Immobilie

Piaristengasse – Top Location

79 m² City Apartment im 8. Bezirk



An English description can be found further below.



Lage
Diese elegante 2 Zimmer Wohnung liegt im dritten Stock mit Lift eines klassischen Altbaus in der Josefstadt. Die Wohnlage in der Piaristengasse zählt zu den attraktivsten Bereichen des 8. Bezirks und bietet eine hervorragende städtische Infrastruktur mit zahlreichen Cafés, Geschäften und Restaurants in unmittelbarer Nähe.



Die Wohnung ist vollständig möbliert und sofort bezugsbereit.



Beschreibung
Hohe Räume, Parkettböden und eine ruhige Atmosphäre verleihen dieser Wohnung ihren besonderen Charme. Der helle Wohnsalon bietet einen freundlichen Blick über die umliegenden Dächer, das Schlafzimmer vermittelt ein angenehm ruhiges Wohngefühl.



Die großzügige Küche mit Essbereich bietet viel Platz und verfügt über eine angrenzende Speisekammer. Das Badezimmer ist hell gestaltet und mit einer Badewanne ausgestattet. Zusätzlich gibt es ein separates WC und einen gepflegten Eingangsbereich mit Blick in den Innenhof.



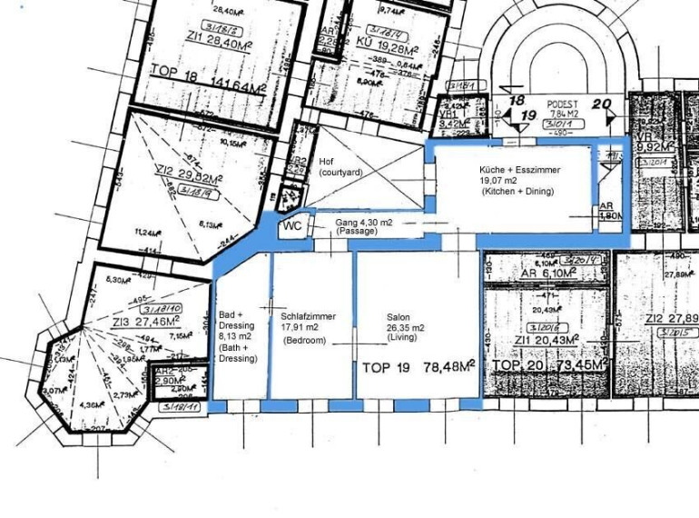
Raumaufteilung
• Wohnsalon ca. 26 m²

• Schlafzimmer ca. 18 m²

• Küche mit Essbereich ca. 19 m²

• Bad mit Badewanne und Waschmaschine

• Separates WC



Öffentliche Verkehrsmittel
In wenigen Gehminuten erreicht man die U-Bahnen U2 und U3 sowie die Straßenbahnlinien 2 und 46 und den Bus 13A.



Kosten
Die monatlichen Gesamtkosten beinhalten die Betriebskosten. Strom und Heizung sind nicht inkludiert.



Die Wohnung wird befristet auf 3 bis 5 Jahre vergeben.



Ich freue mich auf Ihre Anfrage und stehe für eine Besichtigung jederzeit gerne zur Verfügung.



______________________



English



79 m² City Apartment in the 8th District



The apartment is fully furnished and ready to move in.



The Vienna International Centre can be reached by public transport in approximately 24 minutes.



Location
This elegant one-bedroom apartment is located on the third floor with elevator access in a classic period building in Josefstadt. The location on Piaristengasse is one of the most attractive areas of the 8th district, offering excellent urban infrastructure with numerous cafés, shops and restaurants in the immediate vicinity.



Description
High ceilings, parquet flooring and a calm atmosphere give this apartment its special charm. The bright living room offers pleasant views over the surrounding rooftops, while the bedroom provides a quiet and comfortable retreat.



The spacious kitchen with dining area offers plenty of room and includes an adjacent pantry. The bathroom is bright and equipped with a bathtub. There is also a separate toilet and a well-maintained entrance area overlooking the inner courtyard.



Layout
• Living room approx. 26 m²

• Bedroom approx. 18 m²

• Kitchen with dining area approx. 19 m²

• Bathroom with bathtub and washing machine

• Separate toilet



Public Transport
The apartment is just a few minutes’ walk from the U2 and U3 underground lines, tram lines 2 and 46, and bus 13A.



Costs
The monthly total costs include the building operating costs. Electricity and heating are not included.



The apartment is rented for a fixed term of 3 to 5 years.



I look forward to your inquiry and am happy to arrange a viewing at any time.


Hinweis gemäß Energieausweisvorlagegesetz: Ein Energieausweis wurde vom Eigentümer bzw. Verkäufer, nach unserer Aufklärung über die generell geltende Vorlagepflicht, sowie Aufforderung zu seiner Erstellung noch nicht vorgelegt. Daher gilt zumindest eine dem Alter und der Art des Gebäudes entsprechende Gesamtenergieeffizienz als vereinbart. Wir übernehmen keinerlei Gewähr oder Haftung für die tatsächliche Energieeffizienz der angebotenen Immobilie.


Der Immobilienmakler erklärt, dass er – entgegen dem in der Immobilienwirtschaft üblichen Geschäftsgebrauch des Doppelmaklers – einseitig nur für den Vermieter tätig ist.

Infrastruktur / Entfernungen

Gesundheit
Arzt <250m
Apotheke <250m
Klinik <500m
Krankenhaus <750m

Kinder & Schulen
Schule <250m
Kindergarten <250m
Universität <500m
Höhere Schule <500m

Nahversorgung
Supermarkt <250m
Bäckerei <250m
Einkaufszentrum <1.500m

Sonstige
Geldautomat <250m
Bank <250m
Post <250m
Polizei <250m

Verkehr
Bus <250m
U-Bahn <500m
Straßenbahn <250m
Bahnhof <500m
Autobahnanschluss <3.250m

Angaben Entfernung Luftlinie / Quelle: OpenStreetMap

Eckdaten Objektnr. 1990/66

Art: Wohnung - Etage
Land: Österreich
Zustand: Teil_vollrenoviert
Möbliert: Voll
Alter: Altbau
Gesamtmiete: 1.900,00
Kaltmiete (netto): 1.727,27 €
Kaltmiete: 1.727,27 €
Provision: Gemäß Erstauftraggeberprinzip bezahlt der Abgeber die Provision.
MwSt Gesamt: 172,73 €
Wohnfläche: 79,00 m²
Zimmer: 2
Bäder: 1
WC: 1
Immobilie merken Exposé

Ausstattung

Parkett, Fliesen, Gas, Etagenheizung, Einbauküche, Personenaufzug


Immobilie anfragen


Ihre persönliche Beratung

Vienna Housing Service

Mag. Marc Slomovits

Vienna Housing Service

T 06648328757

H 06648328757