Verbundenes Reihenhausduo mit Garten und extra Wohnung- 360 Grad Besichtigung

Haus - Reihenmittelhaus, 5023 Salzburg


Salzburg Stadt, Gnigl

Beschreibung der Immobilie

Verbundenes Reihenhausduo mit Garten und extra Wohnung- 360 Grad Besichtigung

Das attraktive Gesamtkonzept bietet vielseitige Wohn- und Nutzungsmöglichkeiten – vom Mehrgenerationenwohnen über Arbeiten & Wohnen bis zur Kombination aus Eigennutzung und Vermietung.



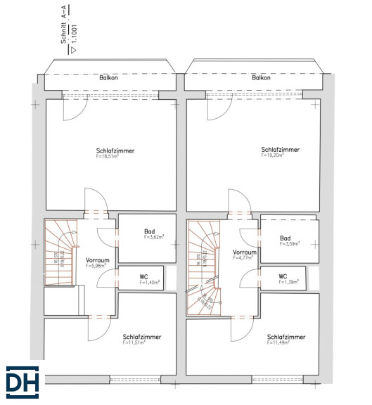
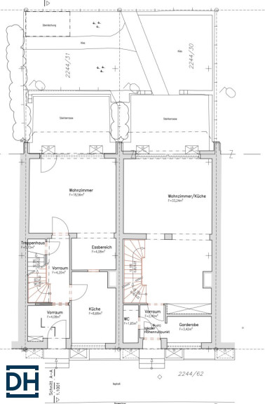
Dieses außergewöhnliche Immobilienensemble besteht aus zwei direkt nebeneinanderliegenden Mittelreihenhäusern, die im 2. Obergeschoss und Dachgeschoss miteinander verbunden wurden.

Dadurch entsteht eine ungewöhnlich großzügige Wohnlösung und Platzangebot.



Haus 1 ( ca. 80m2 Wfl.) umfasst eine 3-Zimmer-Wohnung mit Terrasse und Keller, die derzeit gut vermietet ist – ideal für Eigennutzer mit zusätzlichem Mietertrag.



Haus 2 ( ca. 293 m2 Nfl. ) ist ab dem 2. Obergeschoss mit Haus 1 verbunden und bietet dadurch ein erweitertes Raumkonzept. Der Dachgeschossbereich ist ausgebaut, zählt jedoch nicht zur Wohnfläche, die Galerie bietet dennoch wertvolle zusätzliche Nutzfläche. 6 großzügige Zimmer, 2 Bäder, Gäste WC, eine vollausgestattete Küche, Balkon, Terrasse und Garten, Keller , sowie 2 Freistellplätze  runden das Angebot ab.

Für genauere Informationen und Details inkl. 360 Grad Besichtigung schicken wir Ihnen gerne ein Exposé.



Irrtum und Änderungen vorbehalten!


Alle Angaben sind ohne Gewähr und basieren ausschließlich auf Informationen, die uns von unserem Auftraggeber bzw. Kooperationspartner übermittelt wurden. 


Wir übernehmen keine Gewähr für die Vollständigkeit, Richtigkeit und Aktualität dieser Angaben. Zwischenverkauf bleibt vorbehalten.

Noch nichts gefunden? Wir informieren Sie über geeignete Immobilienangebote noch vor allen anderen.
Legen Sie jetzt Ihren individuellen Suchagenten unter folgendem Link an. Wir schicken Ihnen passende Immobilien exklusiv vorab zu.

Suchagent anlegen - https://d-h.service.immo/registrieren/de

Infrastruktur / Entfernungen

Gesundheit
Arzt <1.000m
Apotheke <1.500m
Klinik <2.500m
Krankenhaus <3.000m

Kinder & Schulen
Schule <500m
Kindergarten <500m
Universität <2.500m
Höhere Schule <1.500m

Nahversorgung
Supermarkt <1.000m
Bäckerei <500m
Einkaufszentrum <2.000m

Sonstige
Bank <1.000m
Geldautomat <1.000m
Post <1.500m
Polizei <1.500m

Verkehr
Bus <500m
Bahnhof <1.000m
Autobahnanschluss <1.000m
Flughafen <6.500m

Angaben Entfernung Luftlinie / Quelle: OpenStreetMap

Eckdaten Objektnr. 6738/134

Art: Haus - Reihenmittelhaus
Land: Österreich
Baujahr: 1970
Kaufpreis: 1.190.000,00
Provision: 3% des Kaufpreises zzgl. 20% USt.
Wohnfläche: 246,87 m²
Nutzfläche: 416,45 m²
Grundstücksfl.: 333,00 m²
Zimmer: 9
Bäder: 3
WC: 2
Balkone: 2
Terrassen: 2
Stellplätze: 2
Keller: 84,24 m²
Heizwärmebedarf:  C  63,00 kWh/m²a
fGEE:  C  1,20
Immobilie merken Exposé

Ausstattung

Parkett, Öl, Zentralheizung, Einbauküche, Badewanne, Parkplatz


Immobilie anfragen


Ihre persönliche Beratung

D&H GmbH Immobilien

Alfred Hofer

D&H GmbH

T +43 676 82544808

H 004367682544808