Neues Zuhause mit Aussicht: Zwei Ebenen, Doppelgarage und Panorama pur

Haus , 9433 St. Andrä


In der Gemeinde St. Andrä im Lavanttal (Bezirk Wolfsberg) liegt diese Liegenschaft auf den sanften Hügeln des Lavantals auf 434m Seehöhe im Ortsteil Wölzing-Fischerring. Die Stadt Wolfsberg mit umfassender Infrastruktur ist nur ca. 8 km entfernt. Der Bahnhof Lavanttal, oft auch als Koralm Bahnhof bezeichnet, ist ein zentraler Bestandteil der neuen Koralmbahn, die Graz und Klagenfurt verbindet. In der Nähe von St. Paul im Lavanttal, also nur etwa 10–15 Autominuten von Wölzing-Fischering entfernt und wird ab Ende 2025 vollständig in Betrieb sein. Die Anbindung an die A2 (Südautobahn) bedindet sich direkt bei der Auffahrt St. Andrä. Sie erreichen mit dem Auto Klagenfurt-Zentrum in 45 Minuten.

Beschreibung der Immobilie

Neues Zuhause mit Aussicht: Zwei Ebenen, Doppelgarage und Panorama pur

Einfamilienhaus mit großzügiger Wohnfläche und viel Licht | 2 Ebenen - Garten auf die Süd-Westseite | Doppelgarage | St. Andrä

Charmante Substanz mit Platz für Modernisierung – machen Sie es zu Ihrem maßgeschneiderten Zuhause.



Wir bieten ein echtes Wohnjuwel aus den späten 70er-Jahren, das mit seiner großzügigen Wohnfläche und einem Wohnkeller beeindruckt. Dieses charmante Einfamilienhaus befindet sich im sanften Dornröschenschlaf und wartet darauf, wieder zum Leben erweckt zu werden. Umgeben von einem weitläufigen Garten, bietet die Liegenschaft nicht nur Raum zur Entfaltung – sondern auch zahllose Möglichkeiten für Familien, Paare mit Bedarf für eventuelle berufliche Räume, oder kreative Wohnkonzepte vor allem als Rückzugsort mit Panoramablick.



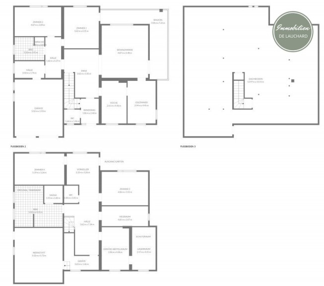
Raumaufteilung & Eckdaten:



Erdgeschoss:



  • Eingangsbereich: Windfang & WC mit Handwaschbecken
  • Diele (großzügig aufgeteilt - Zugang in alle Räume)
  • Küche
  • Esszimmer
  • Wohnzimmer (Panoramablick auf die Koralm) mit Kachelofen & Balkon
  • 2 Schlafzimmer
  • Badezimmer mit WC
  • Abstellraum (neben Badezimmer)
  • Garage - Durchgang ins Haus möglich
  • Eingang durch den Vorgarten


Kellergeschoss:



  • 2 Zimmer (die als Zimmer genutzt wurden)
  • Heizraum: wurde auch als Wohnraum genutzt
  • Vorkeller
  • WC
  • Sauna mit Ruhebereich: Dusche, Becken (ehemals Tankraum lt. Plan)
  • Werkstatt (mit Ausgang in den Garten)
  • Abstellraum (ehemals Gemüsekeller)
  • "Schutzraum" - teilweise Erdkeller
  • Ausgang in den Garten


Dachgeschoss:



  • Rohdachboden
  • Pfettendach mit Eterniteindeckung


Sonstiges:



  • Verordnungen zu den Bebauungsvorschriften der Gemeinde St. Andrä für den gegenständlich Ortsteil sind bei uns aufliegend
  • Bauakt & Einreichplan aufliegend
  • Der Grundriss ist ein schematischer Grundriss mittels Kamerasoftware zur Ihrer Orientierungshilfe
  • Lärmschutzwand zur Packer Straße
  • Doppelgarage
  • In der Bilderfolge befinden sich auch virtuelle Möblierungsideen - das Haus ist grundsätzlich sanierungsbedürftig
  • Stromheizung, Kachelofen


Kosten: Richtpreis € 259.000,-- der je nach Anfragesituation nach oben oder nach unten gehen kann



Wir freuen uns darauf, auf Ihre ANFRAGE per E-mail zu erhalten - sehr gerne können wir danach telefonieren. Eine Zuordnung der Anfragen nach Namen ist äußerst hilfreich.



Bitte haben Sie Verständnis dafür, dass wir aus Datenschutzgründen ausschließlich Anfragen mit vollständigen Kontaktdaten beantworten können. Vielen Dank für Ihr Verständnis.Aufgrund der Nachweispflicht gegenüber dem Abgeber und um die rasche Übermittlung weiterer Informationen und Unterlagen zu gewährleisten, übermitteln Sie bitte Ihre vollständigen Kontaktdaten im Zuge Ihrer Anfrage auf der jeweiligen Immobilienplattform:



  • Vor- und Nachname
  • Aktuelle Wohnadresse
  • Telefonnummer
  • E-Mail Adresse


Gemäß § 5 Abs. 3 MaklerG wird auf eine mögliche Doppelmaklertätigkeit hingewiesen. Die Angaben beruhen auf Informationen der Eigentümer und/oder Dritter und sind ohne Gewähr. Irrtümer und Änderungen vorbehalten!



(c) Mario Zaunschirm - Immobilienfotograf Kärnten






Der Vermittler ist als Doppelmakler tätig.

Infrastruktur / Entfernungen

Gesundheit
Arzt <4.500m
Apotheke <1.000m
Krankenhaus <7.000m

Kinder & Schulen
Schule <1.000m
Kindergarten <3.500m
Höhere Schule <7.000m

Nahversorgung
Supermarkt <500m
Bäckerei <5.000m
Einkaufszentrum <8.000m

Sonstige
Bank <1.000m
Post <1.000m
Geldautomat <1.000m
Polizei <2.000m

Verkehr
Bus <1.000m
Autobahnanschluss <1.500m
Bahnhof <2.500m
Flughafen <5.000m

Angaben Entfernung Luftlinie / Quelle: OpenStreetMap

Eckdaten Objektnr. 5597/398

Art: Haus
Land: Österreich
Baujahr: 1977
Zustand: Sanierungsbeduerftig
Kaufpreis: 259.000,00
Provision: 9.324,00 € inkl. 20% USt.
Wohnfläche: 232,00 m²
Nutzfläche: 255,00 m²
Grundstücksfl.: 1.080,00 m²
Zimmer: 6
Bäder: 2
WC: 3
Balkone: 1
Heizwärmebedarf:  F  169,20 kWh/m²a
fGEE:  E  2,92
Immobilie merken Exposé

Ausstattung

Elektro, Fußbodenheizung, Kamin, Bad mit Fenster, Garage


Immobilie anfragen


Ihre persönliche Beratung

Lauchard Immobilien e.U.

Denise Lauchard

Lauchard Immobilien e.U.

T +43 664 523 49 22