Bürofläche in Bestlage am Parkring

Büro / Praxis , 1010 Wien


Direkt am Parkring, vis-à-vis des Stadtparks Hervorragende Erreichbarkeit: - U4 Stadtpark - U3 Stubentor Straßenbahnlinien: - 2 - 71 - D Vielfältiges Angebot im unmittelbaren Umfeld: - Gastronomie - Hotels - Banken

Beschreibung der Immobilie

Bürofläche in Bestlage am Parkring

Sehr geehrte Damen und Herren,



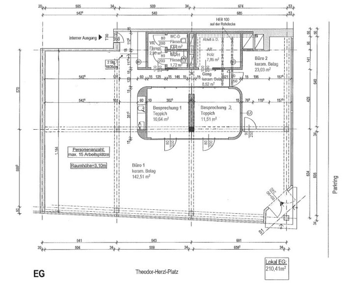
zur Vermietung gelangt diese moderne Geschäfts- bzw. Bürofläche in ausgezeichneter Lage am Parkring, direkt gegenüber dem Stadtpark. Die Einheit umfasst rund 210 m² und bietet durch ihre Position im Herzen des 1. Bezirks ein sehr gut angebundenes sowie hochwertiges Arbeitsumfeld. Die Bürofläche eignet sich sowohl für klassische Raumstrukturen als auch für offene Arbeitskonzepte und lässt sich flexibel an individuelle Anforderungen anpassen.



Das unmittelbare Umfeld zeichnet sich durch eine breite Auswahl an Restaurants, Cafés, Hotels und Geschäften aus – ideal für Mittagspausen, Kundentermine oder Abendtermine nach Büroschluss.



Auf Wunsch können zwei Garagenstellplätze zusätzlich angemietet werden.



Fast Facts



  • Gesamtfläche: 210,41 m²
  • Großraumbereich
  • Empfangsbereich mit Wartezone
  • Zwei separat nutzbare Besprechungsräume
  • Teeküche
  • Zwei Sanitäranlagen (Damen/Herren)
  • optional: Anmietung von zwei Garagenstellplätzen netto EUR 432,80


Kosten



  • Miete: EUR 25,76 / m² / Monat (netto)
  • Betriebskosten: EUR 8,60 / m² / Monat (netto)
  • Miete netto: EUR 5.420,57 
  • BK netto: EUR 1.810,--
  • Garagenstellplatz SP1/SP2 (EUR 216,40 x 2) > EUR 432,80 (netto)


 



Für Rückfragen oder zur Vereinbarung eines Besichtigungstermins stehe ich Ihnen jederzeit gerne zur Verfügung.



Ich freue mich auf Ihre Nachricht.


Wir weisen darauf hin, dass zwischen dem Vermittler und dem zu vermittelnden Dritten ein familiäres oder wirtschaftliches Naheverhältnis besteht.


Der Vermittler ist als Doppelmakler tätig.

Infrastruktur / Entfernungen

Gesundheit
Arzt <500m
Apotheke <500m
Klinik <500m
Krankenhaus <1.000m

Kinder & Schulen
Schule <500m
Kindergarten <500m
Universität <500m
Höhere Schule <1.500m

Nahversorgung
Supermarkt <500m
Bäckerei <500m
Einkaufszentrum <1.000m

Sonstige
Geldautomat <500m
Bank <500m
Post <500m
Polizei <1.000m

Verkehr
Bus <500m
U-Bahn <500m
Straßenbahn <500m
Bahnhof <500m
Autobahnanschluss <3.000m

Angaben Entfernung Luftlinie / Quelle: OpenStreetMap

Eckdaten Objektnr. 271544815

Art: Büro / Praxis
Land: Österreich
Zustand: Voll_saniert
Alter: Neubau
Kaltmiete (netto): 5.420,57 €
Kaltmiete: 7.230,57 €
Miete / m²: 25,76 €
Betriebskosten: 1.810,00 €
MwSt Gesamt: 1.446,11 €
Nutzfläche: 210,41 m²
Zimmer: 3
WC: 2
Immobilie merken Exposé

Ausstattung

Parkett, Personenaufzug, Teeküche


Immobilie anfragen


Ihre persönliche Beratung

Immobiliaris GmbH

Mag. Bernhard Kramer-Drauberg

Immobiliaris GmbH

T +43 650 777 28 96