Stabiles Investment mit ca. 5,05% Rendite! Sehr bonitätsstarker Mieter + Traumhaftes Eck-Altbauhaus + Perfekte Infrastruktur und Anbindung mit Straßenbahn vor der Türe! Nutzen Sie diese Gelegenheit!

Zinshaus Renditeobjekt , 1160 Wien,Ottakring , Ottakringer Straße


Zwischen Wilhelminenberg und Innenstadt - ein liebevoller Mix der für jeden Etwas dabei hat... Profitieren Sie von einer tollen Infrastruktur! Alle Geschäfte des täglichen Bedarfs befinden sich in Gehweite, ebenso Schulen, Kindergärten, 2 Parkanlagen und zahlreiche Cafés und Lokale. Der nahe Wilhelminenberg oder die Steinhof Gründe laden zu ausgiebigen Ausflügen ein. Danach kann man die Seele in einem der zahlreichen Heurigen mit Blick über ganz Wien baumeln lassen. Öffentliche Anbindung: Straßenbahn 2, 9, 44, 1, 43 sowie Bus 10A

Beschreibung der Immobilie

Stabiles Investment mit ca. 5,05% Rendite! Sehr bonitätsstarker Mieter + Traumhaftes Eck-Altbauhaus + Perfekte Infrastruktur und Anbindung mit Straßenbahn vor der Türe! Nutzen Sie diese Gelegenheit!

TOP-Investment! Sehr bonitätsstarker Mieter + Traumhaftes Eck-Altbauhaus + Perfekte Infrastruktur und Anbindung mit Straßenbahn vor der Türe! Nutzen Sie diese Gelegenheit!



Nutzen Sie diese tolle Möglichkeit - Tolles Preis-Leistungs-Verhältnis!





Ihre neues Investment wird Sie begeistern - beim Mieter handelt es sich um ein langjährig bestehendes und stabiles Unternehmen. Mit diesem Ambulatorium als Mieter, der perfekten Sichtbarkeit und Anbindung mit der Straßenbahnstation vor der Türe, wertgesicherten Mieteinnahmen, einem traumhaften Altbauhaus sowie einem fairen Kaufpreis, wird diese Immobilie zu einer idealen Anlage!





Aktuell werden auch mehrere Wohnungen mit Größen zwischen 32m² und 130m² verkauft! Gerne schicken wir Ihnen zu sämtlichen Wohnungen Informationen zu und besichtigen vor Ort alle interessanten Objekte!





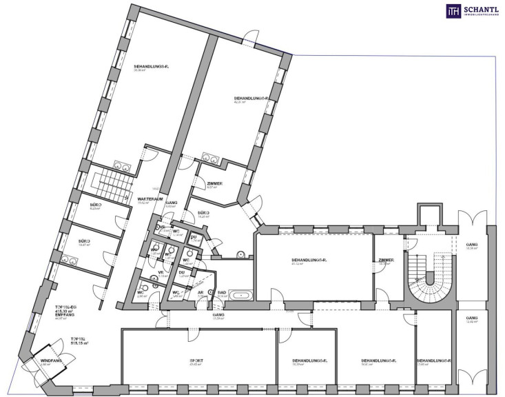
Nutzfläche: ca. 515,15m² + Keller/Lager: ca. 90m²



Kaufpreis: € 1.190.000.-



Aktuelle Mieteinnahmen: € 60.128.-





Folgende Wohnungen haben bereits glückliche neue Eigentümer: TOP 6, TOP 4, TOP 7a, TOP 5, TOP 6a, TOP 10, TOP 11, TOP 11a, TOP 15, TOP 16, TOP 17



Zögern Sie nicht! Dieses tolle Investment wird nicht lange zu haben sein... Wir beraten Sie gerne!



www.schantl-ith.at





Bei konkretem Interesse senden wir Ihnen sehr gerne weiterführende Dokumente zu, wie:



o Grundbuchauszug



o Wohnungseigentumsvertrag



o Nutzwertgutachten



o Eigentümerversammlungsprotokoll (Falls vorhanden) etc...





Unser Service für Sie: Wenn Sie sich für diese Immobilie entschieden haben, begleiten wir Sie gerne vom Kaufanbot weg inkl. Klärung von Sonderwünschen und der Vertragsunterzeichnung über die Wohnungsübergabe bis hin zu diversen Ummeldungen wie Strom und Gas. Entsprechende Formulare oder auch Meldezettel stellen wir Ihnen sehr gerne zur Verfügung.



Gerne unterstützen wir Sie auch bei der Finanzierung Ihres Traumobjekts und finden mit unseren langjährigen Partnern die besten Konditionen für Sie.



Vereinbaren Sie noch heute einen Termin, wir beraten Sie gerne!



www.schantl-ith.at


Wir weisen darauf hin, dass zwischen dem Vermittler und dem zu vermittelnden Dritten ein familiäres oder wirtschaftliches Naheverhältnis besteht.


Der Vermittler ist als Doppelmakler tätig.

Infrastruktur / Entfernungen

Gesundheit
Arzt <250m
Apotheke <250m
Klinik <250m
Krankenhaus <1.500m

Kinder & Schulen
Schule <500m
Kindergarten <250m
Universität <1.250m
Höhere Schule <1.000m

Nahversorgung
Supermarkt <500m
Bäckerei <250m
Einkaufszentrum <1.000m

Sonstige
Geldautomat <500m
Bank <500m
Post <500m
Polizei <500m

Verkehr
Bus <250m
U-Bahn <1.000m
Straßenbahn <250m
Bahnhof <1.250m
Autobahnanschluss <4.250m

Angaben Entfernung Luftlinie / Quelle: OpenStreetMap

Eckdaten Objektnr. 291110

Art: Zinshaus Renditeobjekt
Land: Österreich
Baujahr: 1894
Zustand: Voll_saniert
Möbliert: Voll
Alter: Altbau
Kaufpreis: 1.190.000,00
Kaufpreis / m²: 2.310,01 €
Provision: 3% des Kaufpreises zzgl. 20% USt.
Betriebskosten: 985,67 €
MwSt Gesamt: 98,57 €
Nutzfläche: 515,15 m²
Bürofläche: 515,15 m²
Zimmer: 11
Bäder: 2
WC: 6
Keller: 89,95 m²
Heizwärmebedarf:  C  87,60 kWh/m²a
fGEE:  D  1,80
Immobilie merken Exposé

Ausstattung

Parkett, Fliesen, Gas, Zentralheizung, Personenaufzug, Dusche, Badewanne, Kabel/Satelliten-TV, Teeküche


Immobilie anfragen


Ihre persönliche Beratung

Schantl ITH Immobilientreuhand GmbH

Samir Agha-Schantl

Schantl ITH Immobilientreuhand GmbH

T 0043 664 3070009

H 0043 660 4701793