Vielseitig nutzbare, sanierte Praxis / Wohnung in zentraler Bahnhofsnähe in Brunn am Gebirge – Kauf oder Miete möglich!

Wohnung , 2345 Brunn am Gebirge


Beschreibung der Immobilie

Vielseitig nutzbare, sanierte Praxis / Wohnung in zentraler Bahnhofsnähe in Brunn am Gebirge – Kauf oder Miete möglich!

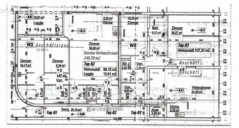
Zum Verkauf gelangt eine großzügige Praxisfläche mit rund 195 m² und insgesamt sieben bestens aufgeteilten Räumen in Brunn am Gebirge – nur wenige Schritte vom Bahnhof entfernt.



Das Objekt wurde Mitte 2025 umfassend saniert und speziell für eine Augenarztpraxis vorbereitet. Sämtliche Räume sind klimatisiert, die Ordinationsräume verfügen über Handwaschbecken, und die komplette EDV-Verkabelung ist bereits vorhanden. Die medizinischen Geräte müssen lediglich angeschlossen werden – eine kurzfristige Inbetriebnahme ist somit problemlos möglich.



Die Praxis entstand durch die Zusammenlegung zweier Einheiten (ca. 88 m² + 107 m²) und kann bei Bedarf wieder getrennt und als zwei separate Wohnungen genutzt werden.



Eine weitere, vollständig sanierte Wohnung direkt nebenan – mit rund 87 m² und drei Zimmern – steht optional ebenfalls zur Verfügung.



Die barrierefreie Einheit befindet sich im Erdgeschoss, gartenseitig im ruhigen Hoftrakt und damit geschützt hinter dem straßenseitigen Wohngebäude. Die Praxis verfügt zudem über einen eigenen, vom Wohnhaus getrennten Zugang – ideal für Patientenverkehr.



Ein Garagenplatz befindet sich direkt vor dem Gebäude ist im ebenfalls zu erwerben.





- Highlights- 



- großzügige Fläche mit ca. 195 m²



- 7 optimal aufgeteilte Räume – ideal für medizinische Nutzung



- Komplette Sanierung Mitte 2025



- Klimaanlage in allen Räumen



- Ordinationsräume mit Handwaschbecken



- EDV-Verkabelung vollständig vorhanden



- Barrierefreie Erdgeschosslage



- Ruhige Hoflage 



- Eigener, separat geführter Zugang



- Flexibel nutzbar / wieder trennbar in zwei Einheiten (88 m² + 107 m²)



- Garagenplatz direkt vor dem Haus verfügbar



- Unmittelbare Bahnhofsnähe – ideal für Patienten und Mitarbeiter







Lage:



Die Praxis befindet sich in zentraler und dennoch ruhiger Lage in Brunn am Gebirge. Nur wenige Schritte entfernt liegt der Bahnhof Brunn-Maria Enzersdorf, der eine hervorragende öffentliche Anbindung nach Wien, Mödling und die umliegenden Bezirke bietet. Geschäfte des täglichen Bedarfs, Gastronomie, Arztpraxen sowie kommunale Einrichtungen liegen in fußläufiger Entfernung.



Die schnelle Anbindung an die A2 und die Südosttangente (A23) macht den Standort auch für Patienten mit dem Auto optimal erreichbar. Die gartenseitige Hoflage sorgt gleichzeitig für ein angenehmes, ruhiges Arbeits- und Patientenumfeld – fern vom Straßenlärm und ideal für Ordination, Therapie oder medizinische Dienstleistungen.





Bei Interesse, weiteren Fragen oder dem Wunsch nach einer Besichtigung, steht Ihnen Thomas Berger unter 0676 / 963 55 85 oder tb@allesgefunden.at gerne und jederzeit zur Verfügung.



Das Expose mit Detailauskünften zu dieser Immobilie erhalten Sie auf Anfrage!



Alle Angaben wurden uns direkt vom Verkäufer sowie Behörden zur Verfügung gestellt



Für die Richtigkeit und Vollständigkeit der uns zur Verfügung gestellten Unterlagen/Auskünfte durch Veräußerer, Behörden usw. übernehmen wir keine Gewähr. Eigene Haftung ist ausgeschlossen.


Wir weisen darauf hin, dass zwischen dem Vermittler und dem zu vermittelnden Dritten ein familiäres oder wirtschaftliches Naheverhältnis besteht.


Der Vermittler ist als Doppelmakler tätig.

Infrastruktur / Entfernungen

Gesundheit
Arzt <500m
Apotheke <500m
Klinik <3.000m
Krankenhaus <2.000m

Kinder & Schulen
Schule <500m
Kindergarten <500m
Universität <9.500m
Höhere Schule <3.500m

Nahversorgung
Supermarkt <1.000m
Bäckerei <500m
Einkaufszentrum <2.500m

Sonstige
Bank <500m
Geldautomat <500m
Post <500m
Polizei <1.000m

Verkehr
Bus <500m
U-Bahn <3.500m
Straßenbahn <4.000m
Bahnhof <500m
Autobahnanschluss <1.500m

Angaben Entfernung Luftlinie / Quelle: OpenStreetMap

Eckdaten Objektnr. 1401

Art: Wohnung
Land: Österreich
Baujahr: 1969
Zustand: Erstbezug
Alter: Neubau
Kaufpreis: 630.000,00
Provision: 3% des Kaufpreises zzgl. 20% USt.
Nutzfläche: 195,42 m²
Zimmer: 7
Bäder: 2
WC: 2
Keller: 9,40 m²
Heizwärmebedarf:  D  133,40 kWh/m²a
fGEE:  D  1,93
Immobilie merken Exposé

Immobilie anfragen


Ihre persönliche Beratung

FLORA PLUS Forschungs- und Projekt GmbH

Thomas Berger

FLORA PLUS Forschungs- und Projekt GmbH. allesgefunden.at

T ‭+43 676 963 55 85‬