Sanierungsbedürftiger Altbau: 59 m², Potenzial für Wohnen, Büro oder Praxis, beim AKH Wien

Wohnung , 1090 Wien


Die Lage im Alsergrund, direkt beim AKH Wien zählt zu den beliebtesten Wohngegenden der Stadt. Die Nähe zu U6, mehreren Straßenbahnlinien sowie dem Franz-Josefs-Bahnhof sorgt für eine hervorragende Verkehrsanbindung. In direkter Nähe befinden sich Nahversorgern, Lokale, Apotheken und Ärzten sowie das AKH Wien oder das St. Anna Kinderspital.

Beschreibung der Immobilie

Sanierungsbedürftiger Altbau: 59 m², Potenzial für Wohnen, Büro oder Praxis, beim AKH Wien

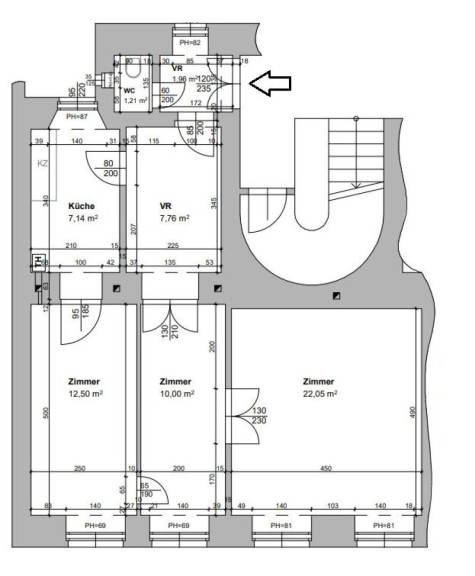
Diese rund 59 m² große Altbauwohnung im Erdgeschoß eines typischen Wiener Gründerzeithauses bietet eine attraktive Ausgangsbasis für eine individuell gestaltete Stadtwohnung im beliebten 9. Bezirk. Die großzügigen Raumhöhen, die gewölbten Decken und die klassischen Innentüren verleihen der Wohnung bereits jetzt einen charaktervollen Rahmen, der nach einer Sanierung wieder zur Geltung gebracht werden kann.



In zentraler Lage, direkt beim Walter-Beck-Platz, liegt diese sanierungsbedürftige Wohnung mit gutem Grundriss im Erdgeschoß. Der ca. 1880 errichtete Stilaltbau erstrahlt mit wunderschön gegliederter Fassade.



Der derzeitige Zustand der Wohnung erfordert eine umfassende Sanierung, mit viel Raum für Flexibilität: eine klassische 2-Zimmer-Wohnung nutzen als auch – je nach Bedarf – für alternative Zwecke, Praxis, Büro oder Atelier (vorbehaltlich behördlicher Genehmigungen). Die Erdgeschoßlage ist leicht zugänglich und bietet eine gute Basis für unterschiedliche Wohn- und Nutzungskonzepte.



Diese Wohnung eignet sich besonders für Eigennutzer, die ein Sanierungsprojekt mit Altbaucharme suchen und sich in einer der ruhiger Umgebung des Alsergrunds ein eigenes Wohn- oder Arbeitsumfeld schaffen möchten.


Wir weisen darauf hin, dass zwischen dem Vermittler und dem zu vermittelnden Dritten ein familiäres oder wirtschaftliches Naheverhältnis besteht.


Der Vermittler ist als Doppelmakler tätig.

Infrastruktur / Entfernungen

Gesundheit
Arzt <500m
Apotheke <500m
Klinik <500m
Krankenhaus <500m

Kinder & Schulen
Schule <500m
Kindergarten <500m
Universität <500m
Höhere Schule <500m

Nahversorgung
Supermarkt <500m
Bäckerei <500m
Einkaufszentrum <1.500m

Sonstige
Geldautomat <500m
Bank <500m
Post <500m
Polizei <1.000m

Verkehr
Bus <500m
U-Bahn <500m
Straßenbahn <500m
Bahnhof <500m
Autobahnanschluss <3.000m

Angaben Entfernung Luftlinie / Quelle: OpenStreetMap

Eckdaten Objektnr. 1609/46521

Art: Wohnung
Land: Österreich
Baujahr: 1880
Zustand: Sanierungsbeduerftig
Alter: Altbau
Kaufpreis: 220.000,00
Provision: 7.920,00 € inkl. 20% USt.
Betriebskosten: 107,03 €
MwSt Gesamt: 21,41 €
Wohnfläche: 58,98 m²
Zimmer: 2
WC: 1
Heizwärmebedarf:  C  67,70 kWh/m²a
fGEE:  D  2,15
Immobilie merken Exposé

Ausstattung

Gas, Etagenheizung


Immobilie anfragen


Ihre persönliche Beratung

RE/MAX First - REM Immobilienmakler GmbH & Co KG

Melanie Kloster

RE/MAX First - REM Immobilienmakler Gmbh & Co KG