Bestlage Unter-Sievering! Liebevoll modernisierte 2,5 bis 3,5-Zimmer-Erstbezug-Wohnung mit Doppelgarage und Gartennutzung

Wohnung , 1190 Wien


Beschreibung der Immobilie

Bestlage Unter-Sievering! Liebevoll modernisierte 2,5 bis 3,5-Zimmer-Erstbezug-Wohnung mit Doppelgarage und Gartennutzung

Zwischen Sieveringer Straße und Krottenbachstraße gelegen, gelangt diese lichtdurchflutete 2,5-Zimmer-Erstbezug-Wohnung mit optionaler Doppelgarage und Gartennutzung in Grünruhelage des 19. Wiener Gemeindebezirks zum sofortigen Verkauf.



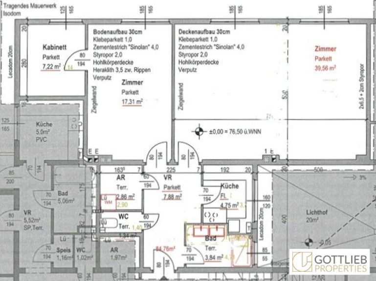
Diese gut geschnittene, lichtdurchflutete Wohnung mit ca. 85 m² Wohnfläche ist südwestseitig ausgerichtet und beinhaltet einen geräumigen Vorraum, von dem aus man einen ca. 40 m² großen Wohn-Ess-Bereich mit offenem Kamin, ein ruhig gelegenes, ca. 17 m² großes Schlafzimmer, eine komplett ausgestattete Küche, ein Tageslicht-Duschbad, einen Abstellraum mit Waschmaschinen-Anschluss sowie eine separate Toilette erreicht. Das kleine ca. 7 m² große Kabinett ist vom Schlafzimmer aus begehbar.



Ein weiteres Schlafzimmer kann nach Vereinbarung vom Wohn-Ess-Bereich abgetrennt und somit eine 3,5-Zimmer-Wohnung gestaltet werden.



Der Wohnung ist ein geräumiger Abstellraum zugeordnet.



Die Doppelgarage (€ 50.000) und der Abstellraum (€ 9.000) sind nicht im Kaufpreis inkludiert und sind um gesamt € 59.000 mit der Wohnung zu erwerben.





+ absolute Grünruhelage



+ Hochparterre



+ ca. 84,76 m² Wohnfläche



+ ca. 39,56 m² Wohn-Ess-Bereich



+ ca. 4,75 m² Küche



+ ca. 17,31 m² Schlafzimmer



+ ca. 7,22 m² Kabinett / Kinderzimmer / Büro



+ ca. 3,84 m² Tageslicht-Duschbad



+ separate Toilette



+ ca. 2,86 m² Abstellraum



+ ca. 7,88 m² Vorzimmer



+ der Wohnung ist ein Kellerabteil zugeordnet



+ Abstellraum



+ Doppelgarage





 Ausstattung



+ offener Kamin



+ Gasetagenheizung mit Therme der Marke "Vaillant"



+ Vollholz-Parkettböden



+ Fliesenböden in den Nassräumen und im Abstellraum



+ Tageslicht-Einbauküche komplett mit Kühl-Gefrierkombination, Herd mit Ceranfeld und Backrohr, Dunstabzug und Geschirrspülmaschine



+ Tageslicht-Duschbad mit bodenebener Glaswand-Dusche, Doppelwaschtisch mit Unterschrank und Spiegel sowie Handtuchwärmer



+ separate Toilette mit Handwaschbecken



+ Abstellraum mit Waschmaschinen-Anschluss



+ Innenjalousien



+ Gegensprechanlage



+ Beleuchtung und Stromanschluss in der Garage



+ Garten zur Allgemeinnutzung



+ Waschküche / Trockenraum zum Anschluss der eigenen Geräte



+ kleine "Außenküche" in der Doppelgarage





Verkehrsanbindung



+ Autobus-Linien 35A und 39A



+ S-Bahn-Linie S 45



+ Strassenbahn-Linie 38



Mit dem PKW erreichen Sie die Wiener Innenstadt in ca. 20 Minuten.





Lage und Infrastruktur



Der 19. Wiener Gemeindebezirk "Döbling" zählt zu den beliebtesten Wohnlagen Wiens. In der Sieveringer Straße, der Krottenbachstrasse und deren Seitengassen finden Sie sämtliche Geschäfte des täglichen Bedarfs sowie den beliebten Sonnberg-Markt, Apotheken, Ärzte und viele gemütliche Restaurants und Heurigen. Kindergärten, Volksschulen, Gymnasien sowie die Universität für Bodenkultur und die Tourismusschulen Modul befinden sich ebenfalls im Nahbereich.



Sämtliche Parkanlagen sowie der Wienerwald sind in wenigen Minuten erreichbar und laden zu vielfältigen Sport- und Freizeitmöglichkeiten.





Sonstiges



Wir ersuchen um Verständnis, dass wir aufgrund unserer Nachweispflicht gegenüber dem Eigentümer nur Anfragen mit vollständigen Kontaktdaten (Name, Adresse, Mobilnummer, Email) bearbeiten können.


Wir weisen darauf hin, dass zwischen dem Vermittler und dem zu vermittelnden Dritten ein familiäres oder wirtschaftliches Naheverhältnis besteht.


Der Vermittler ist als Doppelmakler tätig.

Infrastruktur / Entfernungen

Gesundheit
Arzt <500m
Apotheke <500m
Klinik <1.500m
Krankenhaus <1.500m

Kinder & Schulen
Schule <500m
Kindergarten <500m
Universität <1.000m
Höhere Schule <1.500m

Nahversorgung
Supermarkt <500m
Bäckerei <500m
Einkaufszentrum <3.500m

Sonstige
Geldautomat <1.000m
Bank <1.000m
Post <1.000m
Polizei <500m

Verkehr
Bus <500m
U-Bahn <2.500m
Straßenbahn <1.500m
Bahnhof <1.500m
Autobahnanschluss <3.000m

Angaben Entfernung Luftlinie / Quelle: OpenStreetMap

Eckdaten Objektnr. 3884

Art: Wohnung
Land: Österreich
Baujahr: 1961
Zustand: Voll_saniert
Alter: Neubau
Kaufpreis: 440.000,00
Provision: 3% des Kaufpreises zzgl. 20% USt.
Betriebskosten: 153,74 €
MwSt Gesamt: 27,81 €
Wohnfläche: 84,76 m²
Nutzfläche: 84,76 m²
Zimmer: 2,50
Bäder: 1
WC: 1
Keller: 7,50 m²
Heizwärmebedarf:  E  154,55 kWh/m²a
fGEE:  D  2,35
Immobilie merken Exposé

Ausstattung

Parkett, Fliesen, Gas, Kamin, Etagenheizung, Einbauküche, Bad mit Fenster, Dusche, Kabel/Satelliten-TV, Garage, Wasch/Trockenraum


Immobilie anfragen


Ihre persönliche Beratung

Desirée Gottlieb

Gottlieb Properties Immobilientreuhand GmbH

H + 43 699 14702557