Büro oder Praxis in Top-Lage am Kagraner Platz – 1220 Wien

Büro / Praxis , 1220 Wien


Breitenleer Straße, Hirschstettner Straße, Donaufelder straße

Beschreibung der Immobilie

Büro oder Praxis in Top-Lage am Kagraner Platz – 1220 Wien

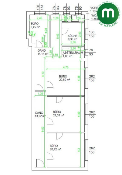
Dieses großzügige Büro- bzw. Praxisobjekt befindet sich in gepflegtem Neubauzustand in bester Lage des 22. Bezirks. Gelegen im 1. Stock (ohne Lift), mit einer Nutzfläche von 115 m² und einer durchdachten Raumaufteilung bietet es ideale Voraussetzungen für Unternehmen, Dienstleister oder Ordinationen.



Beschreibung:




  • 4 helle, gut geschnittene Büroäume



  • Abstell- bzw. Serverraum (Cat-5)



  • Aufenthaltsraum mit Einbauküche (Geschirrspüler, E Herd)



  • Parkett- und Fliesenböden, Deckenleuchten, EDV-Verkabelung 



  • WC mit Handwaschbecken



  • Etagenheizung (Gas)



  • auf den Innenhof hin ausgerichtet




Lage und Infrastruktur:




  • sehr gute öffentliche Anbindung: U1 Kagraner Platz nur ca. 350 m entfernt, Straßenbahnlinien 26, 27 sowie Buslinien 22A, 24A, 31A in Gehdistanz



  • Einkaufsmöglichkeiten (Supermarkt, Bäckerei etc.) im Nahbereich



  • rasche Anbindung an die Autobahn




Perfekt für Unternehmen, Kanzleien oder Ordinationen, die eine repräsentative und gut angebundene Adresse in Wien-Donaustadt suchen.



____



Der Vollständigkeit halber halten wir fest, dass wir Ihnen bei Anmietung/Ankauf eines von uns namhaft gemachten Objektes durch Sie oder einen durch Sie namhaft gemachten Dritten bzw. bei beidseitiger Willensübereinstimmung eine Vermittlungsprovision in der Höhe von 3 Bruttomonatsmieten bei Gewerbeimmobilien zuzüglich der gesetzlichen Umsatzsteuer in Rechnung stellen (Honorarverordnung für Immobilienmakler, BGBl. Nr. 262 und 297/1996).



Dieses Angebot ist unverbindlich und freibleibend. Die Angaben erfolgen aufgrund der Informationen und Unterlagen, die uns vom Eigentümer und/oder Dritten zur Verfügung gestellt werden und sind ohne Gewähr. Im Übrigen gelten die allgemeinen Geschäftsbedingungen sowie die Verordnung des BM für wirtschaftliche Angelegenheiten über Standes- und Ausübungsregeln für Immobilienmakler, BGBl 297/96.



Alle Angaben im Angebot basieren auf Informationen und Unterlagen des Eigentümers und erfolgen nach bestem Wissen, jedoch ohne Gewähr auf Richtigkeit.  




Wir weisen darauf hin, dass zwischen dem Vermittler und dem zu vermittelnden Dritten ein familiäres oder wirtschaftliches Naheverhältnis besteht.

Infrastruktur / Entfernungen

Gesundheit
Arzt <500m
Apotheke <500m
Klinik <2.500m
Krankenhaus <3.500m

Kinder & Schulen
Schule <500m
Kindergarten <500m
Universität <1.500m
Höhere Schule <500m

Nahversorgung
Supermarkt <500m
Bäckerei <500m
Einkaufszentrum <1.000m

Sonstige
Geldautomat <500m
Bank <500m
Post <500m
Polizei <1.000m

Verkehr
Bus <500m
U-Bahn <500m
Straßenbahn <500m
Bahnhof <500m
Autobahnanschluss <1.500m

Angaben Entfernung Luftlinie / Quelle: OpenStreetMap

Eckdaten Objektnr. 2859

Art: Büro / Praxis
Land: Österreich
Alter: Neubau
Kaltmiete (netto): 1.428,13 €
Kaltmiete: 1.666,36 €
Miete / m²: 12,39 €
Provision: 3 Bruttomonatsmieten zzgl. 20% USt.
Betriebskosten: 238,23 €
MwSt Gesamt: 333,28 €
Nutzfläche: 115,31 m²
Zimmer: 4
WC: 1
Heizwärmebedarf:  C  72,85 kWh/m²a
fGEE:  C  1,37
Immobilie merken Exposé

Ausstattung

Fliesen, Parkett, Gas, Etagenheizung, Dusche, DV-Verkabelung


Immobilie anfragen


Ihre persönliche Beratung

DIEMAKLEREI Immobilientreuhand GmbH

Pino Reinhard Lux

DIEMAKLEREI Immobilientreuhand GmbH

T +43 1 343 95 20

H +43 676 750 40 13

F +43 1 343 95 20-90