Provisionsfrei:Toprenovierter 76m² Neubau mit Einbauküche und Balkon - 1010 Wien

Wohnung , 1010 Wien


Dominikanerbastei

Beschreibung der Immobilie

Provisionsfrei:Toprenovierter 76m² Neubau mit Einbauküche und Balkon - 1010 Wien

Wunderschöner 76m² Neubau mit Balkon und Donaukanalblick!



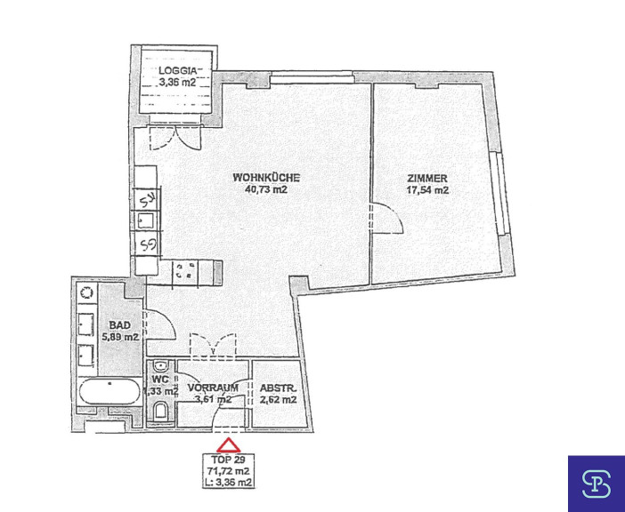
Diese 2023 aufwendig renovierte Wohnung mit Balkon befindet sich im 3. Liftstock eines Neubaugebäudes in zentraler Innenstadtlage Nähe Dominikanerbastei und Schwedenplatz. Die helle Wohnung ist nordostseitig ausgerichtet und besteht aus 1 großen Wohnzimmer mit offener Küche, 1 Schlafzimmer, Badezimmer, Vorraum, Abstellraum, WC sowie 1 Balkon mit schönem Ausblick,. 



Ausstattung: Komplettrenovierung 2023 mit Einbauküche inkl. Geräten, hochwertigen Echtholz-Parkettböden, Hauszentralheizung, Fliesenbad mit Badewanne, WM-Anschluss, Kabel-TV und Internet-Vorbereitung, Sprechanlage, Lift,.



Wunderschöne Wohnung in zentraler Lage mit bester Infrastruktur und öffentlicher Verkehrsanbindung. Neben Shoppingvergnügen und Lokalbesuchen lädt auch die Donaukanal-Promenade zum Ausspannen oder zu sportlichen Aktivitäten ein. Verkehrsanbindung in unmittelbarer Nähe sind u.a. die U Bahn Linien U1, U3, U4, die Autobuslinien 1A, 2A, und die Straßenbahnen 1, 2,. Mit dem Auto gelangt man innerhalb weniger Autominuten zur Südosttangente und in ca. 20 Autominuten zum Flughafen Wien-Schwechat;



Die Wohnung wird ab 1.1.2026 in befristeter Hauptmiete (5 Jahre) vermietet.

Gesamtmiete inkl. BK, Lift und 10% USt. € 1.582,97
(HMZ € 1.225,- + Bk mit Lift € 214,06 + 10% USt. € 143,91)

zuzüglich Hauszentralheizung monatl. € 134,36
Kaution € 5.200,-



KONTAKT: Anfragen bitte nur per Email-Anfragefunktion! Keine telefonische Terminvergabe!
 



Besuchen Sie für unsere weiteren Angebote bitte auch unsere Homepage: www.sitarz.at


Hinweis gemäß Energieausweisvorlagegesetz: Ein Energieausweis wurde vom Eigentümer bzw. Verkäufer, nach unserer Aufklärung über die generell geltende Vorlagepflicht, sowie Aufforderung zu seiner Erstellung noch nicht vorgelegt. Daher gilt zumindest eine dem Alter und der Art des Gebäudes entsprechende Gesamtenergieeffizienz als vereinbart. Wir übernehmen keinerlei Gewähr oder Haftung für die tatsächliche Energieeffizienz der angebotenen Immobilie.


Der Immobilienmakler erklärt, dass er – entgegen dem in der Immobilienwirtschaft üblichen Geschäftsgebrauch des Doppelmaklers – einseitig nur für den Vermieter tätig ist.

Infrastruktur / Entfernungen

Gesundheit
Arzt <500m
Apotheke <500m
Klinik <500m
Krankenhaus <500m

Kinder & Schulen
Schule <500m
Kindergarten <500m
Universität <500m
Höhere Schule <1.000m

Nahversorgung
Supermarkt <500m
Bäckerei <500m
Einkaufszentrum <1.000m

Sonstige
Geldautomat <500m
Bank <500m
Post <500m
Polizei <500m

Verkehr
Bus <500m
U-Bahn <500m
Straßenbahn <500m
Bahnhof <500m
Autobahnanschluss <3.000m

Angaben Entfernung Luftlinie / Quelle: OpenStreetMap

Eckdaten Objektnr. 7661

Art: Wohnung
Land: Österreich
Zustand: Teil_vollrenoviert
Alter: Neubau
Gesamtmiete: 1.582,97
Kaltmiete (netto): 1.225,00 €
Kaltmiete: 1.439,06 €
Provision: Gemäß Erstauftraggeberprinzip bezahlt der Abgeber die Provision.
Betriebskosten: 214,06 €
MwSt Gesamt: 143,91 €
Wohnfläche: 76,38 m²
Zimmer: 2
Bäder: 1
WC: 1
Immobilie merken Exposé

Ausstattung

Parkett, Fliesen, Zentralheizung, Einbauküche, Wohnküche / offene Küche, Personenaufzug, Nordbalkon, Badewanne, Kabel/Satelliten-TV


Immobilie anfragen


Ihre persönliche Beratung

Sitarz & Partner Immobilien GmbH

Anna Sitarz

Sitarz & Partner Immobilien GmbH

T +43 664 403 83 83