RIESIGE DACHTERRASSE + HOCHWERTIGE AUSSTATTUNG + SÜD/WEST Ausrichtung! + Tiefgarage! Nur 7 Min. von Graz entfernt!!

Wohnung , 8075 Hart bei Graz


Hart bei Graz befindet sich nur 7 Minuten von der Grazer Stadtgrenze entfernt und liegt dennoch im Grünen. Profitieren Sie von einer florierenden Kleinstadt mit einem entzückenden Stadtkern und zahlreichen Cafés, Geschäften und Gasthäusern. So erreichen Sie beispielsweise Billa, Spar, Don Camillo, Sportzentrum & Eisstadion, Volksschule & Kindergarten, Kinderspielplatz & Volleyballplatz, Bank, Friseur sowie Gemeinde und vieles mehr fußläufig. Darüber hinaus ist eine super öffentliche Verkehrsanbindung mit dem Stadtbus und dem Regionalbus 430 gegeben. Auch mit dem Auto sind sie bestens aufgehoben. In weniger als 10 Minuten sind Sie von Ihrem neuen Wohnort bereits auf der Autobahn.

Beschreibung der Immobilie

RIESIGE DACHTERRASSE + HOCHWERTIGE AUSSTATTUNG + SÜD/WEST Ausrichtung! + Tiefgarage! Nur 7 Min. von Graz entfernt!!

RIESIGE DACHTERRASSE + HOCHWERTIGE AUSSTATTUNG + SÜD/WEST Ausrichtung! + Tiefgarage! Nur 7 Min. von Graz entfernt!!



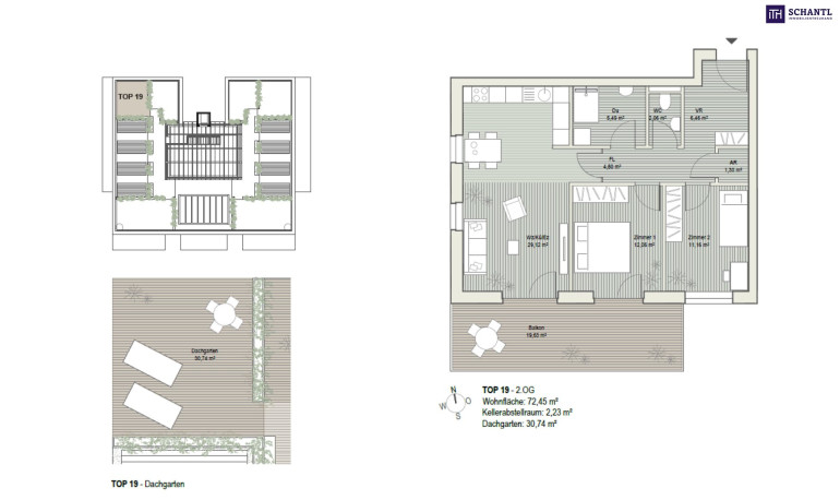
Diese Traumwohnung besticht durch ihre ideale Raumaufteilung (Süd/West-Ausrichtung!), die hochwertige Ausstattung (Klimaanlage, elektrischer Sonnenschutz! usw.) und der riesengroßen Dachterrasse (+ 30m²!). In nur 7 Minuten sind Sie mit dem Auto in Graz!!



HIGHLIGHTS:



  • Traumhafte Wohnung in Hart bei Graz
  • Fantastische Dachterrasse auf 30,74 m² zum Entspannen
  • Ausreichend Sonnenschein: Süd/West-Ausrichtung!
  • Hochwertige Ausstattung: elektrischer Sonnenschutz, Photovoltaik Anlage etc.
  • Tolle Klimaanlage in Wohn/Esszimmer + Schlafzimmer!
  • Fixer Tiefgaragenstellplatz + Vorbereitung einer E-Ladestation
  • Ausreichend Besucherparkplätze vor dem Haus
  • Perfekte Lage neben Billa und Spar direkt im Zentrum von Hart bei Graz
  • Bis 2,70 m Raumhöhe
  • Barrierefrei


FACTS:



  • 72,45 m² inkl. Balkon + Dachterrasse (+30 m²!)
  • Riesiges Wohn/Esszimmer (+29 m²)
  • Moderne neue Tischlerküche in weiß
  • Großartiges Wohngefühl mit einer Raumhöhe von 2,65 m
  • Abstellraum für genügend Stauraum
  • Eigenes Kellerabteil inkludiert
  • Tiefgaragenplatz PP19
  • Fußbodenheizung


Vereinbaren Sie noch heute eine Besichtigung oder eine persönliche Beratung mit uns!



Sie wollen Ihre Immobilie verkaufen? Dann sind Sie bei uns goldrichtig!

Wir sind gerne für Sie da und unterstützen Sie unverbindlich bei der Bewertung Ihrer Immobilie. Mit viel Sorgfalt stellen wir Ihnen alle wichtigen Informationen und Unterlagen zusammen, damit Sie die besten Entscheidungen treffen können.



In Kooperation mit unserer SFI Vermögenstreuhand begleiten wir Sie bei der Verwirklichung Ihres Traumobjekts und unterstützen Sie beim nachhaltigen Vermögensaufbau. Mit unseren erfahrenen Experten sorgen wir dafür, dass Sie die besten Konditionen erhalten – damit Ihre Träume Wirklichkeit werden!



http://www.schantl-ith.at in Kooperation mit www.sfi-invest.com 



Die Angaben über das angebotene Objekt erfolgen mit der Sorgfalt eines ordentlichen Immobilienmaklers; für die Richtigkeit solcher Angaben, die auf Informationen der über das Objekt Verfügungsberechtigten beruhen, wird keine Gewähr geleistet!




Der Immobilienmakler erklärt, dass er – entgegen dem in der Immobilienwirtschaft üblichen Geschäftsgebrauch des Doppelmaklers – einseitig nur für den Vermieter tätig ist.

Infrastruktur / Entfernungen

Gesundheit
Arzt <500m
Apotheke <500m
Klinik <5.500m
Krankenhaus <6.000m

Kinder & Schulen
Schule <500m
Kindergarten <500m
Universität <3.500m
Höhere Schule <6.000m

Nahversorgung
Supermarkt <500m
Bäckerei <3.500m
Einkaufszentrum <3.500m

Sonstige
Geldautomat <500m
Bank <500m
Post <3.000m
Polizei <3.000m

Verkehr
Bus <500m
Straßenbahn <3.500m
Autobahnanschluss <3.500m
Bahnhof <1.500m
Flughafen <9.000m

Angaben Entfernung Luftlinie / Quelle: OpenStreetMap

Eckdaten Objektnr. 290952

Art: Wohnung
Land: Österreich
Baujahr: 2021
Zustand: Neuwertig
Alter: Neubau
Gesamtmiete: 1.298,00
Kaltmiete (netto): 1.030,00 €
Kaltmiete: 1.180,00 €
Provision: Gemäß Erstauftraggeberprinzip bezahlt der Abgeber die Provision.
Betriebskosten: 150,00 €
MwSt Gesamt: 118,00 €
Wohnfläche: 72,45 m²
Zimmer: 3
Bäder: 1
WC: 1
Balkone: 1
Terrassen: 1
Keller: 2,23 m²
Heizwärmebedarf:  B  37,00 kWh/m²a
fGEE:  A  0,83
Immobilie merken Exposé

Ausstattung

Parkett, Fliesen, Solarenergie, Zentralheizung, Einbauküche, Personenaufzug, Dusche, Kabel/Satelliten-TV, Tiefgarage


Immobilie anfragen


Ihre persönliche Beratung

Schantl ITH Immobilientreuhand GmbH

Ing. Simona Kröll

Schantl ITH Immobilientreuhand GmbH

T +43 681 84280445