Moderene Büro / Kanzlei / Praxisfläche in Ried im Innkreis - flexibele und helle Räume

Büro / Praxis - Bürofläche, 4910 Ried im Innkreis , Weberzeile 20-22


Die Mietimmobilie in Ried im Innkreis überzeugt durch seine zentrale Lage und optimale Erreichbarkeit. In unmittelbarer Nähe befinden sich wichtige Einrichtungen wie Arztpraxen, Apotheken, die eine hohe Frequentierung garantieren. Einkaufsmöglichkeiten wie Supermärkte, Bäckereien und ein Einkaufszentrum runden das Angebot ab. Verkehrsanbindungen durch Bus und Bahnhof sind ebenfalls gegeben, was die Erreichbarkeit für Kunden und Mitarbeiter erleichtert.

Beschreibung der Immobilie

Moderene Büro / Kanzlei / Praxisfläche in Ried im Innkreis - flexibele und helle Räume

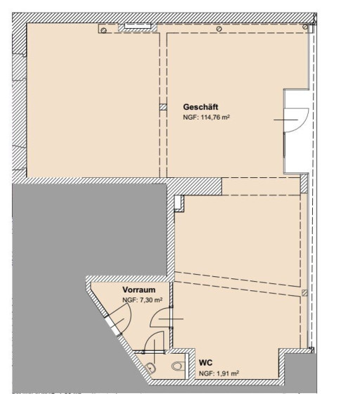
Entdecken Sie die ideale Gelegenheit für Ihr Gewerbe im Herzen von Ried im Innkreis! Dieses attraktive Mietfläche im Erdgeschoss bietet Ihnen eine großzügige  124 m² und ist perfekt geeignet für Büro / Kanzlei / Praxis  oder Dienstleistungsangebote.



Sie erhalten hier nicht nur eine erstklassige Lage, sondern auch eine unschlagbare Sichtbarkeit. Nutzten Sie diese die zentrale Position in einer stark frequentierten Umgebung. 



Darüber hinaus profitieren Sie von einer hervorragenden Infrastruktur in der Umgebung. In nur wenigen Gehminuten erreichen Sie wichtige Einrichtungen wie Arztpraxen oder Apotheken.



Die Verkehrsanbindung könnte nicht besser sein: Profitieren Sie von einer gute Anbindungen an den öffentlichen Nahverkehr, sei es mit dem Bus oder dem Bahnhof in der Nähe. 



Nutzen Sie diese einmalige Chance, um sich in einer lebendigen und dynamischen Umgebung zu etablieren. Die Kombination aus hervorragender Erreichbarkeit, einer Vielzahl an Dienstleister in der Nähe und einer ansprechenden Fläche macht diese Immobilie zu einem perfekten Standort für Ihre unternehmerischen Visionen.



Lassen Sie sich diese Chance nicht entgehen! Kontaktieren Sie uns noch heute, um weitere Informationen zu erhalten oder einen Besichtigungstermin zu vereinbaren. Ihr neues Geschäftslokal in Ried im Innkreis wartet auf Sie!





Hauptmietzins                        1.682,27 €



Betriebskosten                          322,49 €



Heizkosten                                   99,22 €



Umsatzsteuer 20%                    420,80 €



Gesamtmietzins                     2.524,77 €/Monat / brutto



optional: PKW-Stellplatz in der Tiefgarage   € 90,00 / Monat / brutto



 



Mietbeginn:                  Bezug ab sofort möglich



Kaution:                       drei Bruttomonatsmieten mittels Überweisung oder in Form einer Bankgarantie



Vergebührung:            Die Kosten der Vergebührung sind vom Mieter zu tragen.



Energiekennzahl:        HWB-ref 23,5 kWh/m²



Wertsicherung:            Verbraucherpreisindex 2020



Vermittlungsprovision: Das Erfolgshonorar der Firma AREV Immobilien GmbH für die Vermittlungstätigkeit sowie aller damit zusammenhängenden Tätigkeiten beträgt bei Zustandekommen eines gültigen Rechtsgeschäftes drei Bruttomonatsmieten zzgl. 20 % USt.



Rechtsgrundlage der Vermittlungstätigkeit sowie der in diesem Zusammenhang stehenden Provision ist die Immobilienmaklerverordnung 1996 idgF. Auf die Funktion als Doppelmakler sowie der Fa. AREV als Hausverwalter wurde hingewiesen.


Der Vermittler ist als Doppelmakler tätig.

Infrastruktur / Entfernungen

Gesundheit
Arzt <200m
Apotheke <225m
Klinik <200m
Krankenhaus <675m

Kinder & Schulen
Schule <300m
Kindergarten <325m
Höhere Schule <675m

Nahversorgung
Supermarkt <75m
Bäckerei <75m
Einkaufszentrum <25m

Sonstige
Bank <200m
Geldautomat <250m
Polizei <400m
Post <375m

Verkehr
Bus <100m
Bahnhof <750m
Autobahnanschluss <5.300m

Angaben Entfernung Luftlinie / Quelle: OpenStreetMap

Eckdaten Objektnr. 1937/7645915

Art: Büro / Praxis - Bürofläche
Land: Österreich
Kaltmiete (netto): 1.682,27 €
Kaltmiete: 2.017,09 €
Provision: 7.261,52 € inkl. 20% USt.
Betriebskosten: 334,82 €
Heizkosten: 111,63 €
MwSt Gesamt: 425,74 €
Gesamtfläche: 124,00 m²
Heizwärmebedarf: 23,50 kWh/m²a
Immobilie merken Exposé

Ausstattung

Tiefgarage


Immobilie anfragen


Ihre persönliche Beratung

Mathilde Feichtenschlager

AREV Immobilien GmbH

T +43 7752 85885 305

H +43 6648185369