Zell am See: Wohnung mit Potenzial zum Modernisieren

Wohnung , 5700 Zell am See


Ihre neue Wohnung befindet sich in Zell am See - in Schüttdorf. Zentral und dennoch ruhig gelegen, genießen Sie die perfekte Verbindung von Komfort und Natur. Nur wenige Gehminuten entfernt liegt der glitzernde Zeller See, der zu Spaziergängen, Wassersport oder entspannten Stunden am Ufer einlädt. Kombiniert mit dem beeindruckenden Bergpanorama und der Nähe zu Skiliften wird die Lage zu einem idealen Rückzugsort, der Lebensqualität und Natur in einzigartiger Weise vereint. In unmittelbarer Nähe finden Sie zahlreiche Einkaufsmöglichkeiten und Restaurants, die Ihren Alltag erleichtern und zugleich zu entspannten Stunden einladen. Dank der Nähe zu Bus- und Bahnhaltestellen ist Ihre Wohnung ideal an den öffentlichen Verkehr angebunden und ermöglicht Ihnen eine unkomplizierte Mobilität in Zell am See und Umgebung.

Beschreibung der Immobilie

Zell am See: Wohnung mit Potenzial zum Modernisieren

Ihre leistbare Eigentumswohnung in Zell am See überzeugt mit einer durchdachten Raumaufteilung, einem traumhaften Blick auf das Bergpanorama und ist ideal für Paare oder Singles, die besonderen Wert auf Lebensqualität legen.



Das Mehrparteienhaus in dem sich Ihre Wohneinheit befindet wurde im Jahr 1973 erbaut. Ihr Wohneinheit befindet sich im 2 Obergeschoss. Zwar ist die Wohnung in die Jahre gekommen, bietet aber handwerklich geschickten Käufern viel Gestaltungspotential. 



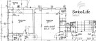
Beim betreten Ihrer ca. 60 m² großen 2-Zimmer-Wohnung mit Balkon gelangen Sie in den Flur der Platz für Ihre Garderobe bietet. Alle Räume sind vom Flur aus begehbar.



Der Wohnraum ist das Herzstück Ihres Eigenheims: hell, freundlich und offen gestaltet, lädt er zum Entspannen und Verweilen ein und schafft ein gemütliches Ambiente, in dem Sie sich sofort wohlfühlen werden. 



Die separate Küche sorgt für eine klare Trennung zwischen Wohn- und Kochbereich. Ihre Kochnische ist praktisch und funktional gestaltet und bietet ausreichend Stauraum für Ihre Küchenutensilien ohne den restlichen Wohnbereich zu überladen.



Das Schlafzimmer besticht durch Helligkeit und eine praktische Raumaufteilung, die sich leicht möblieren lässt, und bietet über den ca. 4,46 m² großen Balkon einen ruhigen Rückzugsort im Freien. 



Ihr Badezimmer ist funktional, die Toilette separat, und bietet Potential zur individuellen Modernisierung.



Ein praktischer Abstellraum bietet Ihnen zusätzlichen Stauraum und sorgt für Ordnung in Ihrer Wohnung.





Abgerundet wird das Angebot von einem Pkw-Stellplatz im Freien und einem ca. 9,25 großen Kellerabteil in dem Sie bequem Ihre Gegenstände verstauen können.



Gerne stehen wir Ihnen persönlich zur Seite und helfen, die optimale Finanzierung für Ihr neues Zuhause zu planen - unkompliziert und individuell auf Ihre Bedürfnisse abgestimmt. 



Für weitere Informationen zu Finanzierungen oder zur Vereinbarung eines Besichtigungstermins kontaktieren Sie mich bitte unter der Rufnummer +43 676 379 34 80 oder per E-Mail patricia.radauer@swisslife-select.at



Ich freue mich darauf, Ihnen die Wohnung persönlich vorstellen zu dürfen! Patricia Radauer Swiss Life Select Immobilien Salzburg. 


Wir weisen darauf hin, dass zwischen dem Vermittler und dem zu vermittelnden Dritten ein familiäres oder wirtschaftliches Naheverhältnis besteht.


Der Vermittler ist als Doppelmakler tätig.

Infrastruktur / Entfernungen

Gesundheit
Arzt <500m
Apotheke <500m
Krankenhaus <2.500m

Kinder & Schulen
Schule <500m
Kindergarten <5.500m

Nahversorgung
Supermarkt <500m
Bäckerei <500m
Einkaufszentrum <3.000m

Sonstige
Bank <500m
Geldautomat <500m
Polizei <500m
Post <500m

Verkehr
Bus <500m
Bahnhof <500m
Flughafen <4.000m

Angaben Entfernung Luftlinie / Quelle: OpenStreetMap

Eckdaten Objektnr. 6013/772

Art: Wohnung
Land: Österreich
Baujahr: 1973
Kaufpreis: 219.000,00
Provision: 3% des Kaufpreises zzgl. 20% USt.
Wohnfläche: 60,00 m²
Zimmer: 2
Bäder: 1
WC: 1
Balkone: 1
Stellplätze: 1
Keller: 9,25 m²
Heizwärmebedarf:  C  94,00 kWh/m²a
fGEE:  C  1,31
Immobilie merken Exposé

Ausstattung

Fliesen, Kunststoffboden, Parkett, Südbalkon, Badewanne, Parkplatz, Wasch/Trockenraum


Immobilie anfragen


Ihre persönliche Beratung

Swiss Life Select Österreich GmbH

Patricia Radauer

Swiss Life Select Österreich GmbH

T +43 662 880 0660

H +43 676 379 3480