Stilvoller Wohntraum mit sonniger Terrasse

Wohnung , 8020 Graz


Die Liegenschaft befindet sich in angenehmer Ruhelage im Bezirk Eggenberg. Die zentrale Lage bietet eine ausgezeichnete Infrastruktur, die Möglichkeit zu Fuß in die Stadt zu gehen, sowie zahlreiche weitere Unterhaltungsmöglichkeiten in der Nähe. Geschäfte des täglichen Bedarfs sind in wenigen Gehminuten fußläufig erreichbar. In wenigen Fahrtminuten ist das Schloss Eggenberg erreichbar.

Beschreibung der Immobilie

Stilvoller Wohntraum mit sonniger Terrasse

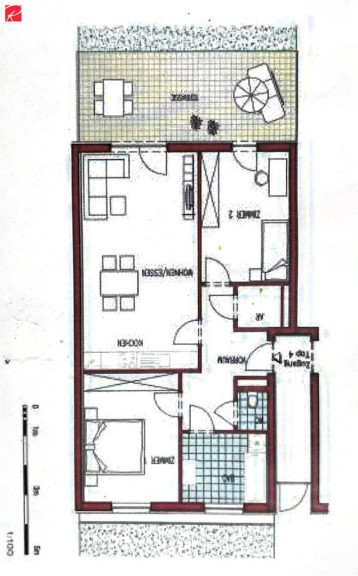
Einziehen und rundum wohlfühlen! Eine sonnige Terrasse, eine ausgezeichnete Raumaufteilung und die ruhige, aber zentrale Lage zeichnen diese Liegenschaft besonders aus. Drei getrennt begehbare Schlafzimmer, eine offene Küche mit lichtdurchflutetem Wohn- und Essbereich, sowie ein Badezimmer mit Fenster und Handtuchtrockner warten in dieser Traumwohnung auf Sie. 



Die offene Küche ist mit einem Geschirrspüler, einem Kühlschrank, einem Herd mit Backofen und Umluftabzug ausgestattet. Hier stehen Ihnen reichlich Arbeitsflächen und Platz für einen großen Esstisch zur Verfügung. Im großzügigen Wohn- und Essbereich, sowie in den zwei Zimmern ist ein Parkettboden mit wenigen Gebrauchsspuren verlegt. Im Badezimmer erwartet Sie eine Dusche, ein Fenster, einen Waschtisch und einen Waschmaschinenanschluss. Im Vorraum befindet sich eine kleine Nische für Ihre Garderobe. In der gesamten Wohnung wurden großzügige Fensterfronten bzw. Türen verbaut, sodass Sie eine angenehme Raumatmosphäre genießen können. 



+ zwei getrennt begehbare Schlafzimmer

+ Baujahr 2009, Ziegelmassiv, Fernwärme 

+ WG tauglich 
+ zum Teil überdachte Terrasse mit südlicher Ausrichtung 

+ großzügige Fensterfronten mit Insektenschutzgitter; Beschattung vorhanden

+ geräumiger Abstellraum
+ ebenerdig begehbare Flächen (Wohnung, Fahrradabstellplatz, Kellerraum)

+ gemeinschaftlich nutzbare Gartenfläche 

+ Wasseranschluss außen

+ Badezimmer mit Fenster
+ Toilette separat mit Handwaschbecken 

+ ausgezeichnete Anbindung

+ Nahversorger fußläufig erreichbar

+ gratis Parkplätze nach Verfügbarkeit

+ Lage in sehr ruhiger Seitengasse



Die Wohnung liegt in einer gepflegten Wohnanlage (Baujahr 2009), sodass Sie angenehme Ruhe erwarten können!



Die Terrassenfläche und die geschützten Sitzmöglichkeiten durch die Überdachung bieten eine ausgezeichnete Grundlage für Ihr Wohlfühlerlebnis in dieser Liegenschaft. 



Sie möchten Sich selbst von der hohen Lebensqualität in dieser Wohnung überzeugen? Dann zögern Sie nicht und vereinbaren Sie am besten noch heute Ihren persönlichen Beratungstermin vor Ort oder bei uns im Büro unter +43 676 36 46 890. Ich freue mich auf Ihren Anruf, Nina Antley, Roderick Scherer Immobilien GmbH.




Sie möchten diese Immobilie finanzieren? Gerne zeigen wir Ihnen in einem kostenlosen und unverbindlichen Beratungsgespräch (vor Ort oder online) die aktuellen Möglichkeiten am heimischen Kreditmarkt auf. Unsere Finanzierungsexperten vergleichen für Sie eine Vielzahl von Banken und Bausparkassen, um für Sie die besten Konditionen zu erreichen (Laufzeit, Rate, Eigenmittel). Optimal zugeschnitten auf Ihre Bedürfnisse. Sprechen Sie uns gerne an.

Noch nichts gefunden? Wir informieren Sie über geeignete Immobilienangebote noch vor allen anderen.
Legen Sie jetzt Ihren individuellen Suchagenten unter folgendem Link an. Wir schicken Ihnen passende Immobilien exklusiv vorab zu.

Suchagent anlegen - https://roderick-scherer-immobilien.service.immo/registrieren/de


Der Vermittler ist als Doppelmakler tätig.

Infrastruktur / Entfernungen

Gesundheit
Arzt <500m
Apotheke <500m
Klinik <1.000m
Krankenhaus <1.500m

Kinder & Schulen
Schule <500m
Kindergarten <500m
Universität <500m
Höhere Schule <500m

Nahversorgung
Supermarkt <500m
Bäckerei <500m
Einkaufszentrum <1.500m

Sonstige
Geldautomat <500m
Bank <500m
Post <500m
Polizei <1.000m

Verkehr
Bus <500m
Straßenbahn <500m
Autobahnanschluss <4.000m
Bahnhof <1.000m
Flughafen <9.500m

Angaben Entfernung Luftlinie / Quelle: OpenStreetMap

Eckdaten Objektnr. 5420/7103

Art: Wohnung
Land: Österreich
Baujahr: 2009
Zustand: Gepflegt
Alter: Neubau
Kaufpreis: 235.000,00
Provision: 3% des Kaufpreises zzgl. 20% USt.
Betriebskosten: 169,40 €
MwSt Gesamt: 16,94 €
Wohnfläche: 73,00 m²
Zimmer: 3
Bäder: 1
WC: 1
Terrassen: 1
Keller: 5,00 m²
Heizwärmebedarf:  C  57,40 kWh/m²a
fGEE:  A+  0,68
Immobilie merken Exposé

Ausstattung

Fliesen, Parkett, Fernwärme, Einbauküche, Wohnküche / offene Küche, Personenaufzug, Südbalkon, Bad mit Fenster, Dusche, Kabel/Satelliten-TV


Immobilie anfragen


Ihre persönliche Beratung

Roderick Scherer Immobilien GmbH

Nina Antley

Roderick Scherer

T +43 676 36 46 890

H +43 676 36 46 890