Beschreibung der Immobilie
AKTIONSPREIS derzeit € 278.956! Preisnachlass von 6,5%! Provisionsfrei!
Wir feiern den Winter bis zur Schneeschmelze!
€ 298.348 – ursprünglicher Verkaufspreis
€ 278.956 – aktueller Aktionspreis
+ XXXLutz Gutschein im Wert von € 1.000,00 pro Zimmer!
In der kalten Jahreszeit lassen wir die Preise schmelzen: Beim Kauf einer Eigentumswohnung in einem unserer Objekte in der Berresgasse ersparst du dir bis 31.3.2026 die Nebenkosten* und bekommst so jede Wohnung um 6,5% günstiger.
Darüber hinaus schenken wir dir noch einen XXXLutz - Gutschein im Wert von 1.000 Euro für jedes Zimmer!
Jonas am Feld - Dein Eigentum am Badeteich Hirschstetten
Du bist auf der Suche nach einer Eigentumswohnung in Ruhelage und doch nah am Zentrum?
Dann bist du hier richtig!
In der aufstrebenden Donaustadt erwartet dich ein modernes Wohnhaus in ruhiger Lage – sofort beziehbar! Die Liegenschaft überzeugt durch ansprechende Architektur, hochwertige Ausstattung und die perfekte Kombination aus urbanem Wohnen und naturnaher Erholung. Der Badeteich Hirschstetten ist wenige Gehminuten entfernt – mehr Natur ist kaum möglich!
Zum Angebot stehen freifinanzierte Wohnungen auf Eigengrund – keine Pacht!
Highlights der Liegenschaft:
- Provisionsfrei!
- Elektrische Außenbeschattung
- Hochwertiger Parkettboden in allen Wohnräumen
- Betonkernaktivierung
- Zusätzliche Elektro-Handtuchheizkörper im Badezimmer
- Kellerabteil inkludiert
- Glasfaserinternet für modernste Ansprüche
- Tiefgaragenstellplatz zum Kauf verfügbar
Lage: Urban leben – grün genießen
Das Projekt Jonas am Feld liegt in einer ruhigen Wohngegend und bietet gleichzeitig eine hervorragende Infrastruktur. Öffentliche Verkehrsmittel (U2, sowie Bus- und Straßenbahnlinien) sind rasch erreichbar. Nahversorger, Schulen und Apotheken befinden sich in Gehdistanz. Für Freizeit und Erholung bieten sich der Badeteich Hirschstetten, die Alte Donau und zahlreiche Parks in unmittelbarer Umgebung an.
Hier wohnst du mit bester Lebensqualität – sofort beziehbar und zukunftssicher!
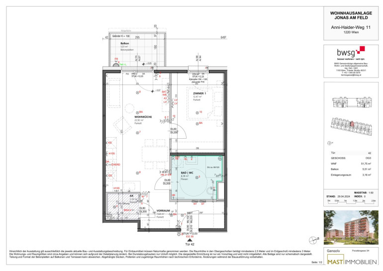
Details Wohnung Anni-Haider-Weg 11 Top 42:
Die Wohnung befindet sich im 3. OG und verfügt über 51,75 m² Wohnfläche + einen 5,51 m² großen Balkon.
Raumaufteilung:
- Vorraum ca. 7,64 m²
- Wohnküche ca. 22,92 m²
- Schlafzimmer ca. 12,47 m²
- Badezimmer ca. 6,38 m²
- Balkon ca. 5,51 m²
- Kellerabteil ca. 3,16 m²
Ein Tiefgaragenstellplatz kann um 29.345,75 € erworben werden.
Auf unserer Homepage finden Sie eine Übersicht zu dem Projekt "Jonas am Feld" sowie zu den Projekten "Gretls Garten" und "Leo am Teich", welche sich in unmittelbarer Nähe befinden. www.mast-immo.at
*Während der Aktion werden die Verkaufspreise um 6,5 % reduziert. Dies entspricht den durchschnittlichen Nebenkosten beim provisionsfreien Wohnungskauf (1,9 % Vertrags-errichtung, 3,5 % Grunderwerbsteuer, 1,1 % Eintragungsgebühr). Die auf Basis des um 6,5% reduzierten Kaufpreises berechneten Nebenkosten sind über den Treuhänder zu begleichen. Eine mögliche Gebührenbefreiung gem. § 25a iVm § 25b Gerichtsgebührengesetz kann zusätzlich in Anspruch genommen werden.
Der Einrichtungsgutschein wird bei Wohnungsübergabe übergeben und ist nicht in bar ablösbar.
Wir weisen darauf hin, dass zwischen dem Vermittler und dem zu vermittelnden Dritten ein familiäres oder wirtschaftliches Naheverhältnis besteht.
Der Vermittler ist als Doppelmakler tätig.
Infrastruktur / Entfernungen
Gesundheit
Arzt <500m
Apotheke <500m
Klinik <1.500m
Krankenhaus <3.500m
Kinder & Schulen
Schule <500m
Kindergarten <500m
Universität <3.000m
Höhere Schule <3.000m
Nahversorgung
Supermarkt <500m
Bäckerei <1.000m
Einkaufszentrum <2.500m
Sonstige
Bank <1.000m
Geldautomat <500m
Post <1.000m
Polizei <1.500m
Verkehr
Bus <500m
U-Bahn <1.500m
Straßenbahn <500m
Bahnhof <1.500m
Autobahnanschluss <2.000m
Angaben Entfernung Luftlinie / Quelle: OpenStreetMap
Eckdaten Objektnr. 5387/7844
| Art: | Wohnung |
| Land: | Österreich |
| Zustand: | Erstbezug |
| Kaufpreis: | 298.348,00 € |
| Provision: | Provision bezahlt der Abgeber. |
| Betriebskosten: | 103,28 € |
| MwSt Gesamt: | 10,33 € |
| Wohnfläche: | 51,75 m² |
| Nutzfläche: | 51,75 m² |
| Zimmer: | 2 |
| Bäder: | 1 |
| WC: | 1 |
| Balkone: | 1 |
| Heizwärmebedarf: | B 26,60 kWh/m²a |
| fGEE: | A 0,74 |
Ausstattung
Parkett, Fliesen, Wohnküche / offene Küche, Personenaufzug, Dusche, Tiefgarage
Ihre persönliche Beratung
Stefanie Vidovic
MA.ST Immobilien & Design e.U.
T +43 664 967 65 48