Exklusiver DG-Ausbau | Wohnen in zentrale Ruhelage

Wohnung , 1030 Wien , Paulusgasse 5


Paulusgasse 5, 1030 Wien

Beschreibung der Immobilie

Exklusiver DG-Ausbau | Wohnen in zentrale Ruhelage

Alle Details zum Projekt finden Sie auch unter: www.paulus5.at

Stilvolle Altbau-Eleganz trifft modernen Wohnkomfort



Im Zuge einer umfassenden Revitalisierung des historischen Bestandsgebäudes wird das Dachgeschoss zu insgesamt sieben exklusiven Dachgeschosswohnungen auf höchstem Niveau ausgebaut. Traditionelle Architektur verbindet sich hier mit zeitgemäßer Technik und anspruchsvoller Wohnqualität.



Hochwertig & klimaeffizient



Die Liegenschaft befindet sich aktuell in der Sanierungsphase und wird hochwertig modernisiert sowie schlüsselfertig übergeben. Neben einer neuen, effizienten Heiztechnik wird das Gebäude mit einer Photovoltaikanlage am Dach ausgestattet.



Die umweltfreundliche Luftwärmepumpe nutzt die in der Umgebungsluft gespeicherte Energie zur Wärmeversorgung und gewährleistet damit eine nachhaltige und zugleich kosteneffiziente Betriebsführung. Dies reduziert den Energieverbrauch, senkt die laufenden Kosten und leistet einen wertvollen Beitrag zum Klimaschutz.



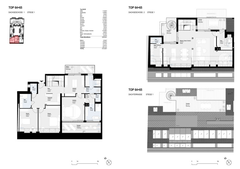
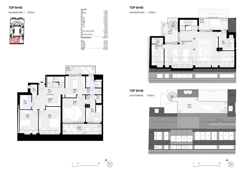
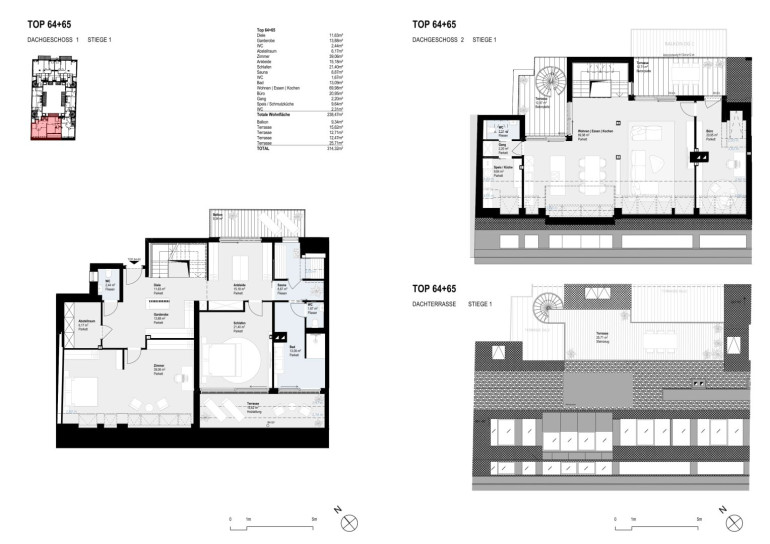
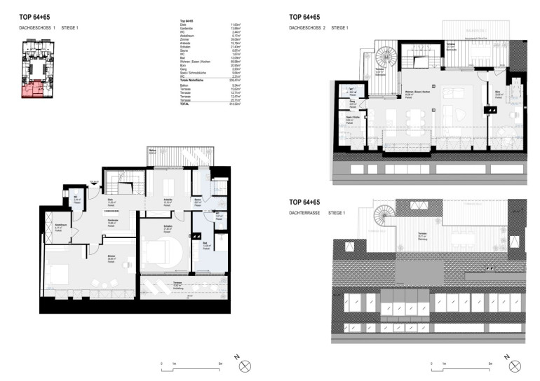
Penthouse Top 64–65 – Außergewöhnliches Wohnen auf drei Ebenen



Dieses luxuriöse, großzügig gestaltete Penthouse vereint architektonische Eleganz mit höchstem Wohnkomfort und vielfältigen Gestaltungsmöglichkeiten. Die Wohnung erstreckt sich über zwei Wohnebenen und bietet auf jeder Ebene großzügige Außenflächen sowie eine exklusive Rooftop-Terrasse als privates Refugium über den Dächern der Stadt.



Großzügiger Wohnbereich mit Terrassenanschluss



Das Zentrum des Penthouses bildet der eindrucksvolle, weitläufige Wohnbereich mit direktem Zugang zu zwei großen Terrassen. Die Küche kann – ganz nach Ihren Vorstellungen – entweder offen in den Wohnraum integriert oder als separater Bereich geplant werden. So entsteht Ihr ganz persönliches Wohnkonzept.



Privater Rückzugsbereich



Die untere Wohnebene ist den privaten Räumen vorbehalten. Abhängig von Ihren Wünschen lassen sich hier bis zu drei Schlafzimmer oder alternativ ein Arbeitszimmer bzw. eine Ankleide realisieren. Die Bäder und Sanitärräume sind großzügig dimensioniert und können individuell nach Ihren Vorstellungen ausgestattet werden. Zusätzliche Räume wie ein begehbarer Kleiderschrank, Abstellflächen oder eine Speisekammer sind ebenfalls vorgesehen und runden das durchdachte Raumkonzept ab.



Rooftop-Terrasse – Ihr Logenplatz über Wien



Das absolute Highlight befindet sich auf der dritten Ebene: die private Rooftop-Terrasse mit ca. 25 m². Sie bietet einen einzigartigen Rückzugsort unter freiem Himmel – ideal zum Entspannen, Genießen und für besondere Momente mit Ausblick.



Ausstattung & Individualität



Bei der Ausstattung wird größter Wert auf hochwertige Materialien, technische Raffinesse und architektonische Qualität gelegt. Je nach Baufortschritt besteht die Möglichkeit, die Ausführung individuell Ihren persönlichen Wünschen anzupassen.



Lage & Umgebung – Perfekte Balance aus Ruhe und urbanem Leben



Das Projekt befindet sich in einer attraktiven Lage im 3. Bezirk, mit guter Anbindung an den öffentlichen Verkehr. Durch die beiden nahegelegenen U-Bahnstationen "U3 Schlachthausgasse" und "U3 Kardinal-Nagl-Platz", ist die Innenstadt in knapp 10 Minuten erreichbar.



In unmittelbarer Nähe finden sich charmante Cafés, erstklassige Restaurants sowie alle Geschäfte des täglichen Bedarfs. Renommierte Schulen und Kindergärten sind ebenfalls schnell erreichbar.

Zudem bietet die Umgebung zahlreiche Naherholungsgebiete, wie Prater oder Donaukanal. Auch Wiens kulturelles Angebot, wie das Kunsthaus Wien und die Wiener Staatsoper sind in kurzer Zeit erreichbar.

Noch nichts gefunden? Wir informieren Sie über geeignete Immobilienangebote noch vor allen anderen.
Legen Sie jetzt Ihren individuellen Suchagenten unter folgendem Link an. Wir schicken Ihnen passende Immobilien exklusiv vorab zu.

Suchagent anlegen - https://accenta-immobilien.service.immo/registrieren/de


Wir weisen darauf hin, dass zwischen dem Vermittler und dem zu vermittelnden Dritten ein familiäres oder wirtschaftliches Naheverhältnis besteht.


Der Vermittler ist als Doppelmakler tätig.

Sie wollen auch Ihre Immobilien Verkaufen oder Vermieten?

Accenta Immobilien - Ihr Partner für Immobilienvermittlung
www.accenta-immo.at
01/997 12 93

 

Infrastruktur / Entfernungen

Gesundheit
Arzt <175m
Apotheke <350m
Klinik <250m
Krankenhaus <300m

Kinder & Schulen
Schule <125m
Kindergarten <150m
Universität <625m
Höhere Schule <600m

Nahversorgung
Supermarkt <125m
Bäckerei <225m
Einkaufszentrum <600m

Sonstige
Geldautomat <250m
Bank <375m
Post <375m
Polizei <375m

Verkehr
Bus <200m
U-Bahn <300m
Straßenbahn <275m
Bahnhof <375m
Autobahnanschluss <900m

Angaben Entfernung Luftlinie / Quelle: OpenStreetMap

Eckdaten Objektnr. 11445

Art: Wohnung
Land: Österreich
Baujahr: 2025
Zustand: Erstbezug
Alter: Neubau
Kaufpreis: 2.249.000,00
Provision: 3% des Kaufpreises zzgl. 20% USt.
Wohnfläche: 238,47 m²
Nutzfläche: 314,32 m²
Gesamtfläche: 314,32 m²
Zimmer: 5
Bäder: 2
WC: 3
Balkone: 1
Terrassen: 4
Keller: 10,00 m²
Heizwärmebedarf:  B  43,80 kWh/m²a
fGEE:  A+  0,65
Immobilie merken Exposé

Ausstattung

Parkett, Fliesen, Fußbodenheizung, Zentralheizung, Personenaufzug, Bad mit Fenster, Badewanne, Dusche, Sauna


Immobilie anfragen


Ihre persönliche Beratung

Accenta Immobilien e.U.

Michael Riedler

Accenta Immobilien e.U.

T +43 1 997 18 00

H +43 699 14228400

F +43 1 997 18 00 – 10