Erstbezug nach Sanierung – Studio-Apartment mit Balkon im 3. Liftstock eines gepflegten Altbaus, gewerbliche und touristische Nutzung zulässig

Wohnung , 1050 Wien


Beschreibung der Immobilie

Erstbezug nach Sanierung – Studio-Apartment mit Balkon im 3. Liftstock eines gepflegten Altbaus, gewerbliche und touristische Nutzung zulässig

Die wichtigsten Eckdaten dieser Immobilie:



+ Baujahr 1909



+ ca. 35 m²



+ 3. Liftstock



+ 1 Zimmer zzgl. Balkon



+ Parkettböden



+ Kellerabteil



+ sanierter, gepflegter Altbau



+ ruhige Lage: Gute Parkplatzsituation und dennoch zentrale Anbindung



+ freundliches Straßenbild mit Baumbestand





Die Wohnung



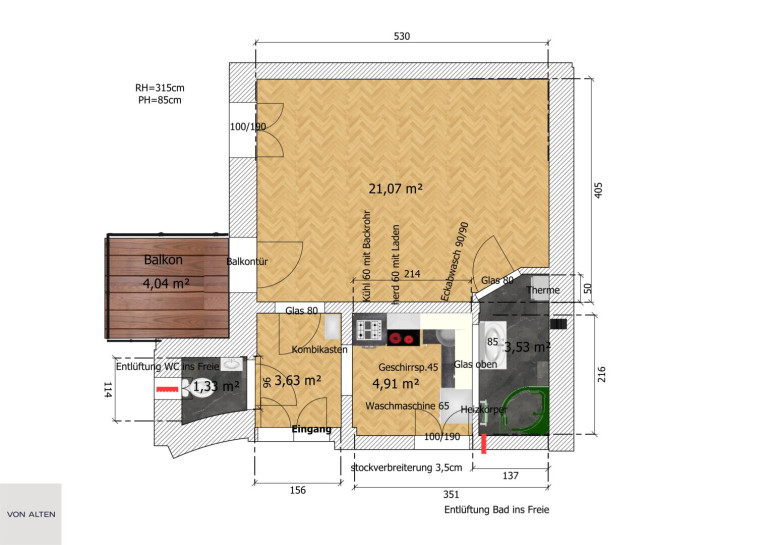
Diese im Juli 2025 vollständig sanierte Wohnung liegt in einer begrünten Straße und verfügt über eine Wohnfläche von rund 35 m².



Vom Vorzimmer aus gelangen Sie direkt in das Badezimmer, während die separate Toilette ebenfalls vom Eingangsbereich erreichbar ist. Das Entrée führt zudem in die Küche, die mit einer Einbauküche sowie einem Waschmaschinenanschluss ausgestattet ist, und weiter in das Schlafzimmer. Im gesamten Wohnbereich wurde Parkettboden verlegt.



Eine verglaste Tür verbindet das Schlafzimmer mit dem Balkon und sorgt gleichzeitig für ein helles und freundliches Wohnambiente.



Ein Kellerabteil ist der Wohnung zugeordnet und bietet zusätzlichen Stauraum.





Die Lage



Die Wohnung liegt im lebendigen Wiener Stadtteil Margareten, einem zentralen und beliebten Wohnbezirk mit hervorragender Anbindung und Infrastruktur. Einkaufsmöglichkeiten, Cafés, Restaurants sowie Schulen und Kindergärten befinden sich in unmittelbarer Nähe. 



Durch die aktuell im Bau befindliche U2-Verlängerung entsteht in den nächsten Jahren die U-Bahn-Station Reinprechtsdorfer Straße (Siebenbrunnengasse 41-43: Aufzüge und Stiegenaufgang). Neben dem erhöhten Komfort kann dadurch auch von einer weiteren Aufwertung der Lage ausgegangen werden.



Für Freizeitaktivitäten im Grünen bieten sich der nahegelegene Waldmüllerpark und der Alois-Drasche-Park an.



Öffentliche Anbindung




  • Bushaltestelle:



    • Fendigasse: ca. 80 m


  • Straßenbahn-Haltestellen:



    • Matzleinsdorfer Platz: ca. 400 m (Linien 1, 6, 18, 62, WLB, S-Bahn, 14A, zukünftige U2-Station)


  • U-Bahn-Station:



    • Südtiroler Platz: ca. 1,6 km (U1)
    • Zukünftige Station: Reinprechtsdorfer Straße: ca. 300 m (U2)


Wir weisen darauf hin, dass zwischen dem Vermittler und dem zu vermittelnden Dritten ein familiäres oder wirtschaftliches Naheverhältnis besteht.

Infrastruktur / Entfernungen

Gesundheit
Arzt <500m
Apotheke <500m
Klinik <1.500m
Krankenhaus <1.000m

Kinder & Schulen
Schule <500m
Kindergarten <500m
Universität <1.000m
Höhere Schule <1.000m

Nahversorgung
Supermarkt <500m
Bäckerei <500m
Einkaufszentrum <1.000m

Sonstige
Geldautomat <500m
Bank <500m
Post <500m
Polizei <1.000m

Verkehr
Bus <500m
U-Bahn <500m
Straßenbahn <500m
Bahnhof <500m
Autobahnanschluss <3.500m

Angaben Entfernung Luftlinie / Quelle: OpenStreetMap

Eckdaten Objektnr. 8425/157

Art: Wohnung
Land: Österreich
Baujahr: 1909
Zustand: Voll_saniert
Alter: Altbau
Kaufpreis: 249.000,00
Provision: 3% des Kaufpreises zzgl. 20% USt.
Betriebskosten: 69,68 €
MwSt Gesamt: 8,77 €
Wohnfläche: 35,00 m²
Bäder: 1
WC: 1
Balkone: 1
Heizwärmebedarf:  F  202,60 kWh/m²a
fGEE: 1,42
Immobilie merken Exposé

Ausstattung

Parkett, Einbauküche, Personenaufzug, Ostbalkon, Badewanne


Immobilie anfragen


Ihre persönliche Beratung

von Alten Immobilientreuhand GmbH

Lucie von Alten

von Alten Immobilientreuhand e.U.

T +4369910816911