Geförderte 3-Zimmer Maisonette mit Garten und überdachten PKW-Abstellplatz

Wohnung , 3200 Ober-Grafendorf , Hauptstraße 9


Ober-Grafendorf ist eine Marktgemeinde mit 4697 Einwohnern im Bezirk Sankt Pölten-Land in Niederösterreich.

Beschreibung der Immobilie

Geförderte 3-Zimmer Maisonette mit Garten und überdachten PKW-Abstellplatz

Das Projekt besteht aus einem zwei- bis dreigeschoßigen Gebäude. Die 22 Wohnungen befinden sich im 1. und 2. Obergeschoß und zu jeder Wohnung gehört ein Tiefgaragenabstellplatz. Alle Wohnungen sind mit Terrasse oder Balkon ausgestattet, Top 4 bis 10 zusätzlich mit rund 20 m² Eigengarten. Im Erdgeschoß befindet sich ein Handelszentrum mit 5 Geschäften.



Wunderschöne 3-Zimmer Maisonette  - "Wohnzuschuss möglich"



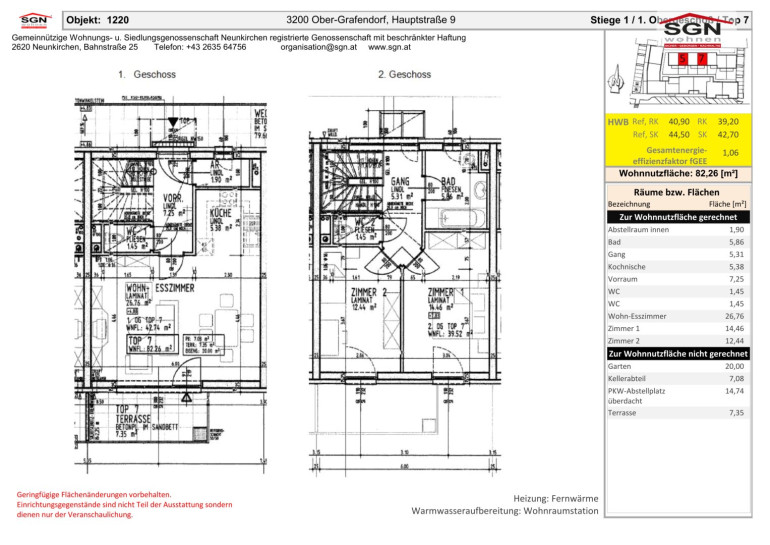
Die Wohnung verfügt über einen großzügigen Wohn-Küche-Bereich mit direktem Ausgang auf die Terrasse. Weiters verfügt die Maisonette über zwei Schlafzimmer, ein Badezimmer das mit Badewanne und einen Waschmaschinenanschluss ausgestattet ist, zwei separaten WC´s, einem Abstellraum, einem Kellerabteil und einem Tiefgaragenabstellplatz.

Alle Räume sind gut geschnitten und leicht einzurichten.





Da es sich um eine geförderte Mietwohnung handelt kann ein Wohnzuschuss beantragt werden. Gerne stehen wir für sämtliche Fragen zu Ihrer Verfügung.



Ein schönes Zuhause wartet auf Sie!




Der Immobilienmakler erklärt, dass er – entgegen dem in der Immobilienwirtschaft üblichen Geschäftsgebrauch des Doppelmaklers – einseitig nur für den Vermieter tätig ist.

Infrastruktur / Entfernungen

Gesundheit
Arzt <5.675m
Apotheke <75m
Klinik <7.300m
Krankenhaus <9.325m

Kinder & Schulen
Schule <200m
Kindergarten <150m
Höhere Schule <6.750m
Universität <9.425m

Nahversorgung
Supermarkt <375m
Bäckerei <25m
Einkaufszentrum <3.025m

Sonstige
Bank <75m
Geldautomat <75m
Post <175m
Polizei <175m

Verkehr
Bus <50m
Bahnhof <550m
Autobahnanschluss <3.100m
Flughafen <3.150m

Angaben Entfernung Luftlinie / Quelle: OpenStreetMap

Eckdaten Objektnr. 1220007

Art: Wohnung
Land: Österreich
Zustand: Gepflegt
Alter: Neubau
Gesamtmiete: 929,31
Kaltmiete (netto): 504,08 €
Kaltmiete: 750,61 €
Provision: Gemäß Erstauftraggeberprinzip bezahlt der Abgeber die Provision.
Betriebskosten: 246,53 €
Heizkosten: 86,37 €
MwSt Gesamt: 92,33 €
Wohnfläche: 82,26 m²
Zimmer: 3
Bäder: 1
WC: 2
Terrassen: 1
Garten: 20,00 m²
Keller: 7,08 m²
Heizwärmebedarf: 40,90 kWh/m²a
fGEE: 0,97
Immobilie merken Exposé

Ausstattung

Fliesen, Laminatboden, Wohnküche / offene Küche, Südbalkon, Badewanne, Kabel/Satelliten-TV, Tiefgarage


Immobilie anfragen


Ihre persönliche Beratung

SGN Gemeinnützige Wohnungs- u. Siedlungsgenossenschaft Neunkirchen reg.Gen.m.b.H.

Fabian Männl, MA

SGN Gemeinnützige Wohnungs- u. Siedlungsgenossenschaft Neunkirchen reg.Gen.m.b.H.

T +43 2635 64756 14

H +43 664 8347376