Praxis kombiniert mit Wohnen und Lagerflächen

Büro / Praxis - Praxis, 1150 Wien


Beschreibung der Immobilie

Praxis kombiniert mit Wohnen und Lagerflächen

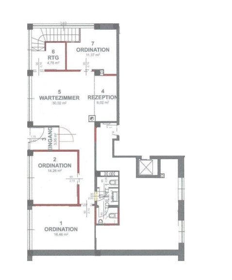
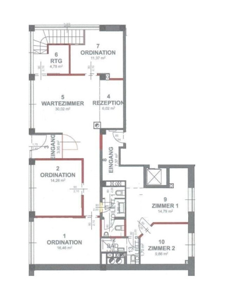
Derzeit wird diese interessante Immobilie als top-ausgestattete Zahnarztpraxis mit separatem Wohnbereich im Erdgeschoß sowie Aufenthaltsbereich, Umkleide, Dusche und Ruhebereich im Untergeschoß verwendet. Sie besteht aus 3 separaten WE-Objekten.

Die aufwändige Komplettsanierung wurde 2017 begonnen.

Auf den Fotos sieht man die hochwertige Ausstattung der 3 Praxisräume samt WC-Anlage, Rezeption und Wartebereich im EG.

Die 2. Einheit wurde mit einem separaten Zugang als Wohnung umfunktioniert und hat 2 Zimmer, WC und Bad.

Die 3. Einheit ist von der Praxis aus durch eine Treppe ins UG erreichbar und besteht aus Aufenthaltsraum, Umkleidebereich, Ruheraum und Dusche sowie Stauraum.

Im Angebotspreis sind die Medizingeräte sowie spezifischen Möbel nicht inkludiert und werden beim Verkauf entfernt. Auf Wunsch können sie gegen Ablöse auch überlassen werden.


Zur Ausstattung:
Die Auslagen wurden neu mit 3-fach Verglasung ausgestattet. Beheizt wird mittels Zentralheizung.
Es ist im UG Fußbodenheizung verbaut. Im EG gibt es Heizkörper.
Die Rezeption ist vis a vis vom Eingang und ein geräumiger Wartebereich steht den Patienten zur Verfügung. Die notwendigen Installationen wurden genau auf den Betrieb einer Praxis im Lokal abgestimmt.

Die Praxis ist noch in Betrieb, Besichtigungstermine können nach Abstimmung gerne vereinbart werden.

Wir freuen uns auf Ihre Anfrage.


Monatliche Vorschreibung für alle drei WE-Objekte summiert
BK netto EUR 914,25
HK netto EUR 240,50
WW netto EUR 25,76
Rücklage netto EUR 516,75
bei Steuerfreiheit gem. §6, Abs.1, Z16 bzw. Z17 kommt noch folgender Betrag hinzu: EUR 221,38





Infrastruktur / Entfernungen

Gesundheit
Arzt <500m
Apotheke <500m
Klinik <500m
Krankenhaus <1.500m

Kinder & Schulen
Schule <500m
Kindergarten <500m
Universität <1.000m
Höhere Schule <2.000m

Nahversorgung
Supermarkt <500m
Bäckerei <500m
Einkaufszentrum <1.000m

Sonstige
Geldautomat <500m
Bank <500m
Post <500m
Polizei <1.000m

Verkehr
Bus <500m
U-Bahn <1.000m
Straßenbahn <500m
Bahnhof <1.000m
Autobahnanschluss <4.000m

Angaben Entfernung Luftlinie / Quelle: OpenStreetMap

Eckdaten Objektnr. 1619/7087

Art: Büro / Praxis - Praxis
Land: Österreich
Zustand: Neuwertig
Kaufpreis: 850.000,00
Provision: 3% des Kaufpreises zzgl. 20% USt.
Nutzfläche: 185,00 m²
Zimmer: 7,50
WC: 4
Heizwärmebedarf:  C  100,00 kWh/m²a
Immobilie merken Exposé

Ausstattung

Zentralheizung


Immobilie anfragen


Ihre persönliche Beratung

RE/MAX Real Experts Immobilien lifetime GmbH

Hubert Koller

RE/MAX Real Experts Immobilien lifetime GmbH

T +43 (0)1/ 470 25 00

H +43 (0)699/ 189 28 281