3-Zimmer-Wohnung nahe Gersthofer Platz u. Türkenschanzpark
Wohnung
,
1180
Wien
Beschreibung der Immobilie
3-Zimmer-Wohnung nahe Gersthofer Platz u. Türkenschanzpark
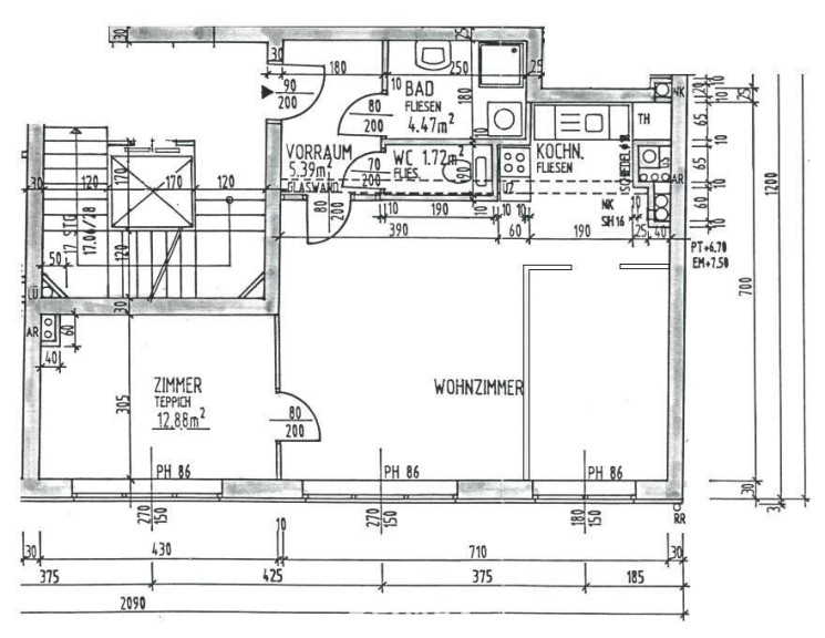
Zur Vermietung (befristet auf 4 Jahre) gelangt diese westseitige 3-Zimmer-Wohnung im 2. Liftstock nahe Gersthofer Platz, S-Bahn Gersthof und Türkenschanzpark.Aus dem Vorraum gelangen Sie in das Wohnzimmer mit anschließender Kochnische, das Bad und das separate WC. Aus dem Wohnzimmer gelangen Sie in ein Zimmer mit ca. 13 m² und über den Küchenbereich in ein weiteres Zimmer.
Umgebung:
gute öffentliche Anbindung durch S-Bahn Gersthof, Straßenbahnlinien 40, 41 (Richtung Schottentor) sowie 10A, 42A
Gersthofer Straße und Währinger Einkaufsstraße - sämtliche Geschäfte des täglichen Bedarfs sowie div. Lokale und Restaurants vorhanden
Türkenschanzpark
Der Immobilienmakler erklärt, dass er – entgegen dem in der Immobilienwirtschaft üblichen Geschäftsgebrauch des Doppelmaklers – einseitig nur für den Vermieter tätig ist.
Infrastruktur / Entfernungen
Gesundheit
Arzt <500m
Apotheke <500m
Klinik <1.000m
Krankenhaus <2.000m
Kinder & Schulen
Schule <500m
Kindergarten <500m
Universität <1.000m
Höhere Schule <500m
Nahversorgung
Supermarkt <500m
Bäckerei <500m
Einkaufszentrum <1.500m
Sonstige
Geldautomat <500m
Bank <500m
Post <500m
Polizei <1.000m
Verkehr
Bus <500m
U-Bahn <1.500m
Straßenbahn <500m
Bahnhof <500m
Autobahnanschluss <3.000m
Angaben Entfernung Luftlinie / Quelle: OpenStreetMap
Eckdaten Objektnr. 1619/7900
| Art: | Wohnung |
| Land: | Österreich |
| Baujahr: | 1992 |
| Möbliert: | Teil |
| Gesamtmiete: | 1.135,00 € |
| Kaltmiete (netto): | 930,88 € |
| Kaltmiete: | 1.116,44 € |
| Provision: | Gemäß Erstauftraggeberprinzip bezahlt der Abgeber die Provision. |
| Betriebskosten: | 185,56 € |
| MwSt Gesamt: | 18,56 € |
| Wohnfläche: | 63,00 m² |
| Zimmer: | 3 |
| Bäder: | 1 |
| WC: | 1 |
| Heizwärmebedarf: | C 57,00 kWh/m²a |
Ausstattung
Gas, Etagenheizung
Ihre persönliche Beratung
Florian Mattersberger (Team Hubert Koller)
RE/MAX Real Experts Immobilien lifetime GmbH
H +43 (0)660 470 25 31