Studentennest - Grünruhelage mit Balkon

Wohnung - Etage, 1100 Wien,Favoriten


Quellenstraße/Absberggasse

Beschreibung der Immobilie

Studentennest - Grünruhelage mit Balkon

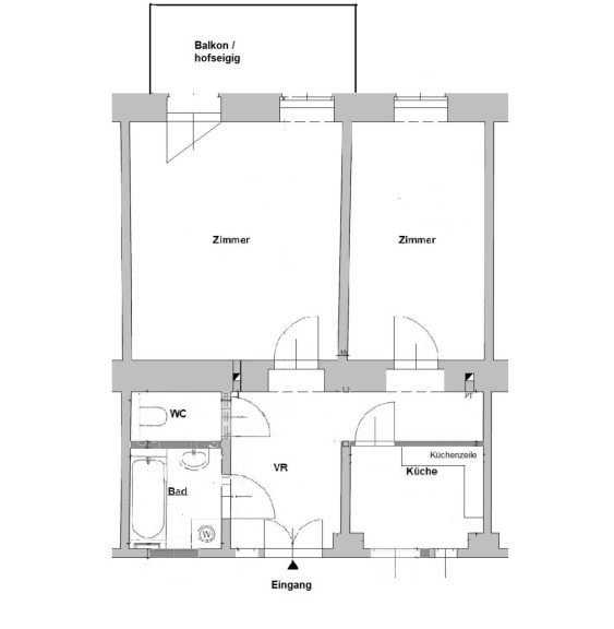
Die Wohnung liegt im 2. Stock (mit Lift) und besteht aus einem Zimmer ( ca 20 m² ) mit Ausgang auf den ca 7 m² großen Balkon, einem kleineren Zimmer ( ca 13 m² ), einer eingerichteten Küche, einem Bad mit Wanne, Waschbecken und WM-Anschluss, einer Toilette mit Handwaschbecken sowie einem Vorraum. Beheizt wird mittels einer Gasetagenheizung.



Alle Zimmer der Wohnung sind getrennt begehbar!

Die Wohnung ist sehr gut 2 er WG geeignete, aber auch eine Paar würde sich dort sehr wohl fühlen.



Die beiden Zimmer und der Balkon gehen in den begrünten, sehr ruhigen Innenhof!



Die Wohnung ist in einem neuwertigen Zustand und kann per sofort übernommen und bezogen werden.



Die Anbindung der Wohnung an das öffentliche Verkehrsnetz ist sehr gut.



Die Straßenbahnlinie 6 liegt in direkter Nähe zur Wohnung. Auch zum Reumannplatz ist es nicht weit, dort befinden sich folgende Verkehrsmittel: U1, Straßenbahnlinien 6, 67, O und die Buslinien 14A, 68A und 68B. 



Weiters sind im Umkreis der Quellenstraße und des Reumannplatzes eine Vielzahl an Geschäften und Lokalen zu finden.



Energiekennziffern wurden beim Eigentümer angefragt (§ 9 Abs/ EAVG 2012)



Zur Vereinbarung eines Besichtigungstermines bitte ich um Zusendung einer Anfrage per mail  direkt von der jeweiligen Website auf welcher Sie sich gerade befinden.



Für allfällige Fehlinformationen bzw. Irrtümer in den Angaben übernehmen wir keine Haftung!



Nähere Informationen über die Datenschutzverordnung finden sie unter www.trimond.at


Hinweis gemäß Energieausweisvorlagegesetz: Ein Energieausweis wurde vom Eigentümer bzw. Verkäufer, nach unserer Aufklärung über die generell geltende Vorlagepflicht, sowie Aufforderung zu seiner Erstellung noch nicht vorgelegt. Daher gilt zumindest eine dem Alter und der Art des Gebäudes entsprechende Gesamtenergieeffizienz als vereinbart. Wir übernehmen keinerlei Gewähr oder Haftung für die tatsächliche Energieeffizienz der angebotenen Immobilie.


Wir weisen darauf hin, dass zwischen dem Vermittler und dem zu vermittelnden Dritten ein familiäres oder wirtschaftliches Naheverhältnis besteht.


Der Immobilienmakler erklärt, dass er – entgegen dem in der Immobilienwirtschaft üblichen Geschäftsgebrauch des Doppelmaklers – einseitig nur für den Vermieter tätig ist.

Infrastruktur / Entfernungen

Gesundheit
Arzt <1.000m
Apotheke <500m
Klinik <1.000m
Krankenhaus <2.500m

Kinder & Schulen
Schule <500m
Kindergarten <500m
Universität <500m
Höhere Schule <2.000m

Nahversorgung
Supermarkt <500m
Bäckerei <500m
Einkaufszentrum <1.500m

Sonstige
Geldautomat <500m
Bank <500m
Post <500m
Polizei <1.500m

Verkehr
Bus <500m
U-Bahn <1.000m
Straßenbahn <500m
Bahnhof <500m
Autobahnanschluss <500m

Angaben Entfernung Luftlinie / Quelle: OpenStreetMap

Eckdaten Objektnr. 6202/100202

Art: Wohnung - Etage
Land: Österreich
Alter: Altbau
Gesamtmiete: 890,96
Kaltmiete (netto): 809,96 €
Kaltmiete: 809,96 €
Provision: Gemäß Erstauftraggeberprinzip bezahlt der Abgeber die Provision.
MwSt Gesamt: 81,00 €
Wohnfläche: 54,25 m²
Zimmer: 2
Bäder: 1
WC: 1
Balkone: 1
Immobilie merken Exposé

Ausstattung

Fliesen, Parkett, Gas, Etagenheizung, Einbauküche, Personenaufzug, Badewanne


Immobilie anfragen


Ihre persönliche Beratung

TRIMOND Immobilienmakler GesmbH

Trimond Immobilienmakler Ges. m. b. H.

T 01/713 58 22