ZWEITBEZUG: 3-Zimmer-Wohnung mit Loggia in der Varnhagengasse

Wohnung - Dachgeschoß, 1220 Wien , Varnhagengasse


1220 Wien / Varnhagengasse / Erzherzog-Karl-Straße (Bahnhof) mit den Linien: S80, R81. ca. 100m von der Konstanzigasse mit der Straßenbahnlinie: 25 bzw. den Buslinien: 86a, 87a, 95a, 96a, N26

Beschreibung der Immobilie

ZWEITBEZUG: 3-Zimmer-Wohnung mit Loggia in der Varnhagengasse

Zur Vermietung gelangt hier eine 3-Zimmer-Wohnung mit Loggia im Dachgeschoss zum Zweitbezug!





Beschreibung:



Die Wohnung wird ab März 2026 befristet vermietet und befindet sich in einer neu sanierten Wohnhausanlage im 22. Bezirk mit Dachgeschossausbau.



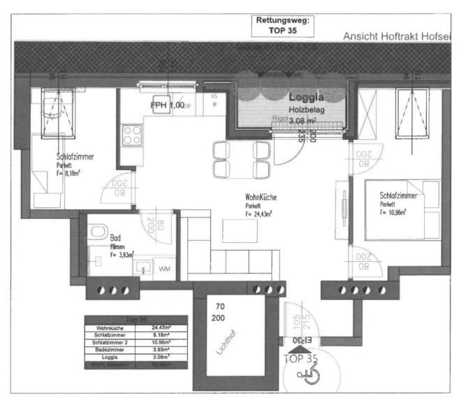
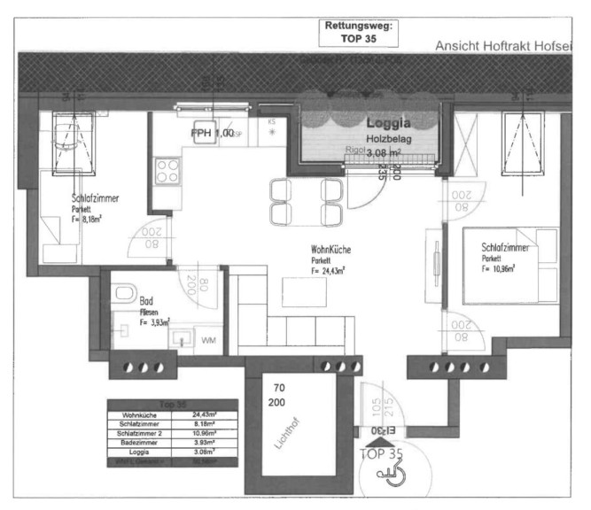
Die Wohnung hat knappe 51 m2 inkl. einer Loggia. Die drei Räume (Wohnzimmer und die zwei Schlafzimmer) sind mit Parkettböden verlegt. Es erwartet Sie eine neuwertige Küche mit Kühlschrank, Gefrierschrank, Geschirrspüler, Abwasch und Herd mit einer Arbeitsplatte etc. Das Badezimmer ist mit einer Dusche, Waschbecken, Spiegel, WC und einem Waschmaschinenanschluss ausgestattet. Abgesichert sind Sie durch die Sicherheitstür zur Wohnung.



Die Beheizung der Wohnung erfolgt über eine Wärmepumpe (Fußbodenheizung). 



 



 



Ein Aufzug ist vorhanden.



 





Ausstattung:



Parkettböden in den Wohnräumen, elektrische Außenjalousien, Internet- und Kabel-Anschlüsse, Gegensprechanlage, Zentral-Fußbodenheizung; Sicherheitstür





Lage:



Die Wohnung befindet sich nahe  Erzherzog-Karl-Straße (Bahnhof) mit den Linien: S80, R81. Eine Anbindung haben Sie auch unmittelbar in ca. 100m von der Konstanzigassemit der Straßenbahnlinie: 25 bzw. den Buslinien: 86a, 87a, 95a, 96a, N26







Konditionen:



Kündigungsverzicht: 1 JahrKündigungsfrist: 3 Monate;



Gesamtmiete (inkl. Betriebskosten, sowie Steuern und Abgaben): € 1.064,28



Kaution: 3.000,-



Mietvertragserrichtung: € 360,- (einmalig zu entrichten)



provisionsfrei für den/die Mieter*in!





Heizung & Strom werden auf den/die Mieter*in umgemeldet.



TV und Internet sind nach Bedarf selbst an- und wieder abzumelden.



Ein Abschluss einer Haushaltsversicherung wird vor dem Einzug empfohlen.







Kontakt



Bitte beachten Sie, dass wir aufgrund der Nachweispflicht gegenüber dem Eigentümer nur Anfragen mit vollständiger Angabe der Anschrift bearbeiten können. 



Wir senden Ihnen gerne weitere und detaillierte Beschreibungen, sowie Besichtigungstermine zu, sobald wir Ihre Anfrage erhalten haben.



Wir bitten Sie daher um eine E-Mail-Anfrage an: stifter@pr-immobilien.at

Noch nichts gefunden? Wir informieren Sie über geeignete Immobilienangebote noch vor allen anderen.
Legen Sie jetzt Ihren individuellen Suchagenten unter folgendem Link an. Wir schicken Ihnen passende Immobilien exklusiv vorab zu.

Suchagent anlegen - https://pr-immobilien-real-estate.service.immo/registrieren/de


Hinweis gemäß Energieausweisvorlagegesetz: Ein Energieausweis wurde vom Eigentümer bzw. Verkäufer, nach unserer Aufklärung über die generell geltende Vorlagepflicht, sowie Aufforderung zu seiner Erstellung noch nicht vorgelegt. Daher gilt zumindest eine dem Alter und der Art des Gebäudes entsprechende Gesamtenergieeffizienz als vereinbart. Wir übernehmen keinerlei Gewähr oder Haftung für die tatsächliche Energieeffizienz der angebotenen Immobilie.


Der Immobilienmakler erklärt, dass er – entgegen dem in der Immobilienwirtschaft üblichen Geschäftsgebrauch des Doppelmaklers – einseitig nur für den Vermieter tätig ist.

Infrastruktur / Entfernungen

Gesundheit
Arzt <250m
Apotheke <500m
Klinik <500m
Krankenhaus <1.250m

Kinder & Schulen
Schule <250m
Kindergarten <500m
Universität <3.250m
Höhere Schule <2.750m

Nahversorgung
Supermarkt <250m
Bäckerei <250m
Einkaufszentrum <1.000m

Sonstige
Geldautomat <500m
Bank <500m
Post <500m
Polizei <750m

Verkehr
Bus <250m
U-Bahn <750m
Straßenbahn <250m
Bahnhof <500m
Autobahnanschluss <500m

Angaben Entfernung Luftlinie / Quelle: OpenStreetMap

Eckdaten Objektnr. 3865

Art: Wohnung - Dachgeschoß
Land: Österreich
Baujahr: 2024
Zustand: Erstbezug
Alter: Neubau
Gesamtmiete: 1.064,28
Kaltmiete (netto): 817,53 €
Kaltmiete: 967,53 €
Provision: Gemäß Erstauftraggeberprinzip bezahlt der Abgeber die Provision.
Betriebskosten: 150,00 €
MwSt Gesamt: 96,75 €
Nutzfläche: 50,58 m²
Zimmer: 3
Bäder: 1
WC: 1
Terrassen: 1
Immobilie merken Exposé

Ausstattung

Parkett, Estrichboden, Fliesen, Fußbodenheizung, Wohnküche / offene Küche, Personenaufzug, Südbalkon, Dusche, Kabel/Satelliten-TV


Immobilie anfragen


Ihre persönliche Beratung

PR-IMMOBILIEN / REAL ESTATE

Marissa Stifter

PR-IMMOBILIEN - REAL ESTATE Paunovic Radisa (Inh. & GF)

T +43 / 676 / 59 00 280

H 0676 / 59 00 280