Bis Ende 2026 befristet vermietetes Gründerzeit-Zinshaus mit baubewilligtem zweigeschossigen Dachgeschoss-Ausbau

Zinshaus Renditeobjekt , 1210 Wien


Beschreibung der Immobilie

Bis Ende 2026 befristet vermietetes Gründerzeit-Zinshaus mit baubewilligtem zweigeschossigen Dachgeschoss-Ausbau

Zum sofortigen Verkauf gelangt ein dreigeschossiges Zinshaus der Gründerzeit mit schlichter Fassade und einem ruhigem Innenhof in einer verkehrsberuhigten Seitengasse in guter Lage des 21. Wiener Gemeindebezirks Floridsdorf. Die Liegenschaft befindet sich in nur ca. 300 m Entfernung von der U-Bahn-Station Floridsdorf.



Auf einer Grundstücksfläche von ca. 296 m² umfasst das Zinshaus derzeit eine Wohnfläche von ca. 340,63 m². Die Liegenschaft ist bis Ende 2026 befristet vermietet.



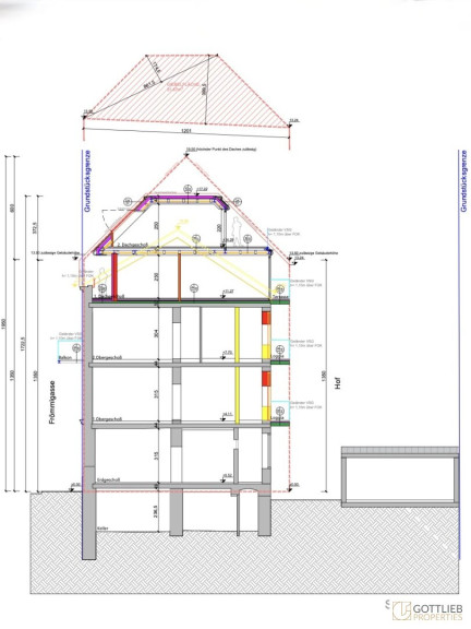
Für den Ausbau des Rohdachbodens liegt bereits eine Baubewilligung per November 2024 vor.



Eine Baugenehmigung zur Abtragung der bestehenden Dachkonstruktion und zum Ausbau des Dachgeschosses sieht eine Aufstockung um zwei Dachgeschosse vor, welche zusammen mit dem Altbestand insgesamt neun Wohneinheiten ermöglichen.



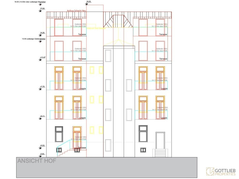
Durch den Um- und Ausbau ergibt sich eine projektierte Wohnnutzfläche von insgesamt ca. 611,59 m². Alle Wohnungen haben entweder Balkone oder Terrassen von insgesamt ca. 64,62 m², Loggien im Umfang von insgesamt ca. 18,64 m² oder einen Garten von insgesamt ca. 39,36 m².



Die bewilligte Planung gemäß Einreichplan sieht ein barrierefreies Treppenhaus im Innenhof mit Personenlift vom Erdgeschoss bis ins zweite Dachgeschoss sowie einen Kinderwagen- und Fahrradabstellraum vor.



Das Objekt bietet eine seltene Gelegenheit zur Entwicklung hochwertiger Wohneinheiten in einem klassischen Altbau mit Potenzial zur Wertsteigerung.





Der Bestand




+ drei Geschosse



+ Kellergeschoss



+ bestandsfrei per Ende 2026





Die Flächenwidmung 



+ gemischtes Baugebiet



+ Bauklasse III



+ geschlossene Bauweise



+ Beschränkung der Gebäudehöhe auf 12 m





Der Ertrag



Laut aktueller Zinsliste beträgt der Jahreszinsertrag derzeit € 38.236,32 netto p.a.





Das Potential



+ behördlich genehmigte Baubewilligung per November 2024



+ Abtragung der bestehenden Dachkonstruktion



+ Aufstockung um zwei Dachgeschosse



+ Errichtung von neun Wohneinheiten mit insgesamt ca. 611,59 m² Nutzfläche



+ Straßen- und hofseitig gelegene Terrassen, Balkone und Loggien mit einer Größe von ca. 83,00 m²



+ Hofseitiger Garten mit einer Größe von ca. 39,00 m²



+ Errichtung eines barrierefreien Personenliftes



+ Kinderwagen- und Fahrradabstellraum



+ Müllraum





Lage



Der 21. Wiener Gemeindebezirk Floridsdorf liegt nördlich der Donau und erstreckt sich vom Donauufer bis zu den Ausläufern des Bisambergs. In den letzten Jahren hat sich der Bezirk dynamisch entwickelt und gilt heute als beliebte und lebenswerte Wohngegend.



Charakteristisch für Floridsdorf sind charmante Altbauten, moderne Wohnanlagen sowie traditionsreiche Gewerbebetriebe wie die Floridsdorfer Brauerei und die ÖBB-Werkstätten. Die kulturelle Vielfalt und der zum Teil dörfliche Charakter tragen wesentlich zum besonderen Flair des Bezirks bei.



Sämtliche Schulen und Kindergärten, Restaurants, Cafés, Bars sowie Geschäfte und Einrichtungen des täglichen Bedarfs befinden sich in Gehnähe. Die nahegelegte Brünner Straße sowie die Floridsdorfer Hauptstraße bieten zahlreiche Einkaufsmöglichkeiten, während der Floridsdorfer Markt zum gemütlichen Verweilen einlädt.



Erholung und Freizeitgestaltung findet man im weitläufigen Wasserpark, im romantischen Aupark oder entlang des Marchfeldkanals. Auch die Donauinsel liegt nur wenige Minuten entfernt und bietet zahlreiche Freizeit- und Sportmöglichkeiten. Das Bezirksmuseum Floridsdorf, das Strandbad Angelibad oder traditionelle Heurige in Strebersdorf runden das kulturelle und kulinarische Angebot ab.





Infrastruktur



+ U-Bahn-Linie U6



+ Autobus-Linien 28A, 29A, 33A, 34A und 36A



+ Straßenbahn-Linien 25, 26, 30 und 31



+ Schnellbahn S1, S2, S3, S7





Sonstiges



Wir ersuchen um Verständnis, dass wir aufgrund unserer Nachweispflicht gegenüber dem Eigentümer nur Anfragen mit vollständigen Kontaktdaten (Name, Adresse, Mobilnummer, Email) bearbeiten können.


Wir weisen darauf hin, dass zwischen dem Vermittler und dem zu vermittelnden Dritten ein familiäres oder wirtschaftliches Naheverhältnis besteht.

Infrastruktur / Entfernungen

Gesundheit
Arzt <500m
Apotheke <500m
Klinik <1.000m
Krankenhaus <1.500m

Kinder & Schulen
Schule <500m
Kindergarten <500m
Universität <1.000m
Höhere Schule <500m

Nahversorgung
Supermarkt <500m
Bäckerei <500m
Einkaufszentrum <500m

Sonstige
Geldautomat <500m
Bank <500m
Post <500m
Polizei <500m

Verkehr
Bus <500m
U-Bahn <500m
Straßenbahn <500m
Bahnhof <500m
Autobahnanschluss <500m

Angaben Entfernung Luftlinie / Quelle: OpenStreetMap

Eckdaten Objektnr. 3880

Art: Zinshaus Renditeobjekt
Land: Österreich
Zustand: Projektiert
Alter: Neubau
Kaufpreis: 1.763.000,00
Provision: 3% des Kaufpreises zzgl. 20% USt.
Wohnfläche: 340,63 m²
Nutzfläche: 375,63 m²
Grundstücksfl.: 296,00 m²
Keller: 103,58 m²
Heizwärmebedarf:  B  41,20 kWh/m²a
fGEE:  A  0,76
Immobilie merken Exposé

Immobilie anfragen


Ihre persönliche Beratung

Desirée Gottlieb

Gottlieb Properties Immobilientreuhand GmbH

H + 43 699 14702557