Investieren mit gutem Gefühl: Solide 3,9 % Rendite & zuverlässige Mieterschaft

Wohnung - Erdgeschoß, 8075 Hart bei Graz , Eisweg 7


Eisweg 7, 8075 Hart bei Graz

Beschreibung der Immobilie

Investieren mit gutem Gefühl: Solide 3,9 % Rendite & zuverlässige Mieterschaft

Willkommen in Ihrer neuen Anlegerwohnung mit exklusivem Wohnkomfort und erstklassiger Ausstattung!



Diese hochwertige Garten-Garconniere ist bereits verlässlich vermietet, sodass Sie als Investor sofortige Mieteinnahmen erzielen. Mit einer attraktiven Miet-Nettorendite von ca. 3,9 %, einer durchdachten Raumaufteilung und hochwertiger Ausstattung bietet diese Wohnung eine sichere und nachhaltige Kapitalanlage.



Besonders attraktiv: Der aktuelle Mieter ist äußerst ordentlich und pflegt die Wohnung vorbildlich – sie befindet sich trotz laufender Vermietung in einem perfekten Zustand.



Investitionsvorteile auf einen Blick:



  • Sofortige Mieteinnahmen durch bestehendes, zuverlässiges Mietverhältnis
  • Langfristige Wertstabilität dank hochwertiger Bauweise
  • Sehr gute Vermietbarkeit durch optimale Größe und beliebte Lage
  • 3,9 % Miet-Nettorendite – attraktive Kapitalanlage mit stabiler Rendite
  • Fernwärme mit Fußbodenheizung – geringe Energiekosten, hohe Mieterzufriedenheit
  • Tiefgaragenstellplatz & Besucherparkplätze – zusätzlicher Komfort für Mieter
  • Frei zugängliche Dachterrasse mit Pergola, Sitzgelegenheiten & Begrünung
  • PV-Anlage am Dach für nachhaltige Bewirtschaftung


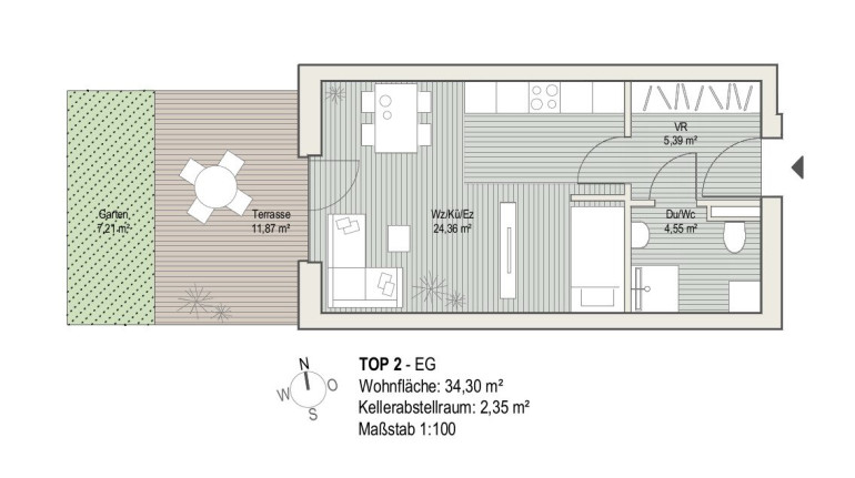
Top 2 – Kompakte Garten-Garconniere mit optimaler Vermietbarkeit



Die perfekt geschnittene Wohnung bietet auf 34,3 m² alles, was eine gefragte Mietwohnung ausmacht. Dank der westlichen Ausrichtung ist sie hell und freundlich, während Terrasse und Garten für zusätzlichen Wohnkomfort sorgen.



Raumaufteilung:


  • Zentraler Vorraum mit praktischer Nische für Stauraum
  • Wohn-/Essbereich (24,36 m²) mit Küchenanschlüssen
  • Badezimmer (4,55 m²) mit moderner Dusche, Waschbecken, WC & Waschmaschinenanschluss
  • Große Terrasse (11,87 m²) mit Platz für Sitzmöbel & Begrünung
  • Privater Garten (7,21 m²) – ideal für individuelle Nutzung durch Mieter


Nach Betreten der Wohnung gelangt man in den zentralen Vorraum, von dem aus sowohl das Badezimmer als auch der Wohnbereich erreichbar sind. Der großzügige Wohn-/Essbereich bietet genügend Platz für eine Küchenzeile, eine Wohnlandschaft, einen Essbereich und einen separaten Schlafbereich.



Die große Terrasse erweitert den Wohnraum nach draußen und lädt zum Entspannen ein. Der kleine Gartenanteil bietet zusätzliche Gestaltungsmöglichkeiten – sei es für eine Bepflanzung oder eine individuelle Nutzung durch die Mieter.



Ausstattung & Highlights:



  • 2,9 m Raumhöhe für ein großzügiges Wohngefühl
  • Hochwertiger Parkettboden & großformatige Fliesen (60 x 30 cm)
  • 3-fach verglaste Fenster mit elektrischen Außenraffstores
  • Fernwärme mit Fußbodenheizung für effizientes Heizen


Monatliche Brutto-Mieteinnahmen: € 579,00 (inkl. BK, Heizkosten & TG-Stellplatz)





Zusätzlich zum Kaufpreis von EUR 108.900 (Nettopreis) kommen folgende Kosten hinzu:



  • Tiefgaragenstellplatz: EUR 17.500 (Nettopreis)
  • Küche: EUR 2.500 (Nettopreis)


Das ergibt einen Netto-Gesamtpreis von EUR 128.900,- zuzügl. 20% USt.





Perfekte Kapitalanlage – bereits vermietet, sofortige Einnahmen & wertbeständig!



*Achtung, die möblierten Fotos wurden mittels AI erstellt und dienen lediglich als Inspiration.




Für weitere Details oder eine Besichtigung kontaktieren Sie uns unter +43 316 712 777 oder per E-Mail an info@fortunaimmobilien.at.



Wir freuen uns auf Ihre Anfrage!


Wir weisen darauf hin, dass zwischen dem Vermittler und dem zu vermittelnden Dritten ein familiäres oder wirtschaftliches Naheverhältnis besteht.

Es wird ausdrücklich auf ein wirtschaftliches Naheverhältnis zwischen dem Abgeber und BAG Projekt Vertriebs GmbH hingewiesen. BAG Projekt Vertriebs GmbH kann als Doppelmakler tätig sein.

Infrastruktur / Entfernungen

Gesundheit
Arzt <250m
Apotheke <650m
Klinik <4.975m
Krankenhaus <5.975m

Kinder & Schulen
Schule <475m
Kindergarten <275m
Universität <3.325m
Höhere Schule <5.475m

Nahversorgung
Supermarkt <600m
Bäckerei <3.625m
Einkaufszentrum <3.500m

Sonstige
Geldautomat <575m
Bank <575m
Post <3.125m
Polizei <3.125m

Verkehr
Bus <50m
Straßenbahn <3.700m
Bahnhof <1.575m
Autobahnanschluss <3.925m
Flughafen <9.300m

Angaben Entfernung Luftlinie / Quelle: OpenStreetMap

Eckdaten Objektnr. 14395

Art: Wohnung - Erdgeschoß
Land: Österreich
Baujahr: 2021
Zustand: Neuwertig
Alter: Neubau
Kaufpreis: 108.900,00
Provision: 3% des Kaufpreises zzgl. 20% USt.
Wohnfläche: 34,30 m²
Zimmer: 1
Bäder: 1
WC: 1
Garten: 7,21 m²
Keller: 2,35 m²
Heizwärmebedarf:  B  34,40 kWh/m²a
fGEE:  A  0,83
Immobilie merken Exposé

Ausstattung

Parkett, Fernwärme, Fußbodenheizung, Einbauküche, Personenaufzug, Tiefgarage


Immobilie anfragen


Ihre persönliche Beratung

BAG Projekt Vertriebs GmbH Fortuna Immobilien

Mag. Bernhard Gissing

BAG Projekt Vertriebs GmbH Fortuna Immobilien

T +43 316 712 777

F +43 316 712 777 30