Währinger Gürtel - 2 Zimmer Altbau mit hofseitigem Balkon

Wohnung , 1090 Wien


Nähe U6 Alser Straße und Michelbeuern AKH

Beschreibung der Immobilie

Währinger Gürtel - 2 Zimmer Altbau mit hofseitigem Balkon

1090 Wien



2 Zimmer Altbauwohnung mit hofseitigem Balkon zu vermieten, 



die Wohnung ist zur Zeit noch vermietet und kann ab dem 01. Jänner 2026 bezogen werden, 



die U6 Stationen Alser Straße und Michelbeuern AKH und die Straßenbahnlinie 43 sind nur wenige Gehminuten von der Wohnung entfernt, 



3. Liftstock, 



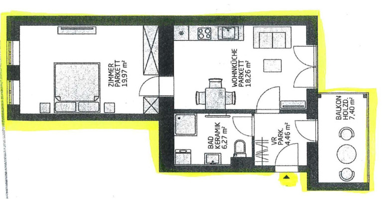
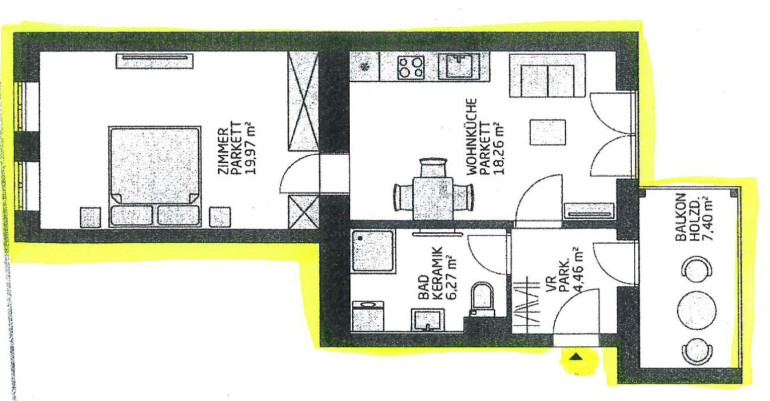
49,29m2 Wohnfläche zzgl. 7,40m2 Balkon,



Wohnzimmer mit offener Einbauküche, Schlafzimmer, Vorzimmer mit Zugang zum Balkon, 



Bad mit Dusche, WC und Waschmaschinenanschluss, 



Fernwärme, 



1 Kellerabteil vorhanden, 



BMM: € 958,47 ( inkl. BK und UST. )





Nebenkosten bei Anmietung:



Kaution: 4 BMM




Der Immobilienmakler erklärt, dass er – entgegen dem in der Immobilienwirtschaft üblichen Geschäftsgebrauch des Doppelmaklers – einseitig nur für den Vermieter tätig ist.

Infrastruktur / Entfernungen

Gesundheit
Arzt <500m
Apotheke <500m
Klinik <500m
Krankenhaus <500m

Kinder & Schulen
Schule <500m
Kindergarten <500m
Universität <500m
Höhere Schule <500m

Nahversorgung
Supermarkt <500m
Bäckerei <500m
Einkaufszentrum <1.000m

Sonstige
Geldautomat <500m
Bank <500m
Post <500m
Polizei <500m

Verkehr
Bus <500m
U-Bahn <500m
Straßenbahn <500m
Bahnhof <500m
Autobahnanschluss <3.000m

Angaben Entfernung Luftlinie / Quelle: OpenStreetMap

Eckdaten Objektnr. 6876/1582

Art: Wohnung
Land: Österreich
Alter: Neubau
Gesamtmiete: 958,47
Kaltmiete (netto): 752,67 €
Kaltmiete: 865,64 €
Provision: Gemäß Erstauftraggeberprinzip bezahlt der Abgeber die Provision.
Betriebskosten: 87,19 €
MwSt Gesamt: 92,83 €
Wohnfläche: 49,29 m²
Nutzfläche: 49,29 m²
Grundstücksfl.: 49,29 m²
Gesamtfläche: 49,29 m²
Zimmer: 2
Bäder: 1
WC: 1
Balkone: 1
Heizwärmebedarf:  B  32,57 kWh/m²a
fGEE:  A  0,82
Immobilie merken Exposé

Ausstattung

Fliesen, Parkett, Fernwärme, Einbauküche, Personenaufzug, Dusche


Immobilie anfragen


Ihre persönliche Beratung

BRI Immobilienmakler GmbH

Michelle Gnadenberger

BRI Immobilienmakler GmbH

T +43 676 7043377