SEVEN SENSES | sieben individuelle Wohneinheiten | ERSTBEZUG | einzigartige Architektur | Natur, Weinberge und Heurigen

Wohnung , 1210 Wien


Die Strebersdorfer Straße liegt im Herzen von Strebersdorf, einem der begehrtesten und grünsten Grätzl des 21. Bezirks. Zu dem überzeugt die Lage zwischen den Weinbergen von Strebersdorf, zahlreichen Heurigen, dem Bisamberg und dem Stadtwanderweg 5. Buslinie 30A und 32A (Busstation Steinamangergasse direkt um die Ecke) U-Bahn-Station Floridsdorf (U6) S-Bahn-Station Strebersdorf Auch für Autofahrer ist die Lage ideal – die Donauuferautobahn (A22) bietet eine schnelle Verbindung sowohl in die Innenstadt als auch ins Umland. Bisamberg: 15 Fahrminuten Stadtwanderweg 5: 5 Fahrminuten Marchfeldkanal: 5 Fahrminuten Hofer und Eurospar: 15 Gehminuten Sportzentrum Strebersdorf: 4 Fahrminuten Bildungscampus De La Salle (Kindergarten, Volksschule, Mittelschule, Allgemeinbildende Höhere Schulen): 3 Fahrminuten

Beschreibung der Immobilie

SEVEN SENSES | sieben individuelle Wohneinheiten | ERSTBEZUG | einzigartige Architektur | Natur, Weinberge und Heurigen

Willkommen bei SEVEN SENSES – wo sieben Sinne auf sieben einzigartige Wohneinheiten treffen, die unterschiedlicher nicht sein könnten - und doch eine harmonische Einheit bilden.



Das Neubauprojekt SEVEN SENSES umfasst insgesamt 7 Wohneinheiten zwischen 45 bis 114 m² Wohnfläche und wurde bewusst klein und familiär gehalten. Jede Einheit wurde individuell gestaltet und mit modernster Technik und feinsten Materialien ausgestattet. Seven Senses steht für zeitgemäßes Wohnen, einem modernen Wohngefühl (ERSTBEZUG), eingebettet in ein architektonisch anspruchsvolles Gesamtkonzept, das Komfort und Ästhetik vereint. Die Bauphase ist vollständig abgeschlossen - die Wohnung ist somit sofort bezugsfertig.



Viel Natur und frische Luft sind hier selbstverständlich – fast alle Wohnungen verfügen über großzügige Freiflächen in Form von Eigengärten, Balkonen oder Terrassen, die zum Entspannen und Genießen einladen. Hier fühlen sich Naturfreunde, Sportler und Hundeliebhaber gleichermaßen wohl. Ideal für Paare und kleine Familien, die das Stadtleben lieben, aber dennoch einen Rückzugsort zum Durchatmen suchen.





Überblick:



  • 7 Eigentumswohnungen | 2 bis 5 Zimmer | 45 m² bis 114 m²
  • Außenflächen bei jeder Einheit: Eigengarten, Balkon oder Terrasse 
  • Barrierefreier Zugang in allen Geschoßen
  • Hauseigene Tiefgarage mit 6 Stellplätzen und E-Ladestationen
  • Kellerabteile, Fahrrad- und Kinderwagenabstellraum 


Technische Ausstattung & Komfort:



  • Luft-Wärmepumpe
  • Fußbodenheizung und Kühlung in sämtlichen Wohnbereichen
  • Hochwertige Innenausstattung (Echtholzparkett in den Wohnräumen und italienische Feinsteinzeugfliesen in den Bädern)
  • 3-Scheiben-Isolierverglasung für optimale Wärmedämmung
  • Elektrisch bedienbarer Sonnenschutz von JOSKO (Alu-Raffstores) 
  • Natursteinbeläge - Terrasse
  • Qualitative Elektroinstallationen und Video-Gegensprechanlage
  • Glasfaseranschluss (A1)




Kontaktieren Sie uns für weitere Informationen und entdecken Sie Ihr neues Zuhause. Wir freuen uns darauf, Sie persönlich zu beraten!



Gerne steht Ihnen Frau Bettina Holzinger für weitere Fragen bzw. flexibel gestaltbare Besichtigungstermine unter 0664 358 24 26 zur Verfügung.  



www.ringsmuth-immobilien.at



Irrtum und Änderungen vorbehalten!

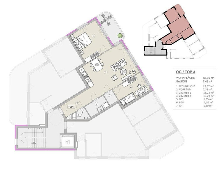
TOP 4: Viel Licht und ein Urban-Balkon oder einfach eine gemütliche Ecke zum Abschalten, besonders für Paare und Singles.



Du startest entspannt in den Tag und genießt deinen ersten Morgenkaffee im großzügigen Wohnbereich (ca. 28 m²) oder auf dem Urban-Balkon (ca. 8 m²), wo dich die letzten warmen Sonnenstrahlen begrüßen. Die gut geschnittenen 65 m² bieten dir mit zwei Schlafzimmern - eines davon ebenfalls mit direktem Zugang zum Urban-Balkon -jede Menge Flexibilität. Ob Homeoffice, Gästezimmer oder Raum für den Nachwuchs: Hier passt sich alles deinem Alltag an. Das Badezimmer mit Dusche sorgt für zusätzlichen Komfort.



Das Neubauprojekt SEVEN SENSES umfasst insgesamt 7 Wohneinheiten und wurde bewusst klein und familiär gehalten. Jede Einheit wurde individuell gestaltet und mit modernster Technik und feinsten Materialien ausgestattet. Seven Senses steht für zeitgemäßes Wohnen, eingebettet in ein architektonisch anspruchsvolles Gesamtkonzept, das Komfort und Ästhetik vereint. Die Bauphase ist vollständig abgeschlossen - die Wohnung ist somit sofort bezugsfertig.





Überblick: 



  • Wohnküche: ca. 27,57 m²
  • Vorraum: ca. 7,33 m²
  • Zimmer 1: ca. 15,22 m²
  • Zimmer 2: ca. 10,29 m²
  • WC: ca. 1,65 m²
  • Bad: ca. 4,10 m²
  • Abstellraum: 1,80 m²
  • Balkon: ca. 7,48 m²




Kurzinfo Ausführung & Ausstattung:



  • Lifteinbau der vom Keller bis ins Dachgeschoss führt
  • Luft-Wärmepumpe für Heizung und Warmwasser
  • Fußbodenheizung und Kühlung in allen Wohnräumen
  • Echtholzparkett
  • 3-Scheiben-Isolierverglasung für optimale Wärmedämmung
  • Elektrisch bedienbarer Sonnenschutz
  • Natursteinbeläge - Terrasse
  • Qualitative Elektroinstallationen und Video-Gegensprechanlage




Zu jeder Wohneinheit gehört ein eigenes Kellerabteil. Darüber hinaus stehen ein gemeinsamer Kinderwagenraum und ein Fahrradabstellplatz zur Verfügung.



Ein Tiefgaragen-Stellplatz kann optional für 30.000 € erworben werden.





Kontaktieren Sie uns für weitere Informationen und entdecken Sie Ihr neues Zuhause. Wir freuen uns darauf, Sie persönlich zu beraten!



Gerne steht Ihnen Frau Bettina Holzinger für weitere Fragen bzw. flexibel gestaltbare Besichtigungstermine unter 0664 358 24 26 zur Verfügung.  



www.ringsmuth-immobilien.at



Irrtum und Änderungen vorbehalten!

Infrastruktur / Entfernungen

Gesundheit
Arzt <1.000m
Apotheke <1.000m
Klinik <2.000m
Krankenhaus <2.000m

Kinder & Schulen
Schule <500m
Kindergarten <1.000m
Universität <2.000m
Höhere Schule <3.000m

Nahversorgung
Supermarkt <1.000m
Bäckerei <1.000m
Einkaufszentrum <1.500m

Sonstige
Bank <1.000m
Geldautomat <1.000m
Post <1.000m
Polizei <1.500m

Verkehr
Bus <500m
U-Bahn <3.000m
Straßenbahn <1.000m
Bahnhof <1.500m
Autobahnanschluss <2.000m

Angaben Entfernung Luftlinie / Quelle: OpenStreetMap

Eckdaten Objektnr. 16367

Art: Wohnung
Land: Österreich
Baujahr: 2025
Zustand: Erstbezug
Alter: Neubau
Kaufpreis: 445.000,00
Provision: 3% des Kaufpreises zzgl. 20% USt.
Wohnfläche: 67,96 m²
Nutzfläche: 75,44 m²
Zimmer: 3
Bäder: 1
WC: 1
Balkone: 1
Heizwärmebedarf:  B  28,60 kWh/m²a
fGEE:  A+  0,68
Immobilie merken Exposé

Ausstattung

Fliesen, Parkett, Fußbodenheizung, Personenaufzug, Dusche, Tiefgarage


Immobilie anfragen


Ihre persönliche Beratung

Alexander Ringsmuth GmbH

Bettina Holzinger

Alexander Ringsmuth GmbH

T +43 1 3709098

H +43 664 3582426