Modern Office Space in Prime Location – 1030 Vienna

Büro / Praxis - Bürofläche, 1030 Wien


Beschreibung der Immobilie

Modern Office Space in Prime Location – 1030 Vienna

Representative Office Unit with Excellent Transport Links!



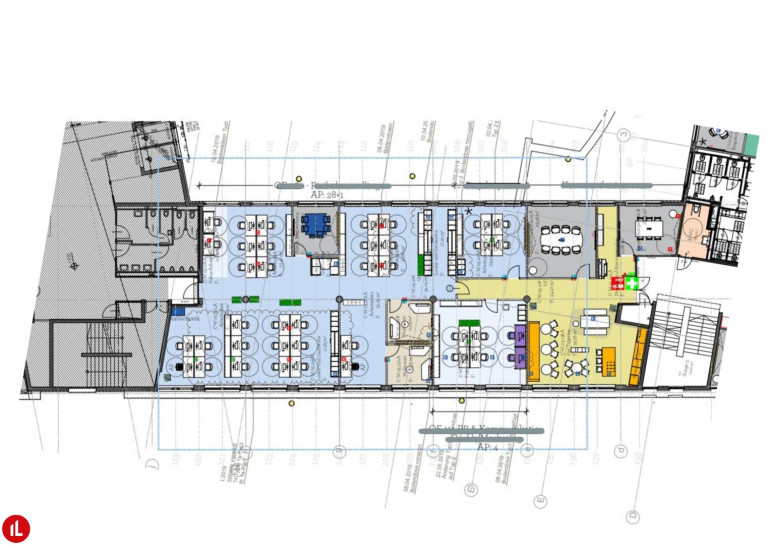
This spacious and modern office space is located in a well-maintained office building in an excellent location in the 3rd district. It impresses with bright, open spaces, a thoughtful room structure, and a pleasant working atmosphere.



The high-quality furnishings with sound-absorbing Vorwerk carpets, modern air conditioning, and flexible system partition walls allow for individual design – ideal for companies that value comfort, efficiency, and a professional environment.



External sun protection, white plastic windows, and an efficient district heating system ensure a balanced indoor climate throughout the year. A fully equipped kitchen with a dishwasher, microwave, and refrigerator is available to employees, as well as a cafeteria and a café in the building (Leonardi/Euerst).



The office unit thus offers a modern, functional working environment with excellent access to public transport (U3 Erdberg) and the Southeast Tangent. The nearby APCOA garage, accessible via the Flow App, perfectly complements the offer.



Video Inspection




Property Details



  • Construction: Reinforced concrete, externally insulated
  • Windows: White plastic windows with external sun protection
  • Room Division: System partition walls / drywall – individually adjustable
  • Floor: High-quality, sound-absorbing Vorwerk carpet
  • Interior Doors: System construction in wood look
  • Air Conditioning: Modern air conditioning (completely renewed)
  • Heating: District heating via radiators
  • Lift: General elevator (without key operation)
  • WCs: Separate sanitary facilities (1 ladies' WC, 1 men's WC)
  • Accessibility: No disabled WC available


Infrastructure & Facilities



  • Kitchen / Break Room: with built-in kitchen (dishwasher, microwave, refrigerator)
  • Cafeteria in the building: Company cafeteria & café “Leonardi/Euerst” for all tenants
  • Internet: Own internet connection required
  • Furnishing: Unfurnished, high-quality office furniture (Neudörfler, from 2019) available upon agreement
  • Structural Changes: After prior notification and approval of the landlord (obligation to restore at the end of the lease)


Transport Links & Location Advantages



Dietrichgasse is located in the dynamic district of Erdberg, just a few minutes' walk from the U3 Erdberg station.



  • Public Transport: U3, Bus 77A, 80A, Tram 18 within walking distance
  • Car: Quick access to Erdberger Lände and A23 (Southeast Tangent)
  • Parking: Public APCOA garage in the building (use via Flow App)


Operating Costs (net, exemplary according to BK statement)



The operating costs include, among other things: (approx. €26,037 p.a. and thus approx. €2,170 per month)



  • General electricity, elevator maintenance, waste disposal
  • Cleaning and maintenance of common areas
  • Insurance, administrative costs


Heating costs (district heating) amount to approx. €4,553 p.a. and thus approx. €380 per month.



Working Environment & Atmosphere



Bright, open spaces with large window areas create a friendly and productive working atmosphere. The modern air conditioning, sound-absorbing flooring, and quiet location contribute to a pleasant spatial feeling – appreciated by employees and business partners alike.



YOUR INVESTMENT: monthly EUR 10,493.86



including heating and operating costs



Deposit: 3 gross monthly rents including heating and electricity



Electricity costs currently amount to approx. €3,037 p.a. and thus approx. €253 per month.



Available immediately.



LEINER CUSTOMERS HAVE IT BETTER! A FREE moving van is available for your move.



CONTACT US | Paul Hanifl - 0664 125 11 11



Real estate trustee | Real estate agent, property manager & developer



Exclusive real estate agency



Our success fee is 3% plus 20% VAT.



Your inquiry is important and valuable to us!



In accordance with the FAGG (Distance and Outward Transactions Act) and the VRUG (Consumer Rights Directive Implementation Act), we can only arrange appointments after receiving a written inquiry with complete contact details (name, address, phone, email). This also applies to the passing on of relevant information about the property. Thank you for your understanding, and we look forward to welcoming you as a customer soon.

Infrastruktur / Entfernungen

Gesundheit
Arzt <500m
Apotheke <500m
Klinik <500m
Krankenhaus <1.000m

Kinder & Schulen
Schule <500m
Kindergarten <500m
Universität <1.000m
Höhere Schule <1.000m

Nahversorgung
Supermarkt <500m
Bäckerei <500m
Einkaufszentrum <1.000m

Sonstige
Geldautomat <500m
Bank <500m
Post <500m
Polizei <500m

Verkehr
Bus <500m
U-Bahn <500m
Straßenbahn <1.000m
Bahnhof <500m
Autobahnanschluss <1.000m

Angaben Entfernung Luftlinie / Quelle: OpenStreetMap

Eckdaten Objektnr. 21895

Art: Büro / Praxis - Bürofläche
Land: Österreich
Baujahr: 1973
Alter: Neubau
Kaltmiete (netto): 6.194,88 €
Kaltmiete: 8.364,88 €
Provision: 30.113,57 € inkl. 20% USt.
Betriebskosten: 2.170,00 €
Heizkosten: 380,00 €
MwSt Gesamt: 1.748,98 €
Gesamtfläche: 516,24 m²
Bürofläche: 277,90 m²
Heizwärmebedarf:  C  55,50 kWh/m²a
fGEE:  C  1,28
Immobilie merken Exposé

Ausstattung

Teppichboden, Einbauküche, Personenaufzug, Teeküche


Immobilie anfragen


Ihre persönliche Beratung

Immobilienwelt Leiner

Paul Hanifl

Immobilienwelt Leiner

H +43 664 125 11 11