Dachterrassen-Traum mit Aussicht ins Grüne

Wohnung , 1110 Wien,Simmering


Die Adresse liegt im 11. Wiener Gemeindebezirk Simmering, einem Stadtteil mit wachsender Beliebtheit und guter Anbindung.

Beschreibung der Immobilie

Dachterrassen-Traum mit Aussicht ins Grüne

Urbanes Wohnen mit Stil – Ihr neues Zuhause im Grünen!



Inmitten des dynamischen 11. Bezirks von Wien entsteht ein Wohnprojekt, das urbanen Lebensstil mit zeitgemäßem Komfort vereint. Es erwarten Sie moderne 1- bis 3-Zimmer-Wohnungen – jede mit eigener Freifläche – perfekt geeignet für Singles, Paare und kleine Familien. Bezugsfertig im Frühjahr 2026.



Genießen Sie die Vorzüge eines hochwertigen Erstbezugs und lassen Sie sich von durchdachten Grundrissen, stilvoller Ausstattung und einer hervorragenden Lage überzeugen.



Das Projekt im Überblick:



  • Erstbezugs-Neubau mit zeitgemäßem Design
  • Freiflächen bei jeder Einheit: Balkon, Terrasse, Loggia oder Eigengarten
  • Hochwertige Ausstattung: Fußbodenheizung, außenliegender Sonnenschutz
  • Kleinkinderspielplatz
  • Fahrrad- und Kinderwagenraum


Klimavorbereitung im Dachgeschoss



  • Attraktive Grundrisse, teils mit Blick ins Grüne
  • Top-Lage: kurze Distanz nach Schwechat
  • Ideal für Eigennutzer und Anleger
  • Für das gesamte Haus stehen ausschließlich zwei Stellplätze in der hauseigenen Garage zur Verfügung. Diese können jeweils zu einem Preis von 45.000 € erworben werden.


Erleben Sie modernes Wohnen in einem der aufstrebendsten Stadtteile Wiens – stilvoll, komfortabel und bestens angebunden.



Ob zur Eigennutzung oder als wertstabile Vorsorge – diese Wohnung erfüllt beide Ansprüche.





Ausstattungsstandard – kompakte Zusammenfassung



Die Wohnungen überzeugen durch eine hochwertige Ausstattung, die modernen Wohnkomfort mit Energieeffizienz verbindet:



  • Effiziente Fußbodenheizung mit Luftwärmepumpe für Heizung und Warmwasser
  • 3-fach isolierverglaste Kunststofffenster, außenliegender Sonnenschutz
  • Hochwertiger Eiche-Fertigparkett in den Wohnräumen
  • Moderne Sanitäreinrichtung mit ästhetischem Anspruch
  • Vorbereitung für Split-Klimaanlagen im Dachgeschoss
  • Sicherheitseingangstüre
  • Personenlift, Fahrrad- und Kinderwagenraum, Kleinkinderspielplatz




Diese Ausstattung schafft ein stilvolles, energieeffizientes und familienfreundliches Wohnumfeld.





Lage und Infrastruktur:



  • Die Wohnhausanlage befindet sich in einer ruhigen Wohngegend mit hoher Lebensqualität.
  • Die U-Bahn-Station U3 Simmering ist in kurzer Distanz erreichbar und bietet eine direkte Verbindung ins Stadtzentrum.
  • Die Nähe zur Autobahn ermöglicht eine schnelle Erreichbarkeit von Schwechat und dem Flughafen Wien.
  • In der Umgebung finden sich zahlreiche Einkaufsmöglichkeiten, Schulen, Kindergärten und Freizeiteinrichtungen.
  • Die Infrastruktur ist insgesamt sehr gut ausgebaut und bietet sowohl für Familien als auch für Berufspendler ideale Voraussetzungen.


Weitere öffentliche Verkehrsmittel:



  • Buslinien: 73A, 73B, 76B, 79A, 79B
  • Straßenbahnlinien: 11, 71
  • S-Bahn und Regionalzüge: S7, REX7


Diese Lage verbindet ruhiges Wohnen mit urbaner Erreichbarkeit und macht das Projekt besonders attraktiv für Eigennutzer und Anleger.



Objektbeschreibung:



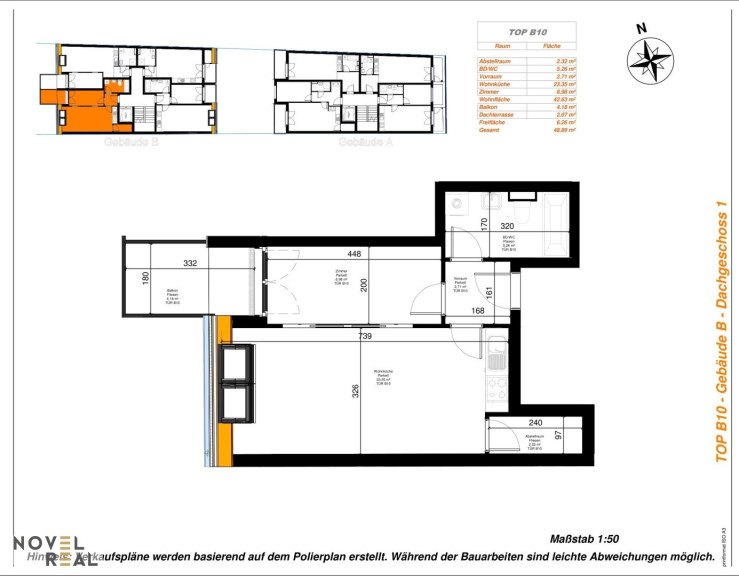
Stiege B / Top 10 DG



Diese Dachgeschoss-Wohnung bietet eine ausgewogene Kombination aus funktionaler Raumaufteilung und attraktiven Außenflächen. Der Vorraum empfängt Sie mit Platz für Garderobe und Stauraum und führt direkt in die helle Wohnküche, die als zentraler Treffpunkt zum Kochen, Essen und Entspannen dient. Das gut geschnittene Zimmer eignet sich ideal als Schlafzimmer oder Homeoffice. Das Badezimmer mit WC ist modern ausgestattet und sorgt für Komfort im Alltag. Ein eigener Abstellraum bietet zusätzlichen Platz für Vorräte und Haushaltsgeräte. Die Terrasse und der Balkon erweitern den Wohnbereich ins Freie und bietet einen sonnigen Platz zum Verweilen.





Fakten:



  • Vorraum – mit Platz für Garderobe und Stauraum
  • Abstellraum – praktisch für Vorräte und Haushaltsgeräte
  • Wohnküche – offen und lichtdurchflutet, mit Koch- und Essbereich
  • Zimmer – flexibel nutzbar als Schlafzimmer oder Arbeitsbereich
  • Bad/WC – modern und funktional ausgestattet
  • Dachterrasse – sonniger Außenbereich
  • Balkon




Kaufpreis:



Der Kaufpreis für Eigennutzer beträgt 248.000,00 EURO



Der Kaufpreis für Anleger beträgt 228.000,00 EURO zzgl. 20% USt.





Aus rechtlichen Gründen und aufgrund der großen Nachfragen bitten wir um Verständnis, dass wir nur Anfragen per Mail beantworten, wenn Sie uns Ihren vollständigen Namen samt Mailadresse und Mobilnummer bekanntgeben.



Alle Angaben basieren alleinig auf Informationen, die uns von unserem Auftraggeber übermittelt wurden. Trotz aller Sorgfalt können wir für die Richtigkeit, Vollständigkeit und Aktualität dieser Angaben keine Gewähr übernehmen. Jegliche Weitergabe der übermittelten Daten an Dritte ist nicht gestattet. Der Maklervertrag kommt durch schriftliche Vereinbarung oder Inanspruchnahme unserer Maklertätigkeit zustande. Der Makler kann als Doppelmakler tätig werden. Sollte das von uns nachgewiesene Objekt bereits bekannt sein, teilen sie uns dies bitte unverzüglich mit.



Die Maklergebühr ist ausschließlich bei Zustandekommen eines gültigen Rechtsgeschäfts fällig und vom Mieter/Vermieter an Novel Real Immobilien GmbH zu zahlen. Es wird ausdrücklich auf die Nebenkostenübersicht hingewiesen. Bei den Visualisierungen und Abbildungen der Immobilie (insbesondere von Inneneinrichtungen) kann es sich um Symbolfotos bzw. fototechnisch optimierte Fotos handeln. Hiermit weisen wir auf das Bestehen eines familiären und/oder wirtschaftlichen Naheverhältnisses zum Vermieter/Verkäufer hin. 



Für die Vereinbarung eines Termins kontaktieren Sie Herrn Mag. Michael Hofer telefonisch unter +43 680 111 7660 oder per E-Mail: mh@novel-real.at.

Infrastruktur / Entfernungen

Gesundheit
Arzt <1.000m
Apotheke <1.000m
Klinik <1.000m
Krankenhaus <7.500m

Kinder & Schulen
Schule <500m
Kindergarten <1.000m
Universität <6.500m
Höhere Schule <7.000m

Nahversorgung
Supermarkt <500m
Bäckerei <500m
Einkaufszentrum <1.000m

Sonstige
Geldautomat <500m
Bank <500m
Post <1.000m
Polizei <500m

Verkehr
Bus <500m
U-Bahn <4.500m
Straßenbahn <1.000m
Bahnhof <1.000m
Autobahnanschluss <1.000m
Flughafen <8.500m

Angaben Entfernung Luftlinie / Quelle: OpenStreetMap

Eckdaten Objektnr. 6203

Art: Wohnung
Land: Österreich
Baujahr: 2025
Zustand: Erstbezug
Alter: Neubau
Kaufpreis: 228.000,00
Provision: 3% des Kaufpreises zzgl. 20% USt.
Wohnfläche: 42,63 m²
Nutzfläche: 42,63 m²
Zimmer: 2
Bäder: 1
WC: 1
Balkone: 1
Terrassen: 1
Heizwärmebedarf:  C  53,40 kWh/m²a
fGEE:  A  0,76
Immobilie merken Exposé

Ausstattung

Fliesen, Parkett, Fußbodenheizung, Wohnküche / offene Küche, Personenaufzug, Bad mit Fenster, Badewanne, Dusche, Tiefgarage


Immobilie anfragen


Ihre persönliche Beratung

Novel Real Immobilien GmbH

Mag. Michael Hofer

Novel Real Immobilien GmbH

T +43 680 111 76 60

H +43 680 111 76 60

F +43 (1) 3614014-15