Gewerbefläche im EG | Büro | Praxis | Sport | Rolltor | Miete oder Kauf!

Halle / Lager / Produktion - Halle, 1200 Wien


Hannovermarkt | Friedensbrücke

Beschreibung der Immobilie

Gewerbefläche im EG | Büro | Praxis | Sport | Rolltor | Miete oder Kauf!

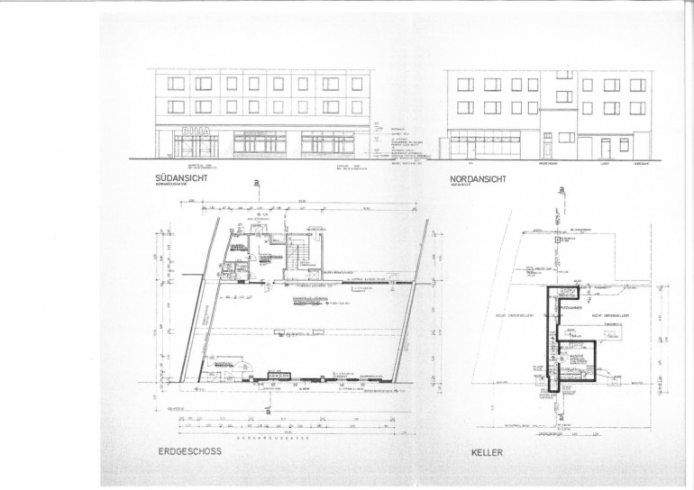
Eine attraktive, flexibel nutzbare Gewerbefläche (ehemaliger BILLA) steht zur unbefristeten Vermietung bereit. Die Fläche befindet sich im Erdgeschoss und ist sowohl durch eine Tür als auch ein Rolltor befahr- bzw. betretbar. Der Hauptraum mit ca. 270m² ist nur durch zwei tragende Säulen unterteilt. Über eine Klappe im Boden gelangt man direkt in den Keller/Lagerfläche. Große Auslagenscheiben machen den Raum hell und auf unterschiedlichste Weise nutzbar. Es besteht auch die Möglichkeit das Objekt zu kaufen - KP: € 980.000.-.



In unmittelbarer Nähe stehen weitere Gewerbeflächen zur unbefristeten Anmietung zur Verfügung. Alle Maßangaben ohne Gewähr. Für Fragen oder einen Besichtigungstermin stehe ich jederzeit  zur Verfügung.



Bernhard FRIEDRICH 

+43 660 117 90 20 

bf@finallyhome.at


Hinweis gemäß Energieausweisvorlagegesetz: Ein Energieausweis wurde vom Eigentümer bzw. Verkäufer, nach unserer Aufklärung über die generell geltende Vorlagepflicht, sowie Aufforderung zu seiner Erstellung noch nicht vorgelegt. Daher gilt zumindest eine dem Alter und der Art des Gebäudes entsprechende Gesamtenergieeffizienz als vereinbart. Wir übernehmen keinerlei Gewähr oder Haftung für die tatsächliche Energieeffizienz der angebotenen Immobilie.


Wir weisen darauf hin, dass zwischen dem Vermittler und dem zu vermittelnden Dritten ein familiäres oder wirtschaftliches Naheverhältnis besteht.


Der Vermittler ist als Doppelmakler tätig.

Infrastruktur / Entfernungen

Gesundheit
Arzt <500m
Apotheke <500m
Klinik <1.000m
Krankenhaus <1.500m

Kinder & Schulen
Schule <500m
Kindergarten <500m
Universität <1.000m
Höhere Schule <1.000m

Nahversorgung
Supermarkt <500m
Bäckerei <500m
Einkaufszentrum <1.000m

Sonstige
Geldautomat <500m
Bank <500m
Post <500m
Polizei <500m

Verkehr
Bus <500m
U-Bahn <500m
Straßenbahn <500m
Bahnhof <500m
Autobahnanschluss <1.000m

Angaben Entfernung Luftlinie / Quelle: OpenStreetMap

Eckdaten Objektnr. 1819/46

Art: Halle / Lager / Produktion - Halle
Land: Österreich
Zustand: Gepflegt
Kaltmiete (netto): 3.900,00 €
Kaltmiete: 3.900,00 €
Miete / m²: 13,00 €
Provision: 3 Bruttomonatsmieten zzgl. 20% USt.
MwSt Gesamt: 780,00 €
Nutzfläche: 300,00 m²
Keller: 15,00 m²
Immobilie merken Exposé

Ausstattung

Fliesen


Immobilie anfragen


Ihre persönliche Beratung

Bernhard Friedrich

finallyHOMEreal GmbH

T +43 660 117 9020