--- RESERVIERT! ---

Wohnung , 1130 Wien


Das Objekt liegt in der Veitlissengasse nahe des Lainzer Tiergartens in absoluter Grün- und Ruhelage. Alle Einkaufsmöglichkeiten des täglichen Bedarfs, sowie die Bushaltestelle der Linien 53A, 54A und 54B befinden sich beim Wolfrathplatz (ca. 10 Minuten Fußweg). Die Buslinien ermöglichen das rasche Erreichen der U-Bahn-Linie U4 und der Straßenbahnlinien 10 sowie 60. Für Entspannung und schöne Spaziergänge sorgen die nahe gelegenen Erholungsgebiete Lainzer Tiergarten, Trazerberg und Roter Berg in Ober St. Veit sowie der wunderschöne Wienerwald.

Beschreibung der Immobilie

--- RESERVIERT! ---

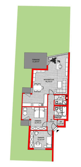
Gartenwohnung mit Garage in Grünruhelage!



Diese helle Neubauwohnung mit sonniger Gartenterrasse bietet auf einer Wohnebene 3 Zimmern, alle Nebenräume sowie direkten Zugang zu einem Eigengarten mit hohem Entspannungsfaktor.



Sie ist ein wahrer Alleskönner im Hinblick auf Lebensqualität, Wohnkomfort und qualitative Ausstattung.



Von allen Fenstern bietet sich ein schöner Grünblick. Die geräumige Gartenterrasse bildet eine wunderbare Entspannungsoase, die vom Garten erweitert wird.



Das Mietobjekt befindet sich in tadellosem Zustand, ist praktisch aufgeteilt und zeitgemäß ausgestattet.



Die, in den Wohnsalon integrierte, nagelneue Küche mit Tageslicht und direktem Ausgang auf die kleinere Gartenterrasse, ist mit Marken-Elektrogeräten ausgestattet.



Alle Fenster verfügen über Außenjalousien. Zur Wohnung gehört ein geräumiges Kellerabteil sowie ein Garagenplatz.



Mietdauer: 5 Jahre mit Verlängerungsmöglichkeit.



Zusammenfassend:
Wenn Sie ein Mensch sind, der auf hohen Wohnkomfort, entsprechende Lebensqualität sowie optimale Raumaufteilung und Erholung nach einem Arbeitstag Wert legt, dann ist diese Wohnung mit Sicherheit Ihr zukünftiges Domizil.



INFOS & BESICHTIGUNGEN:
Für Informationen und Besichtigungen steht Ihnen Herr Wolczecki unter +43 699 14146868 oder +43 1 877 2222 gerne zur Verfügung.



INFORMATION FÜR KONSUMENTEN:
- Dieses Objekt wird von einem konzessionierten Immobilienmaklerunternehmen vermarktet.

- Nach dem geltenden Gesetz vertritt der Makler den Auftraggeber.



COPY RIGHTS!
Der gesamte Inhalt der Anzeigen und Exposé (sämtliche Texte und Bilder) ist urheberrechtlich geschütztes Eigentum von Ryszard Wolczecki und dürfen ausschließlich mit schriftlichem Einverständnis des Urhebers vervielfältigt oder verwendet werden.



POST SCRIPTUM:
Wir sind auf Miet- und Eigentumsobjekte, sowie Grundstücke im 13. Bezirk spezialisiert, vermitteln allerdings selbstverständlich auch Wohnimmobilien im gesamten Großraum Wien!

Wenn Sie beim Verkauf Ihrer Immobilie auf Ihre RECHTSSICHERHEIT großen Wert legen und wenn für Sie deren Vermittlung hinsichtlich der fachlichen Kompetenz nur durch einen absoluten Experten für Sie in Frage kommt, setzen Sie auf unser Know-how sowie Kontakte zu den richtigen Käufern und sichern Sie sich Ihren Erfolg durch Qualitätsarbeit, starke Spezialisierung und 30-jährige Erfahrung.


Wir weisen darauf hin, dass zwischen dem Vermittler und dem zu vermittelnden Dritten ein familiäres oder wirtschaftliches Naheverhältnis besteht.


Der Immobilienmakler erklärt, dass er – entgegen dem in der Immobilienwirtschaft üblichen Geschäftsgebrauch des Doppelmaklers – einseitig nur für den Vermieter tätig ist.

Infrastruktur / Entfernungen

Gesundheit
Arzt <1.000m
Apotheke <1.000m
Klinik <2.000m
Krankenhaus <1.000m

Kinder & Schulen
Schule <500m
Kindergarten <1.000m
Universität <1.000m
Höhere Schule <5.500m

Nahversorgung
Supermarkt <1.000m
Bäckerei <1.000m
Einkaufszentrum <4.000m

Sonstige
Geldautomat <1.000m
Bank <1.000m
Post <1.000m
Polizei <1.500m

Verkehr
Bus <1.000m
U-Bahn <1.000m
Straßenbahn <2.000m
Bahnhof <1.500m
Autobahnanschluss <3.500m

Angaben Entfernung Luftlinie / Quelle: OpenStreetMap

Eckdaten Objektnr. 1591

Art: Wohnung
Land: Österreich
Baujahr: 2000
Zustand: Neuwertig
Alter: Neubau
Gesamtmiete: 1.980,00
Kaltmiete (netto): 1.500,00 €
Kaltmiete: 1.800,00 €
Provision: Gemäß Erstauftraggeberprinzip bezahlt der Abgeber die Provision.
Betriebskosten: 300,00 €
MwSt Gesamt: 180,00 €
Wohnfläche: 90,00 m²
Nutzfläche: 101,00 m²
Zimmer: 3
Bäder: 2
WC: 2
Terrassen: 1
Garten: 136,00 m²
Keller: 4,60 m²
Heizwärmebedarf:  C  93,00 kWh/m²a
Immobilie merken Exposé

Ausstattung

Parkett, Fliesen, Gas, Etagenheizung, Einbauküche, Wohnküche / offene Küche, Personenaufzug, Badewanne, Dusche, Kabel/Satelliten-TV, Tiefgarage, Sauna, Wasch/Trockenraum


Immobilie anfragen


Ihre persönliche Beratung

KLEIN&PARTNER Immobilen GmbH

Richard Wolczecki

KLEIN & PARTNER Immobilien GmbH

T +43 1 877 2222

H +43 699 1414 6868

F +43 1 877 2222 20