Linz: Exclusives Doppelhaus - voll ausgestattet - in Ruhe Lage

Haus - Doppelhaushälfte, 4030 Linz


Bim Bus Autobahn Einkaufen Großabholmarkt Öffentliches Bad Kindergarten Schule NMS Höhere Schulen Sport Radwege Laufen

Beschreibung der Immobilie

Linz: Exclusives Doppelhaus - voll ausgestattet - in Ruhe Lage



Willkommen in Ihrem neuen Zuhause – einer traumhaften Doppelhaushälfte in der begehrten Lage von 4030 Linz, Oberösterreich. Dieses neuwertige Schmuckstück bietet Ihnen nicht nur ein modernes Wohnambiente, sondern auch eine perfekte Kombination aus Komfort und Lebensqualität. 



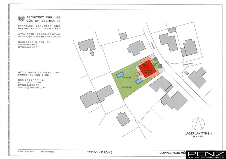
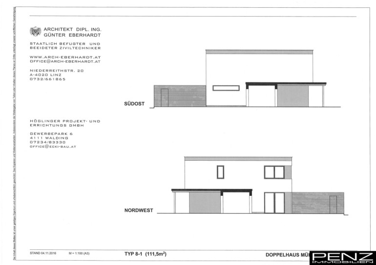
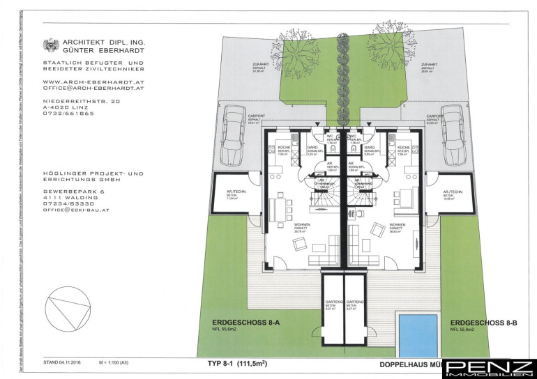
Mit einer großzügigen Wohnfläche von 111,5 m² und vier lichtdurchfluteten Zimmern ist dieses Haus der ideale Rückzugsort für Familien oder Paare, die das Besondere suchen. Der durchdachte Grundriss ermöglicht Ihnen eine flexible Raumgestaltung und gibt Ihnen die Freiheit, Ihre Wohnträume zu verwirklichen.



Das Herzstück der Immobilie ist die offene Wohnküche, die durch ihre moderne Ausstattung und den einladenden Flair besticht. Hier können Sie nicht nur köstliche Gerichte zubereiten, sondern auch unvergessliche Momente mit Freunden und Familie verbringen. Die angrenzenden drei Terrassen laden dazu ein, die warmen Sonnenstrahlen zu genießen und die Seele baumeln zu lassen. Ihr neuer Garten bietet Ihnen ausreichend Platz für entspannte Nachmittage im Freien oder für die kleinen Abenteurer, die dort spielen können.



Die hochwertige Ausstattung des Hauses lässt keine Wünsche offen. Fliesen und Parkett verleihen den Räumen eine elegante Note, während die Fußbodenheizung und der Heizofen für ein angenehmes Raumklima sorgen. Mit zwei WCs und einer durchdachten Raumaufteilung ist auch der Alltag perfekt organisiert.



Ein weiteres Highlight ist der herrliche Grünblick, der Ihnen eine Oase der Ruhe inmitten der Stadt bietet. Hier können Sie den Alltagsstress hinter sich lassen und die Natur direkt vor der Haustür genießen.



Die Verkehrsanbindung könnte nicht besser sein. Ob mit dem Bus, der Straßenbahn oder über den Autobahnanschluss – Sie sind schnell und unkompliziert in Linz und Umgebung



unterwegs. Zudem profitieren Sie von einer hervorragenden Infrastruktur: In unmittelbarer Nähe finden Sie alles, was Sie für den täglichen Bedarf benötigen. Ärzte, Apotheken, Kindergärten, Schulen, Supermärkte und Bäckereien sind nur einen kurzen Spaziergang entfernt.



Dieses Traumhaus könnte schon bald Ihr neues Zuhause sein. Nutzen Sie die Gelegenheit, sich Ihren Platz an diesem attraktiven Standort zu sichern und genießen Sie die Vorzüge des Lebens in Linz. Vereinbaren Sie noch heute einen Besichtigungstermin und lassen Sie sich von dieser einzigartigen Immobilie begeistern!





Ein exklusives voll ausgestattetes Doppelhaus steht zum Angebot ein schönes Entree empfängt Sie - sicher können Sie ihre Fahrzeuge abstellen und durch den Vorgarten in die Diele schlendern. Vorbei am Gäste WC, hinein in einen schönen mit  Licht durchfluteten Bereich mit  Küche, Essbereich und anliegenden Lounge Bereich. Ein gutplazierter Abstellraum vervollständigt das Untergeschoss.



Vom Lounge und Ess Bereich gelangen Sie über eine charmante überdachte Terrasse in den  sehr gepflegten Garten mit Laube, überdachtem Schwimmbad und modernstem Saunahaus mit Vorraum. So macht das Leben Spaß



Ein übersichtlicher Technikraum kann Sie auch wieder in den Vorgarten führen.



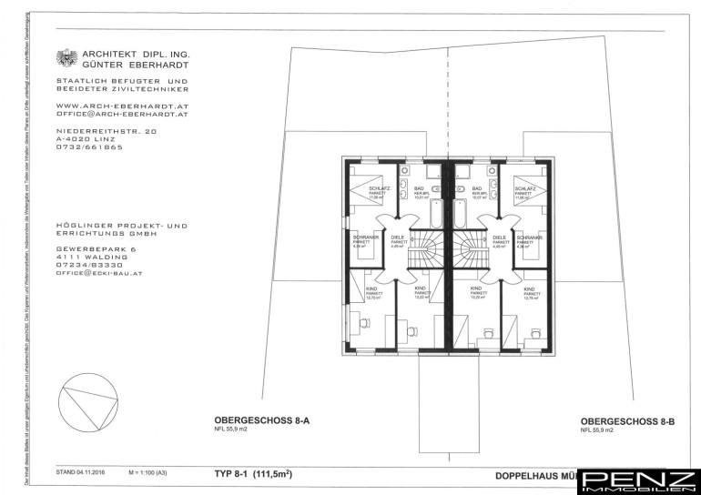
Das Obergeschoss hat neben den beiden Büros ein schönes geräumiges Schlafzimmer mit begehbaren Kasten und anschließend bestausgestattetem Badezimmer.




Der Vermittler ist als Doppelmakler tätig.

Weitere schöne Immobilien finden Sie bei uns auf der Homepage:

https://www.penzimmobilien.at

Infrastruktur / Entfernungen

Gesundheit
Arzt <1.000m
Apotheke <500m
Klinik <3.500m
Krankenhaus <3.500m

Kinder & Schulen
Kindergarten <500m
Schule <500m
Universität <3.500m
Höhere Schule <6.000m

Nahversorgung
Supermarkt <500m
Bäckerei <1.000m
Einkaufszentrum <1.500m

Sonstige
Bank <500m
Geldautomat <500m
Post <1.000m
Polizei <1.500m

Verkehr
Bus <500m
Straßenbahn <1.000m
Bahnhof <2.500m
Autobahnanschluss <1.000m
Flughafen <5.500m

Angaben Entfernung Luftlinie / Quelle: OpenStreetMap

Eckdaten Objektnr. 7582/233722

Art: Haus - Doppelhaushälfte
Land: Österreich
Baujahr: 2018
Zustand: Neuwertig
Kaufpreis: 785.000,00
Betriebskosten: 284,00 €
Heizkosten: 110,00 €
Wohnfläche: 111,50 m²
Nutzfläche: 131,00 m²
Grundstücksfl.: 524,00 m²
Zimmer: 4
Bäder: 1
WC: 2
Terrassen: 3
Stellplätze: 2
Heizwärmebedarf: 47,80 kWh/m²a
Immobilie merken Exposé

Ausstattung

Fliesen, Parkett, Alternativ, Gas, Fußbodenheizung, Heizofen, Zentralheizung, Wohnküche / offene Küche, Bad mit Fenster, Badewanne, Dusche, Carport, Parkplatz, Sauna, Sicherheitskamera, Swimmingpool, Wasch/Trockenraum, Alarmanlage


Immobilie anfragen


Ihre persönliche Beratung

Ing MBA Hermann Brückl

Penz Immobilien GmbH

T +43 6601896686