Klassisch & modern - U3 ums Eck - Eckwohnung mit Charme & Geschichte - Westausrichtung - Heizung neu

Wohnung , 1030 Wien


Beschreibung der Immobilie

Klassisch & modern - U3 ums Eck - Eckwohnung mit Charme & Geschichte - Westausrichtung - Heizung neu

Diese stilvoll modernisierte Altbauwohnung mit rund 91 m² Wohnfläche verbindet klassischen Wiener Charme mit zeitgemäßem Wohnkomfort. Originaler Fischgrätparkett, elegante Flügeltüren und gut erhaltene Kastenfensterverleihen ihr eine besondere, historische Note. Die helle Eckwohnung im gepflegten Gründerzeithaus überzeugt durch ihre sonnige West-Ausrichtung und eine harmonische Raumwirkung. Eine neu installierte moderne Heizlösung sorgt für angenehmes Wohnklima zu jeder Jahreszeit. Die U3-Station Kardinal-Nagl-Platz sowie Einkaufsmöglichkeiten und Lokale liegen nur wenige Gehminuten entfernt - ein Altbaujuwel in bester Lage des 3. Bezirks.



Kurzinfo Ausführung und Ausstattung



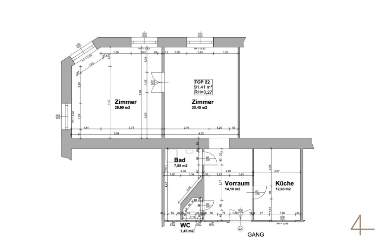
  • Wohnfläche ca. 91,41m² lt.Plan
  • Aufteilung lt. Plan:
  • Vorraum 14,10m² 
  • Küche 12,63m²
  • 1. Zimmer 25,45m²
  • 2. Zimmer 29,90m²
  • Badezimmer mit Dusche 7,88m²
  • WC separat 1,45m²
  • Gas-Etagenheizung
  • Kellerabteil
  • Fahrradabstellplatz





Lage
Die Wohnung befindet sich in einer ruhigen Seitengasse im beliebten dritten Wiener Gemeindebezirk – nur wenige Gehminuten von der U3-Station Kardinal-Nagl-Platz entfernt. Diese Lage vereint zentrales Stadtleben mit angenehmer Wohnruhe. Zahlreiche Einkaufsmöglichkeiten, charmante Lokale, Cafés sowie Schulen und Ärzte befinden sich in unmittelbarer Umgebung. Die Nähe zum Rochusmarkt, zur Landstraßer Hauptstraße und zum Donaukanal bietet zusätzlich vielfältige Freizeit- und Erholungsmöglichkeiten – ein idealer Ort für alle, die urbanen Komfort und klassischen Wiener Charme schätzen.

 



Öffentliche Verkehrsanbindungen



 290 m zum Autobus 74A – „Rabengasse“



450 m zur Straßenbahnlinie 18 – „Viehmarktgasse“



550 m zur U3-Station Kardinal-Nagl-Platz



600 m zur U3-Station Schlachthausgasse





erweiterte Betriebskosten



Betriebskosten         € 155,08



Reparaturrücklagen € 90,82



_______________________________



monatl. Gesamt € 261,41 inkl. Ust.



Gerne steht Ihnen Herr Michael Hellebrand für weitere Fragen bzw. flexibel gestaltbare Besichtigungstermine unter 0664 75346995 zur Verfügung.  



www.4immobilien.at



Wir weisen ausdrücklich auf unser wirtschaftliches Naheverhältnis mit dem Abgeber/der Abgeberin und auf unsere Vermittlungstätigkeit als Doppelmakler hin. 



Irrtum und Änderungen vorbehalten!


Wir weisen darauf hin, dass zwischen dem Vermittler und dem zu vermittelnden Dritten ein familiäres oder wirtschaftliches Naheverhältnis besteht.


Der Vermittler ist als Doppelmakler tätig.

Eckdaten Objektnr. 8201

Art: Wohnung
Land: Österreich
Alter: Altbau
Kaufpreis: 549.500,00
Provision: 3% des Kaufpreises zzgl. 20% USt.
Betriebskosten: 155,08 €
MwSt Gesamt: 15,51 €
Wohnfläche: 91,41 m²
Zimmer: 2
Bäder: 1
WC: 1
Heizwärmebedarf:  D  97,44 kWh/m²a
Immobilie merken Exposé

Ausstattung

Fliesen, Parkett, Gas, Etagenheizung, Einbauküche, Personenaufzug, Bad mit Fenster, Dusche


Immobilie anfragen


Ihre persönliche Beratung

4immobilien

Michael Hellebrand

4immobilien OG

T 0664 / 753 46 995