ca. 160m² NFL | Einfamilienhaus im Grünen | große Garage & Keller | Renovierungsbedarf

Haus - Einfamilienhaus, 3033 Altlengbach , Obere Dorfwiesenstraße


Beschreibung der Immobilie

ca. 160m² NFL | Einfamilienhaus im Grünen | große Garage & Keller | Renovierungsbedarf

Buchen Sie gerne Ihren Besichtigungstermin bequem online via: https://www.remax.at/de/1609-46566#terminanfrage-messages



Die Gemeinde Altlengbach liegt im Mostviertel in Niederösterreich und ist Teil des Wienerwaldes. Die Grenze im Westen bildet der Laabenbach. Dieser fließt im Nordwesten in einer Höhe von 240 Meter. Nach Süden und Osten steigt das Land auf über 500 Meter an, die höchsten Erhebungen sind Freiung (616 m) und Hasenriegel (628 m). Bis zur Wiener Stadtgrenze sind es ca. 30km bzw. 25min mit dem Auto.





Das gegenständliche Objekt wurde 1977 bau-eingereicht und ca. 1980 fertiggestellt. Seitens der Eigentümer liegen mir alle Unterlagen und Dokumente vor - das Haus wurde massiv errichtet, und verfügt ca. über 160 m² Nutzfläche auf 2 Ebenen, ca. 80 m² Keller & Garage inkl. Gästezimmer und 2tem Badezimmer + WC, sowie weiteren ca. 80 m² im Erdgeschoss zzgl. 30 m² Terrasse gartenseitig und ca. 8 m² Balkon südseitig.



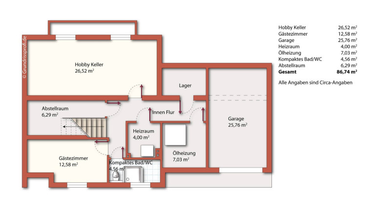
Im ebenerdigen Kellergeschoss findet sich neben einer ca. 25 m² großen Garage und einem ca. 26 m² großen Hobbyraum, weiters ein Gästezimmer mit separatem Badezimmer & WC, sowie der Heizraum mit einer modernen Ölheizung und dem separaten Tankraum. Die Kellerräumlichkeiten bieten vielerlei Stauraum & Platz für Freunde und Familie - der Hobbyraum könnte auch als gemütliches Stüberl umfunktioniert werden! Nähere Details entnehmen Sie bitte den beiliegenden Plänen.



Im Erdgeschoss findet man nach dem Eingang über ein paar Stufen links das Schlafzimmer, neben dem aktuell als separat genutzten Esszimmers - das ebenso ein Kinderzimmer / Arbeitszimmer sein kann. Am Ende des Ganges befindet sich das großzügige Wohnzimmer mit Kamin, Ausgang zum südseitigen Balkon als auch zur gartenseitigen Terrasse mit knapp 30 m². Eine separate vollausgestattete Küche, sowie Badezimmer und separates WC und weiters ein Abstellraum runden das Platzangebot im EG ab. Weitere Details zu den einzelnen Räumen entnehmen Sie bitte den beiliegenden Plänen.



Das gesamte Grundstück (leichte Hanglage ) umfasst gem. Grundbuch ca. 786 m², der ca. 650 m² große verbleibende Garten lädt zum Spielen für Kinder und zum Verweilen mit Freunden & Familie ein, ein Gerätehaus befindet sich ebenfalls am Grundstück und bietet weiteren Stauraum für Gartengeräte aller Art. Das Haus verfügt über eine recht neue, selbstverständlich funktionstüchtige Ölheizung, die im Keller verbaut ist.



Hier die einzelnen Räume nochmals im Überblick


KG:

-) Garage ca. 25m²

-) Hobbyraum ca. 26m²

-) Gästezimmer ca. 12m²

-) Abstellraum ca. 6 m²

-) Badezimmer / WC ca. 5m²

-) Heizraum & Tankraum ca. 11m²

TTL ca. 85 m²



EG:

-) Vorzimmer Aufgang ca. 9m²

-) Schlafzimmer ca. 14m²

-) Esszimmer / Stüberl ca. 13m²

-) Wohnzimmer ca. 27m²

-) Badezimmer und WC ca. 8m²

-) Küche mit Essplatz ca. 8m²

TTL ca. 81m²



Die laufenden monatlichen Kosten betragen nur ca. 70 EUR! Ein neuer Energieausweis ist in Erstellung.




Gebührenbefreiung beim Immobilienkauf


Profitieren auch Sie als Eigennutzer von der aktuellen Aktion - seit dem 1. Juli 2024 können Käufer:innen bis JEWEILS 500.000 Euro von Grundbuch- und Pfandrechtseintragungsgebühren befreit werden. Die Befreiung gilt für Kaufverträge ab April 2024, wobei der Antrag für die Eintragung im Grundbuch zwischen dem 1. Juli 2024 und dem 30. Juni 2026 gestellt werden muss - das sind in diesem Fall bis zu ca. 6.0000 EUR!



*) Bei diesem Preis handelt es sich um einen Richtpreis, der sich sowohl nach unten als auch nach oben verändern kann. Vorbehaltlich Annahme durch den Abgeber! Alle Angaben beruhen auf Informationen und übermittelten Unterlagen des Verkäufers. Wir informieren darüber, dass wir als Doppelmakler für Käufer und Verkäufer tätig sind.


Wir weisen darauf hin, dass zwischen dem Vermittler und dem zu vermittelnden Dritten ein familiäres oder wirtschaftliches Naheverhältnis besteht.


Der Vermittler ist als Doppelmakler tätig.

Infrastruktur / Entfernungen

Gesundheit
Arzt <1.000m
Apotheke <4.750m

Kinder & Schulen
Schule <2.000m
Kindergarten <2.500m

Nahversorgung
Supermarkt <2.250m
Bäckerei <750m

Sonstige
Bank <2.250m
Geldautomat <2.250m
Post <750m
Polizei <1.250m

Verkehr
Bus <500m
Autobahnanschluss <1.250m
Bahnhof <4.250m

Angaben Entfernung Luftlinie / Quelle: OpenStreetMap

Eckdaten Objektnr. 1609/50177

Art: Haus - Einfamilienhaus
Land: Österreich
Baujahr: 1980
Zustand: Teil_vollrenovierungsbed
Alter: Neubau
Kaufpreis: 299.000,00
Provision: 10.764,00 € inkl. 20% USt.
Betriebskosten: 70,00 €
MwSt Gesamt: 14,00 €
Wohnfläche: 80,00 m²
Nutzfläche: 160,00 m²
Grundstücksfl.: 786,00 m²
Zimmer: 3
Bäder: 2
WC: 2
Balkone: 1
Terrassen: 1
Heizwärmebedarf:  F  223,90 kWh/m²a
fGEE:  D  1,98
Immobilie merken Exposé

Ausstattung

Fliesen, Teppichboden, Parkett, Öl, Zentralheizung, Einbauküche, Südbalkon, Bad mit Fenster


Immobilie anfragen


Ihre persönliche Beratung

RE/MAX First - REM Immobilienmakler GmbH & Co KG

Mag. Georg Mayer

RE/MAX First - REM Immobilienmakler Gmbh & Co KG

T +43 1 997 1000

H +43 660 122 58 00