Klassischer Altbau trifft modernes Raumkonzept - 4 Zimmer-Wohntraum nahe Wien Mitte

Zimmer , 1030 Wien


- Ruhig gelegen, 500m entfernt von der Innenstadt - Gute Anbindung (Wien Mitte) an U-Bahn, Schnellbahn und CAT (Flughafen) - Vielfältige Gastronomieangebote und Lokale in direkter Umgebung - Nahversorgung mit Supermarkt, Apotheke fußläufig erreichbar - hohe Freizeitqualität durch Donaukanal und Prater

Beschreibung der Immobilie

Klassischer Altbau trifft modernes Raumkonzept - 4 Zimmer-Wohntraum nahe Wien Mitte

Diese stuckvertäfelte 4-Zimmer-Altbauwohnung vereint den Charme historischer Bausubstanz mit zeitgemäßem Wohnkomfort auf rund 100 m² Wohnnutzfläche.



Der großzügige Wohn-/Ess-/Kochbereich bildet das Herzstück der Wohnung und bietet vielfältige Nutzungsmöglichkeiten. Zwei Schlafzimmer und zwei elegante Bäder sorgen für außergewöhnlichen Komfort – eine Rarität im klassischen Altbau. Damit eignet sich diese Wohnung ideal für Paare, Familien oder als repräsentativer Zweitwohnsitz.



Sie befindet sich im 1. Liftstock (nach dem Mezzanin, somit zweiter Stock) eines geschmackvoll erhaltenen Stiegenhausesmit gusseisernem Treppenaufgang und Personenaufzug. Großzügige Fensterfronten sorgen für lichtdurchflutete Räume und ein angenehmes Wohnambiente.



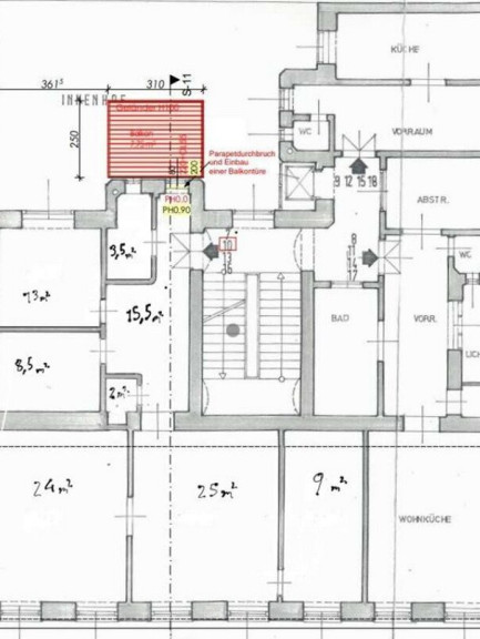
Der baugenehmigte Balkon zum ruhigen Innenhof (Süd-/Ost-Ausrichtung) kann vom neuen Eigentümer umgesetzt werden; der Baubescheid ist noch 3,5 Jahre gültig.




Eine großzügige Garage direkt gegenüber (optional anmietbar, nicht Teil des Exposés bzw. Verkaufsobjekts, ca. € 150/Monat, Stand 23.07.2025) sowie die hervorragende öffentliche Anbindung (U3, U4, S-Bahn, Straßenbahn) bieten maximale Mobilität.



Die Nähe zur Wien Mitte Mall, dem Stadtpark und dem 1. Bezirk macht diese Lage besonders attraktiv.





Highlights auf einen Blick




  • 4 Zimmer



  • ca. 100 m² Wohnnutzfläche



  • Zwei Schlafzimmer mit zwei Bädern – selten im Altbau



  • Baugenehmigter Balkon zum ruhigen Innenhof (Süd-/Ost-Ausrichtung)



  • Kürzlich generalsaniert



  • Garage direkt gegenüber optional anmietbar


Kontaktieren Sie uns gerne jederzeit für nähere Informationen oder einen Besichtigungstermin.



Ich freue mich auf Ihre Nachricht!





Sie sind noch nicht fündig geworden? Hinterlegen Sie gerne Ihren Suchwunsch unter folgendem Link und wir informieren Sie sobald wir etwas passendes anbieten können.



Suchagent anlegen - https://imfora.service.immo/registrieren/de


Hinweis gemäß Energieausweisvorlagegesetz: Ein Energieausweis wurde vom Eigentümer bzw. Verkäufer, nach unserer Aufklärung über die generell geltende Vorlagepflicht, sowie Aufforderung zu seiner Erstellung noch nicht vorgelegt. Daher gilt zumindest eine dem Alter und der Art des Gebäudes entsprechende Gesamtenergieeffizienz als vereinbart. Wir übernehmen keinerlei Gewähr oder Haftung für die tatsächliche Energieeffizienz der angebotenen Immobilie.


Wir weisen darauf hin, dass zwischen dem Vermittler und dem zu vermittelnden Dritten ein familiäres oder wirtschaftliches Naheverhältnis besteht.


Der Vermittler ist als Doppelmakler tätig.

Infrastruktur / Entfernungen

Gesundheit
Arzt <500m
Apotheke <500m
Klinik <1.000m
Krankenhaus <500m

Kinder & Schulen
Schule <500m
Kindergarten <500m
Universität <500m
Höhere Schule <1.500m

Nahversorgung
Supermarkt <500m
Bäckerei <500m
Einkaufszentrum <500m

Sonstige
Geldautomat <500m
Bank <500m
Post <500m
Polizei <500m

Verkehr
Bus <500m
U-Bahn <500m
Straßenbahn <500m
Bahnhof <500m
Autobahnanschluss <2.500m

Angaben Entfernung Luftlinie / Quelle: OpenStreetMap

Eckdaten Objektnr. 1532/195

Art: Zimmer
Land: Österreich
Zustand: Voll_saniert
Alter: Altbau
Kaufpreis: 890.000,00
Provision: 3% des Kaufpreises zzgl. 20% USt.
Betriebskosten: 160,00 €
Wohnfläche: 99,98 m²
Zimmer: 3
Bäder: 2
WC: 2
Immobilie merken Exposé

Ausstattung

Wohnküche / offene Küche, Personenaufzug


Immobilie anfragen


Ihre persönliche Beratung

Imfora Vertriebsgesellschaft mbH

Philipp Walderdorff

Imfora Vertriebsgesellschaft mbH

T +43 676 51 66 223