Premium-Ärztezentrum im Eigentum mit rund 370 m² – Top-Lage im Herzen Wiens

Büro / Praxis , 1090 Wien


Beschreibung der Immobilie

Premium-Ärztezentrum im Eigentum mit rund 370 m² – Top-Lage im Herzen Wiens

„Modernes Ärztezentrum im Herzen Wiens – Optimale Lage, perfekte Ausstattung, beste Patientenversorgung“



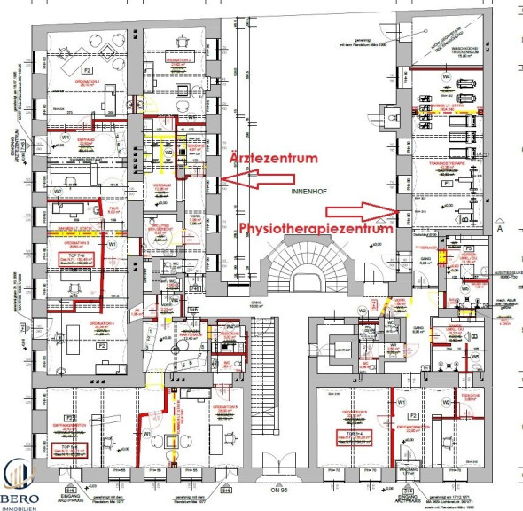
Dieses Ärztezentrum im Premiumsegment und in bester Lage des 9. Bezirks, bietet auf ca. 370 m² modernste Praxisräume für Fachärzte, Physiotherapeuten und Gesundheitsdienstleister. Die einzelnen Flächen sind voll ausgestattet, hochwertig designt und erfüllen höchste medizinische Standards.  Dank des integrierten Eingriffsraums lassen sich kleinere operative Eingriffe direkt vor Ort durchführen – eine optimale Lösung für effiziente Patientenversorgung. Entdecke Gesundheit & Wellness auf höchstem Niveau, wo Spezialisten aus allen Bereichen zusammenkommen, um eine außergewöhnliche Leistung und Versorgung zu bieten!



Vereinbaren Sie gerne noch heute einen Besichtigungstermin! Ich freue mich darauf, Ihnen dieses Immobilie präsentieren zu dürfen.





Vorteile eines Ärzte- & Gesundheitszentrums



Ein Standort wie dieser bietet Ärzten, Therapeuten und Investoren zahlreiche Vorteile:



  • Interdisziplinäre Zusammenarbeit: Hohe Synergien zwischen verschiedenen Fachbereichen
  • Effizienzsteigerung: Kurze Wege für Patienten, schnelle Diagnosen & optimierte Behandlungsabläufe
  • Sehr gute Patientenfrequenz: Zentrale Lage sorgt für nachhaltige Auslastung
  • Hohe Attraktivität für Investoren: Sehr gute Vermietbarkeit, langfristige Wertsteigerung, keine Anfangsinvestitionen erforderlich.


Die unmittelbare Nähe zum 1. Bezirk und die hervorragende öffentliche Verkehrsanbindung machen diesen Standort besonders attraktiv – sowohl für Ärzte und Therapeuten als auch für Patienten, die ohne Auto anreisen.



 



Fazit



Dieses Ärzte-Center bietet eine einmalige Gelegenheit, in einer der besten medizinischen Lagen Wiens zu investieren oder eine hochwertige Praxis zu betreiben. Die Kombination aus erstklassiger Infrastruktur, modernster Ausstattung und einer exzellenten Lage macht dieses Objekt zu einem Premium-Investment – sowohl für Ärzte als auch für Kapitalanleger.



 



Optimale öffentliche Verkehrsanbindung & Lage



Perfekt an das Wiener Verkehrsnetz angeschlossen:



  • U-Bahn: U4 Rossauer Lände und U6 Währinger Straße sind jeweils nur wenige Gehminuten entfernt
  • Straßenbahn: Linien 1, D, 37, 38, 40, 41 und 42 liegen in unmittelbarer Nähe
  • Buslinien: Mehrere Busverbindungen innerhalb von 150 m
  • Bahnhof Spittelau & Franz-Josefs-Bahnhof in ca. 400 m Entfernung


Diese dichte Anbindung gewährleistet, dass Patienten, Ärzte und MitarbeiterInnen das Ärztezentrum schnell und bequem erreichen können – selbst aus angrenzenden Bezirken oder aus Wien-Umgebung kommend.



  • Nähe zum 1. Bezirk & hochfrequentierte Lage
  • Der 1. Bezirk ist fußläufig oder mit öffentlichen Verkehrsmitteln in wenigen Minuten erreichbar
  • Hohe Patientenfrequenz durch zentrale Lage im medizinischen Hotspot Wiens
  • In direkter Umgebung: Palais Liechtenstein, Medizinische Universität Wien, zahlreiche Kliniken, Apotheken und renommierte Privatpraxen
  • Diese zentrale Positionierung macht das Ärztezentrum zu einem idealen Standort für medizinische Versorgung auf höchstem Niveau und erhöht gleichzeitig die Sichtbarkeit und Attraktivität für Patienten.




Highlights auf einen Blick



  • Gesamtfläche: ca. 369,43 m²
  • Im Erdgeschoss eines repräsentativen Altbaus gelegen
  • Vollsaniert
  • Bezugsfertig
  • ÖQ-med.-konforme Bauweise
  • Nutzung: Ärztezentrum / Ambulatorium
  • Wohnungseigentum
  • Sehr gute Vermietbarkeit und hohe Renditen


Technische Ausstattung & Raumaufteilung



Das Ärztezentrum bietet eine Komplettversorgung auf höchstem Niveau und ist sowohl funktional als auch repräsentativ gestaltet.



  • 6 moderne Ordinationen (ca. 27,47 m² | ca. 20,99 m² | ca. 19,71 m² | ca. 28,59 m² | ca. 22,12 m² | ca. 11,16 m²
  • Eingriffsraum: ca. 25,81 m² – für ambulante & chirurgische Eingriffe
  • Trainings- & Therapieraum: ca. 42,28 m²
  • Empfangs- & Wartebereiche
  • Umkleiden
  • Teeküche
  • Getrennte WC-Anlagen (Patienten & Personal)
  • 3 barrierefreie Zugänge für uneingeschränkten Zugang
  • Alle Räume vollständig klimatisiert
  • Designer-Mobiliar inklusive
  • Sonos-Soundsystem
  • WLAN in allen Räumen
  • Moderne Office-Infrastruktur
  • Keine zusätzlichen Investitionskosten notwendig


 





Vermerk & weiterführende Informationen



Wir weisen ausdrücklich auf unser wirtschaftliches Naheverhältnis mit dem Abgeber/der Abgeberin hin! Irrtum und Änderungen vorbehalten! Die auf den Bildern ersichtlichen Einrichtungsgegenstände und Accessoires werden nicht mit verkauft. Eventuelle Änderungen der vorliegenden Baubeschreibung und Planung, die sich auf Grund von behördlichen Auflagen, Höherer Gewalt, Lieferengpässe oder sonst notwendigen technischen Gründen ergaben, bleiben vorbehalten. Die ursprünglich ausgeschriebene Qualitätsnorm wird jedoch jederzeit gewährleistet. Alle Angaben ohne Gewährleistungsanspruch! Die Angaben im Exposee erfolgen im Auftrag unseres Auftraggebers. Für die Richtigkeit und Vollständigkeit der uns zur Verfügung gestellten Unterlagen/Auskünfte durch Veräußerer, Behörden usw. übernehmen wir keine Gewähr. Eigene Haftung ist ausgeschlossen. Hinweis gemäß Energieausweisvorlagegesetz: Ein Energieausweis wurde vom Eigentümer bzw. Verkäufer, nach unserer Aufklärung über die generell geltende Vorlagepflicht, sowie Aufforderung zu seiner Erstellung noch nicht vorgelegt. Daher gilt zumindest eine dem Alter und der Art des Gebäudes entsprechende Gesamtenergieeffizienz als vereinbart. Wir übernehmen keinerlei Gewähr oder Haftung für die tatsächliche Energieeffizienz der angebotenen Immobilie. Wir weisen darauf hin, dass zwischen dem Vermittler und dem zu vermittelnden Dritten ein familiäres oder wirtschaftliches Naheverhältnis besteht. Der Vermittler ist als Doppelmakler tätig.


Wir weisen darauf hin, dass zwischen dem Vermittler und dem zu vermittelnden Dritten ein familiäres oder wirtschaftliches Naheverhältnis besteht.


Der Vermittler ist als Doppelmakler tätig.

Infrastruktur / Entfernungen

Gesundheit
Arzt <500m
Apotheke <500m
Klinik <500m
Krankenhaus <1.000m

Kinder & Schulen
Schule <500m
Kindergarten <500m
Universität <500m
Höhere Schule <1.000m

Nahversorgung
Supermarkt <500m
Bäckerei <500m
Einkaufszentrum <2.000m

Sonstige
Geldautomat <500m
Bank <500m
Post <500m
Polizei <500m

Verkehr
Bus <500m
U-Bahn <500m
Straßenbahn <500m
Bahnhof <500m
Autobahnanschluss <1.500m

Angaben Entfernung Luftlinie / Quelle: OpenStreetMap

Eckdaten Objektnr. 5660/7853

Art: Büro / Praxis
Land: Österreich
Zustand: Voll_saniert
Alter: Altbau
Kaufpreis: 2.900.000,00
Provision: 3% des Kaufpreises zzgl. 20% USt.
Nutzfläche: 369,43 m²
Immobilie merken Exposé

Ausstattung

Fernwärme, Dusche, Teeküche


Immobilie anfragen


Ihre persönliche Beratung

Bero Immobilien GmbH

Beatrix Fötsch

Bero Immobilien GmbH

T +43 1 997 80 64

H +43 699 11227903