Investitionsobjekt mit Potenzial, Vielfalt & Charme

Zinshaus Renditeobjekt , 9711 Paternion


Das Zinshaus befindet sich in Paternion, einer ruhig gelegenen Gemeinde in Kärnten, ideal eingebettet zwischen Villach und Spittal an der Drau. Die Lage vereint ländliche Lebensqualität mit guter Erreichbarkeit regionaler Zentren. Einkaufsmöglichkeiten, Schulen und Nahversorger sind schnell erreichbar, ebenso öffentliche Verkehrsanbindungen. Die Umgebung bietet eine attraktive Kombination aus Natur, Bergblick und Infrastruktur – ideal für Pendler, Familien und Naturliebhaber.

Beschreibung der Immobilie

Investitionsobjekt mit Potenzial, Vielfalt & Charme

In Paternion, einer ruhigen und naturnahen Gemeinde im Kärntner Raum, steht dieses Zinshaus zum Verkauf.

Das Objekt kombiniert zeitgemäßen Wohnkomfort, nachhaltige Ausstattung und solide Renditechancen.

Ideal für Anleger, die Wert auf Substanz, Vielfalt und langfristige Perspektiven legen.



Das Haus umfasst insgesamt vier Wohneinheiten, davon zwei bereits zuverlässig vermietet – ein klarer Vorteil für Käufer, die sofortige Einnahmen schätzen.



Alle Wohnungen wurden sorgfältig modernisiert und bieten:



  • Effiziente Fernwärme
  • Stilvolle Fischgrät-Parkettböden
  • Moderne Küchen mit zeitgemäßer Ausstattung
  • Ausblick auf die umliegende Bergwelt


Besonders attraktiv ist die breite Vielfalt an Wohnungsgrößen, die ein großes Spektrum an Mietinteressenten anspricht:



Wohnungsaufteilung (ca.-Angaben):



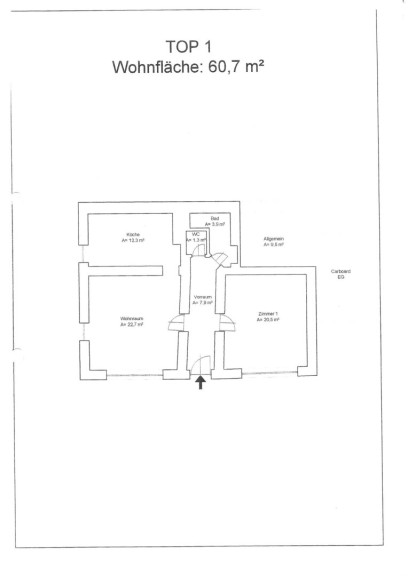
  • Top 1: 60,7 m²
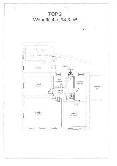
  • Top 2: 94,3 m²
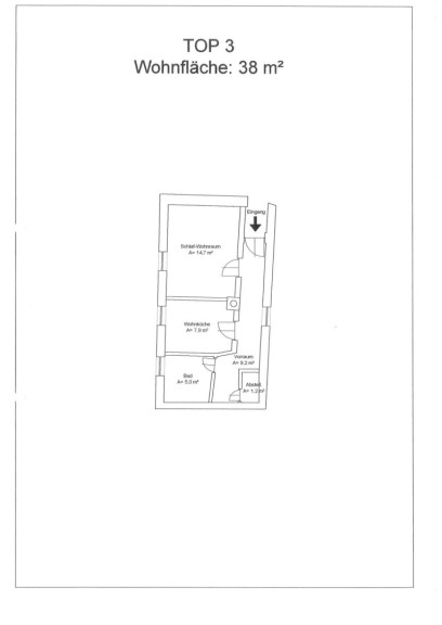
  • Top 3: 38 m²
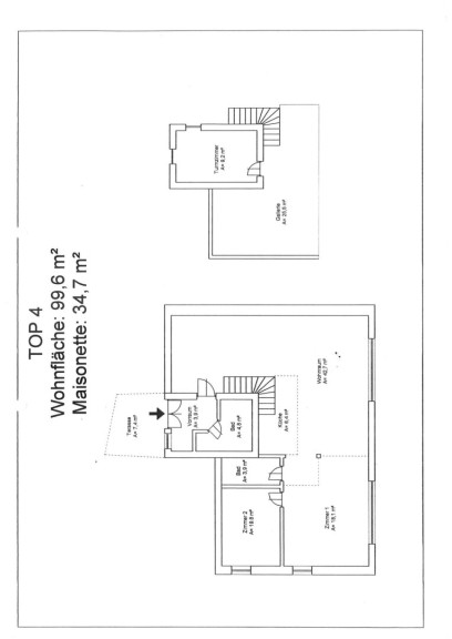
  • Top 4: 99,6 m² + Galerie mit 34,7 m²


Diese Struktur ermöglicht Wohnraum für Singles, Paare, kleine Familien oder Mieter mit erweitertem Platzbedarf – ein starker Vorteil für langfristige Vermietbarkeit und stabile Mieterträge.



Ihre Vorteile:



  • Sofortige Einnahmen: 2 Einheiten vermietet
  • Zusätzliche Ertragspotenziale durch freie Tops
  • Flexible Nutzung: selbst bewohnen oder vermieten
  • Zukunftssichere Immobilie in gefragter Wohnlage




Highlights auf einen Blick:



  • 4 Wohneinheiten (2 vermietet, 2 frei)
  • Vielfältige Wohnflächen von ca. 38 m² bis ca. 134 m²
  • Moderne, hochwertige Küchen
  • Fischgrät-Parkett – edel & gepflegt
  • Fernwärme-Heizung – einfach nachhaltig
  • Blick auf die Kärntner Bergwelt
  • Carports & Kellerabteile vorhanden
  • Ideal für breite Mietzielgruppen
  • Ruhige, naturnahe Lage
  • Solide Ertragsbasis + Wertsteigerungspotenzial




Fazit:
Ein vielseitiges Zinshaus mit alpinem Ambiente, klarer Struktur und attraktiver Renditeaussicht – eine Gelegenheit für Kapitalanleger mit Blick für Qualität und Zukunft.



Vereinbaren Sie jetzt Ihren persönlichen Besichtigungstermin unter +43 664 233 89 03, Mario Pobatschnig- Kompagnon Immobilien


Obige Angaben basieren auf Informationen des Eigentümers und sind ohne Gewähr. Irrtum und Änderungen vorbehalten. 




Hinweis gemäß Energieausweisvorlagegesetz: Ein Energieausweis wurde vom Eigentümer bzw. Verkäufer, nach unserer Aufklärung über die generell geltende Vorlagepflicht, sowie Aufforderung zu seiner Erstellung noch nicht vorgelegt. Daher gilt zumindest eine dem Alter und der Art des Gebäudes entsprechende Gesamtenergieeffizienz als vereinbart. Wir übernehmen keinerlei Gewähr oder Haftung für die tatsächliche Energieeffizienz der angebotenen Immobilie.


Der Vermittler ist als Doppelmakler tätig.

Infrastruktur / Entfernungen

Gesundheit
Arzt <1.000m
Apotheke <3.000m

Kinder & Schulen
Schule <500m
Kindergarten <2.000m

Nahversorgung
Supermarkt <2.500m
Bäckerei <2.500m

Sonstige
Geldautomat <2.500m
Bank <2.500m
Post <500m
Polizei <500m

Verkehr
Bus <500m
Autobahnanschluss <2.000m
Bahnhof <2.000m

Angaben Entfernung Luftlinie / Quelle: OpenStreetMap

Eckdaten Objektnr. 5156/12043

Art: Zinshaus Renditeobjekt
Land: Österreich
Zustand: Modernisiert
Alter: Altbau
Kaufpreis: 550.000,00
Provision: 3% des Kaufpreises zzgl. 20% USt.
Wohnfläche: 310,00 m²
Grundstücksfl.: 448,00 m²
Zimmer: 11
Bäder: 4
WC: 4
Stellplätze: 4
Immobilie merken Exposé

Ausstattung

Parkett, Fliesen, Fernwärme, Einbauküche, Bad mit Fenster, Dusche, Carport


Immobilie anfragen


Ihre persönliche Beratung

Kompagnon Immobilien GmbH

Mario Pobatschnig

Kompagnon Immobilien GmbH

T +43 664 2338903