Baubeginn I direkt beim Park I wenige Minuten bis zur Donauinsel, Neuen und Alten Donau I

Wohnung , 1210 Wien


In der Schwarzelackenau entsteht ein exklusives Neubau-Wohnprojekt in ruhiger, naturnaher Umgebung. Dieses Projekt ist für alle, die Natur und Freizeit direkt vor der Haustür schätzen. Naherholung am Wasser: Nur wenige Minuten bis zur Donauinsel, Neuen und Alten Donau – perfekte Bedingungen für Sport, Entspannung und Naturgenuss Erholung & Freizeitsport: Schwimmen, Fischen, Segeln, Radfahren und Joggen – alles schnell erreichbar. Nahversorger: -Eurospar: ca. 750m -Billa: ca. 800m Öffentliche Verkehrsmittel: -Bahnhof Wien Floridsdorf (U6, S1, S2, S3, S4, S7, Regionalzüge): -Ist der wichtigste Verkehrsknotenpunkt im Bezirk. Mit den Buslinien 30A oder 31A erreicht man den Bahnhof in ca. 10–15 Minuten. S-Bahn-Station Strebersdorf (S3, S4): -Diese Station ist mit der Buslinie 32A gut erreichbar.

Beschreibung der Immobilie

Baubeginn I direkt beim Park I wenige Minuten bis zur Donauinsel, Neuen und Alten Donau I

In der Schwarzelackenau beim Marchfeldkanal , in naturnaher Umgebung des 21. Bezirks, entsteht ein Neubauprojekt mit  insgesamt 28 freifinanzierten Eigentumswohnungen. Das Projekt umfasst insgesamt zwei Stiegen, jeweils mit 2 bis 4 Zimmer Wohnungen und Wohnflächen zwischen ca. 37 m² und 105 m²  – Alle Einheiten verfügen über Freiflächen in Form von Balkon, Terrasse oder einem Eigengarten.



Baustart – das ermöglicht Ihnen als Käufer, gemeinsam mit dem Architekten individuelle Anpassungen in der Raumgestaltung vorzunehmen und Ihre persönlichen Wohnideen zu verwirklichen.



Die Architektur ist klar und zeitgemäß, das Wohnkonzept auf langfristige Qualität ausgerichtet: Alle Wohnungen sind barrierefrei zugänglich. Beheizt wird mittels Luft/Wasser-Wärmepumpe , ergänzt durch eine Photovoltaikanlage zur Unterstützung des Allgemeinstroms. Eine Tiefgarage mit gesamt 19 Stellplätzen , steht Ihnen zur Verfügung. 



Überblick:



  • 28 Eigentumswohnungen, 2 bis 4 Zimmer (bereits 9 vergeben)
  • Zwei Stiegen - jeweils 14 Wohnungen
  • Stiege 1: 4x 2 Zi. Wohnungen, 10x 3 Zi. Wohnungen
  • Stiege 2: 4x 2 Zi. Wohnungen, 1x 2,5 Zi. Wohnung, 7x 3 Zi. Wohnungen, 1x 4 Zi. Wohnung
  • Außenflächen bei jeder Einheit: Balkon, Terrasse oder Eigengarten
  • Barrierefreier Zugang in allen Geschoßen
  • Hauseigene Tiefgarage mit 19 Stellplätzen
  • Fahrradraum / Kinderwagenabstellraum / Eigenes Kellerabteil
  • Voraussichtliche Fertigstellung: 12 / 2026


Technische Ausstattung & Komfort:



  • Wasser-Wasser-Wärmepumpe in Splitausführung (Kühlung & Heizung)
  • Photovoltaik/Solaranlage zur Reduktion von Energie- und Betriebskosten
  • Fußbodenheizung mit Raumthermostaten  
  • Fußbodentemperierung in sämtlichen Wohnbereichen
  • Elektrische Handtuchheizkörper in den Bädern
  • Unter anderem Split-Klimageräte
  • Hochwertige Innenausstattung (Eichenparkett, Feinsteinfliesen u.v.m.)
  • 3‑fach verglaste Holz‑Alu‑Fenster und Sonnenschutz in allen Wohnungen (Rollladen, Raffstores, Markisoletten) 
  • Kleinkinderspielplatz auf Eigengrund


Baustart 01.09.2025 – und schon jetzt sind 10 von 28 Einheiten vergeben.  



Was überzeugt? Ein klar strukturiertes Konzept, intelligente Grundrisse und eine Lage mit Lebensqualität. Egal ob zur Kapitalanlage oder für den Eigenbedarf – Mit diesem Wohnbauprojekt investieren Sie in Lebensqualität und Substanz! Immobilien gelten als wertbeständige und sichere Anlageform. Alle Wohnungen und Stellplätze können auch als  Vorsorge- / Anlagewohnung  mit Umsatzsteuerausweisung (weitere Vermietung verpflichtend!) erworben werden! 



Sichern Sie sich Ihre neue Vorsorgewohnung - gerne beraten wir Sie dazu!



Gerne steht Ihnen Herr Sebastian Scheuermann für weitere Fragen bzw. flexibel gestaltbare Besichtigungstermine unter +43 676 420 78 46 zur Verfügung.  
www.ringsmuth-immobilien.at

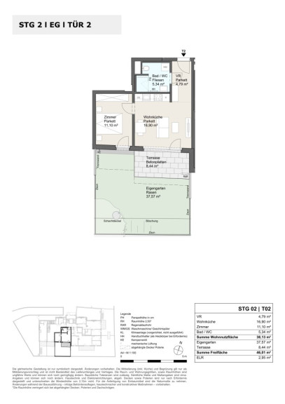
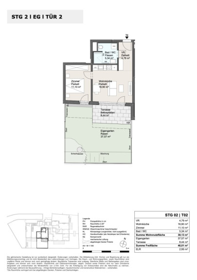
Stg. 2 Top 02 | 2 Zimmer | ca. 84  m² benutzbare Fläche



Die perfekt aufgeteilte 2 Zimmer Gartenwohnung, hat eine Wohnfläche von ca. 38 m² und eine Außenfläche von ca. 46 m².  



Ein Kellerabteil mit ca. 2,95 m² ist der Wohnung zugeordnet.



Besonders hervorzuheben: Der Bau hat bereits begonnen – das ermöglicht Ihnen als Käufer, gemeinsam mit dem Architekten individuelle Anpassungen in der Raumgestaltung vorzunehmen und Ihre persönlichen Wohnideen zu verwirklichen (solange es noch möglich ist).



Die Architektur ist klar und zeitgemäß, das Wohnkonzept auf langfristige Qualität ausgerichtet: Alle Wohnungen sind  barrierefrei zugänglich. Beheizt wird mittels Luft/Wasser-Wärmepumpe , ergänzt durch eine Photovoltaikanlage zur Unterstützung des Allgemeinstroms. Eine Tiefgarage mit gesamt 19 Stellplätzen , steht Ihnen zur Verfügung. 



Technische Ausstattung & Komfort:



  • Wärmepumpe 
  • Photovoltaik/Solaranlage zur Reduktion von Energie- und Betriebskosten
  • Fußbodenheizung mit Raumthermostaten  
  • Fußbodentemperierung in sämtlichen Zimmern
  • Hochwertige Innenausstattung (Eichenparkett, Feinsteinfliesen u.v.m.)
  • 3‑fach verglaste Kunststoff‑Alu‑Fenster und Sonnenschutz in allen Wohnungen (Rollladen, Raffstores, Markisoletten) 


Kaufpreis:



Der  Verkaufspreis  beläuft sich auf  Euro 249.000.-



Diese Wohnung kann auch als  Vorsorge- / Anlagewohnung  mit Umsatzsteuerausweisung (weitere Vermietung verpflichtend!) erworben werden: 



Anlegerpreis: Euro 224.324,-- (zzgl. 20% Ust).  



Alle Preise verstehen sich ohne Kücheneinrichtung und Tiefgaragenstellplatz ( á € 32.256.- bzw. 29.059,46.- Netto + USt) , in schlüsselfertiger Ausführung! 



Was überzeugt? Ein klar strukturiertes Konzept, intelligente Grundrisse und eine Lage mit Lebensqualität. Egal ob zur Kapitalanlage oder für den Eigenbedarf – Mit diesem Wohnbauprojekt investieren Sie in Lebensqualität und Substanz! Immobilien gelten als wertbeständige und sichere Anlageform. Alle Wohnungen und Stellplätze können auch als  Vorsorge- / Anlagewohnung  mit Umsatzsteuerausweisung (weitere Vermietung verpflichtend!) erworben werden! 



Sichern Sie sich Ihre neue Vorsorgewohnung - gerne beraten wir Sie dazu!



Gerne steht Ihnen Herr Sebastian Scheuermann für weitere Fragen bzw. flexibel gestaltbare Besichtigungstermine unter +43 676 420 78 46 zur Verfügung.  
www.ringsmuth-immobilien.at


Der Vermittler ist als Doppelmakler tätig.

Infrastruktur / Entfernungen

Gesundheit
Arzt <1.000m
Apotheke <500m
Klinik <2.500m
Krankenhaus <2.500m

Kinder & Schulen
Schule <500m
Kindergarten <1.000m
Universität <2.000m
Höhere Schule <2.000m

Nahversorgung
Supermarkt <500m
Bäckerei <1.000m
Einkaufszentrum <2.000m

Sonstige
Geldautomat <1.500m
Bank <1.500m
Post <1.500m
Polizei <1.000m

Verkehr
Bus <500m
U-Bahn <3.000m
Straßenbahn <500m
Bahnhof <1.500m
Autobahnanschluss <1.500m

Angaben Entfernung Luftlinie / Quelle: OpenStreetMap

Eckdaten Objektnr. 16416

Art: Wohnung
Land: Österreich
Zustand: Erstbezug
Kaufpreis: 249.000,00
Provision: 3% des Kaufpreises zzgl. 20% USt.
Wohnfläche: 38,13 m²
Nutzfläche: 46,57 m²
Zimmer: 2
Bäder: 1
WC: 1
Terrassen: 1
Garten: 37,57 m²
Keller: 2,95 m²
Heizwärmebedarf:  B  37,30 kWh/m²a
fGEE:  A+  0,67
Immobilie merken Exposé

Ausstattung

Estrichboden, Fliesen, Parkett, Solarenergie, Fußbodenheizung, Wohnküche / offene Küche, Personenaufzug, Dusche, Tiefgarage


Immobilie anfragen


Ihre persönliche Beratung

Alexander Ringsmuth GmbH

Sebastian Scheuermann

Alexander Ringsmuth GmbH

T +43 676 420 78 46

H +43 676 420 78 46