THE TREELINE

Haus - Doppelhaushälfte, 3400 Klosterneuburg , Hintersdorfer Straße


Der Wienerwald direkt vor der Tür. Hagenbachklamm, Donauauen, stille Wiesen, weiche Waldwege. Ein Ort, an dem man den Rhythmus der Natur wieder spürt. Freizeit & Genuss Wandern. Laufen. Schwimmen. Lachen. Ein Sprung ins Freizeitzentrum Happyland. Ein Glas Wein beim Heurigen. Ein Sommerabend mit Musik unter freiem Himmel. Nah dran & gut versorgt Supermarkt 950 m entfernt Alle großen Einzelhändler in Klosterneuburg Q19 & Gewerbegebiet in kurzer Distanz Regionale Hofläden & Bauernmärkte Raum für Familie & Zukunft Ausgezeichnete Kindergärten & Schulen in Gugging, Kierling, St. Andrä Wördern und Klosterneuburg Vielfältige Freizeitangebote für Kinder & Jugendliche Wiener Ausbildungsstätten in schneller Reichweite Schnell in der Stadt, tief in der Natur 20–25 Min. in den 17.–19. Bezirk 30 Min. ins Wiener Zentrum Direkter Bus nach Heiligenstadt Zugverbindungen nach Wien, Tulln & St. Pölten

Beschreibung der Immobilie

THE TREELINE





THE TREELINE – Leben zwischen Stadt und Wienerwald



Am sonnigen Südhang von Maria Gugging, nur wenige Minuten von Wien entfernt, entsteht mit THE TREELINE ein Wohnprojekt, das moderne Architektur, natürliche Materialien und eine ausgewogene Lebensqualität vereint.



Zwischen Wienerwald und Stadt entstehen 20 Häuser, die zeitloses Design mit nachhaltiger Bauweise verbinden. Großzügige Fensterflächen, helle Räume und private Gärten schaffen ein offenes, natürliches Wohngefühl mit Blick ins Grüne.



Die Einheiten gliedern sich in drei Haustypen – Acer, Tiliaund Betula – benannt nach Bäumen der Region. Jede Linie verkörpert ihren eigenen Charakter: klar und modern, charmant und familiär oder ruhig und elegant.



Die Häuser verfügen über Wohnflächen zwischen 99 und 134 m² und bieten vier bis fünf Zimmer, sonnige Terrassen und private Gärten. Zwei Stellplätze pro Haus, moderne Haustechnik und hochwertige Ausstattung sorgen für Komfort und Alltagstauglichkeit.



THE TREELINE liegt in einer ruhigen, grünen Umgebung mit direktem Anschluss an den Wienerwald und gleichzeitig kurzer Distanz zur Stadt. Hier verbinden sich naturnahes Wohnen, städtische Erreichbarkeit und hohe Lebensqualität – ein Zuhause für Menschen, die Ruhe, Licht und Balance suchen.



Die Liegenschaft wird im Baurecht errichtet – eine moderne und leistbare Form des Eigentumserwerbs, die langfristige Sicherheit mit attraktiven Finanzierungsmöglichkeiten verbindet. Die Projektfinanzierung erfolgt über eine renommierte Bank, wodurch Interessent:innen auf Wunsch von abgestimmten Konditionen profitieren können.





Highlights, die man spürt



• Zeitlose Architektur mit klarer Linie und warmer Seele

• Holzmassivbau

• Kontrollierte Wohnraumlüftung

• Luft-Wasser-Wärmepumpe Chronoterm – flüsterleise mit nur 25 dB

• Nachhaltige Technik – effizient, modern, selbstverständlich

• Eigene Stellplätze und Platz für Fahrräder, Kinderwagen und Sommerträume

• Gärten und Terrassen, die nicht nur außen sind, sondern Teil des Wohnraums

• Sonnenverwöhnte Südost-Ausrichtung mit Blick in den Wienerwald

• Für Familien, Paare, Freigeister – für Menschen, die das Leben lieben

• Baurechtliche Struktur mit Finanzierungsmöglichkeit über die projektfinanzierende Bank





Haus Acer – Klarheit und Raumgefühl



Zehn Häuser bilden die Linie Acer.

Sie stehen für moderne Architektur mit klaren Linien, großzügigen Fensterflächen und einem offenen Grundrisskonzept.

Fünf Zimmer auf rund 125 bis 134 m² Wohnfläche bieten Platz für Familien und Menschen, die Weite und Licht schätzen.

Große Terrassen und private Gärten schaffen fließende Übergänge zwischen Innen- und Außenraum.



Wohnfläche: 125–134 m²

Zimmer: 5

Terrassen: 25–29 m²

Gärten: 122–152 m²

2 Stellplätze direkt vor dem Haus





Preis pro Stellplatz: € 15.000





Die Häuser entstehen auf Baurechtsgrundstücken – eine attraktive Form des Eigentumserwerbs, die langfristige Sicherheit mit einer besonders effizienten Kapitalstruktur verbindet.

Die Finanzierung kann auf Wunsch über jene Bank erfolgen, die das Projekt selbst finanziert.




Wir weisen darauf hin, dass zwischen dem Vermittler und dem zu vermittelnden Dritten ein familiäres oder wirtschaftliches Naheverhältnis besteht.


Der Vermittler ist als Doppelmakler tätig.

Infrastruktur / Entfernungen

Gesundheit
Arzt <2.000m
Apotheke <2.000m
Krankenhaus <5.750m
Klinik <3.000m

Kinder & Schulen
Schule <2.000m
Kindergarten <750m
Universität <750m
Höhere Schule <10.000m

Nahversorgung
Supermarkt <750m
Bäckerei <3.750m
Einkaufszentrum <9.750m

Sonstige
Bank <3.500m
Geldautomat <3.750m
Post <2.250m
Polizei <3.500m

Verkehr
Bus <500m
Straßenbahn <8.750m
Bahnhof <4.500m
Autobahnanschluss <7.000m
Flughafen <10.000m

Angaben Entfernung Luftlinie / Quelle: OpenStreetMap

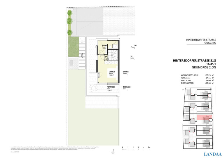
Eckdaten Objektnr. 5090

Art: Haus - Doppelhaushälfte
Land: Österreich
Baujahr: 2024
Zustand: Erstbezug
Alter: Neubau
Kaufpreis: 740.000,00
Provision: 3% des Kaufpreises zzgl. 20% USt.
Sonstige Kosten: 312,64 €
Nutzfläche: 127,25 m²
Zimmer: 5
Bäder: 2
WC: 3
Terrassen: 2
Garten: 132,60 m²
Heizwärmebedarf:  B  38,99 kWh/m²a
fGEE:  A+  0,69
Immobilie merken Exposé

Ausstattung

Fliesen, Parkett, Fußbodenheizung, Südbalkon, Bad mit Fenster, Badewanne, Dusche, Parkplatz


Immobilie anfragen


Ihre persönliche Beratung

LANDAA Immobilien GmbH

Alexandra Samarskaya, MSc

Landaa Immobilienverwertung GmbH

T +43 1 890 90 41

H +43 (0) 664 304 16 07