Modernes Kleinbüro in Döbling

Büro / Praxis , 1190 Wien


Beschreibung der Immobilie

Modernes Kleinbüro in Döbling

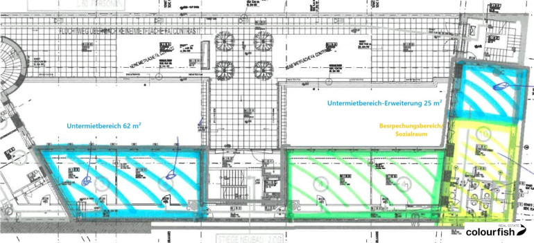
In zentraler Lage im 19. Bezirk kommen diese Büroraum in einem attraktiven Bürogebäude zur Unter-Vermietung. Die Allgemeinflächen wie Sanitäreinheiten, großzügiger Sozialraum mit Besprechungsbereich sowie die große Innenhofterrasse werden mit dem Hauptmieter gemeinsam genutzt. Büromöbel können bei Bedarf mitgemietet werden. Ein weiterer Büroraum mit einer Größe von ca. 27 m² kann separat dazu gemietet werden. 



Der Zugang erfolgt durch ein eigenes Stiegenhaus mit Lift. Die Heizung bzw. Kühlung erfolgt über Fan Coils. Aus IT Sicherheitsgründen kann die Verkabelung sowie der Internetanschluss vom Untermieter nicht genutzt werden. In der U In der hauseigenen Tiefgarage können je nach Verfügbarkeit Stellplätze angemietet werden. 



Das Standortumfeld bietet ein vielfältiges Angebot an Gastronomiebetrieben und Serviceeinrichtungen. Durch die Nähe zur U6-Station "Nußdorfer Straße" bzw. U4/U6 Station "Spittelau" sowie den Straßenbahnhaltestellen der Linien 37 und 38 ist die öffentliche Anbindung sehr gut und die Innenstadt in wenigen Minuten erreichbar.



verfügbare Fläche/Konditionen:
Neubau rechts 2. OG: ca. 27 m² - netto € 14,25/m²/Monat 

Betriebskostenkonto netto: € 2,65/m²/Monat 

Heizkostenakonto netto: € 1,10/m²/Monat

Kühlkostenakonto netto: € 0,85/m²/Monat



Pauschale für Allgemeinflächenanteil, Reinigung, Strom etc: € 365,00 (Verhandlungsbasis)



Alle Preise zzgl. 20% USt.



Ausstattung:



  • Parkettböden
  • Kühlung
  • Teeküche
  • Terrasse
  • Aufzug
  • barrierefreier Zugang
  • Büromöbel können mitgemietet werden


Öffentliche Verkehrsanbindung:
U-Bahn: U6

Straßenbahn: 37, 38



Individualverkehr:
Autobahnanbindung A22

Straßenanbindung B221, B227

Flughafen Wien Schwechat in ca. 25 Minuten erreichbar

Wien Zentrum in ca. 10 Minuten erreichbar


Wir weisen darauf hin, dass zwischen dem Vermittler und dem zu vermittelnden Dritten ein familiäres oder wirtschaftliches Naheverhältnis besteht.


Der Vermittler ist als Doppelmakler tätig.

Infrastruktur / Entfernungen

Gesundheit
Arzt <500m
Apotheke <500m
Klinik <500m
Krankenhaus <1.500m

Kinder & Schulen
Schule <500m
Kindergarten <500m
Universität <500m
Höhere Schule <1.000m

Nahversorgung
Supermarkt <500m
Bäckerei <500m
Einkaufszentrum <2.000m

Sonstige
Geldautomat <500m
Bank <1.000m
Post <1.000m
Polizei <500m

Verkehr
Bus <500m
U-Bahn <500m
Straßenbahn <500m
Bahnhof <500m
Autobahnanschluss <1.500m

Angaben Entfernung Luftlinie / Quelle: OpenStreetMap

Eckdaten Objektnr. 7397

Art: Büro / Praxis
Land: Österreich
Kaltmiete (netto): 384,75 €
Kaltmiete: 508,95 €
Miete / m²: 14,25 €
Provision: 3 BMM zzgl. 20% USt.
Betriebskosten: 124,20 €
MwSt Gesamt: 96,95 €
Nutzfläche: 27,00 m²
Heizwärmebedarf:  C  58,48 kWh/m²a
fGEE:  C  1,06
Immobilie merken Exposé

Immobilie anfragen


Ihre persönliche Beratung

Colourfish Real Estate Immobilienmakler GmbH

Florian Rainer

Colourfish Real Estate Immobilienmakler GmbH

T +43 664 930 40 909

H +43 664 930 40 909