Traum Balkon - Wohnung in Hietzinger Bestlage! Garage verfügbar!

Wohnung , 1130 Wien,Hietzing


Hietzinger Hauptstraße

Beschreibung der Immobilie

Traum Balkon - Wohnung in Hietzinger Bestlage! Garage verfügbar!

In wunderschöner Lage der Hietzinger Hauptstraße gelangt eine Balkon - Wohnung zum exklusiven Verkauf!



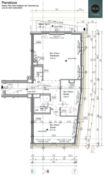
Die bestens gepflegte Wohnung befindet sich im 2. Stock (mit Lift) in einem sehr hochwertigen Neubau und hat die folgende Aufteilung: 



  • 1 Vorraum/Gang
  • 1 WC mit Waschbecken
  • 1 Wohn- Esszimmer inkl. Einbauküche mit allen Geräten (Geschirrspüler, Induktionskochfeld, Backofen, Dunstabzug, Kühl-Gefrierkombi) sowie großen Schiebeverglasungen zum Balkon 
  • 1 Balkon
  • 1 Badezimmer mit Dusche samt Glaswand, Doppelwaschbecken samt Unterschrank und Spiegel, Handtuchheizkörper sowie einem Waschmaschinenanschluss
  • 2 Zimmer

     
  • 1 Kellerabteil samt Regalen im hauseigenen Keller (mit Lift erreichbar)

     
  • 1 PKW Stellplatz in der hauseigenen Tiefgarage. Preis noch zu besprechen.


Das Haus verfügt außerdem über einen Fahrradraum.



Zur hochwertigen Ausstattung der Wohnung gehören



Raumhöhen von ca. 2,70m, Video-Gegensprechanlage, Sicherheits-Wohnungseingangstüre, Balkon in Grünruhelage, Edle Echtholz-Parkettböden, Holz-Alu-Thermo-Fenster (3-Fach verglast) samt elektrischen Aussenbeschattungen und großen Schiebeelementen im Wohnbereich, Klimaanlagen-Vorbereitung (vor der Wohnung) vorhanden, Fußbodenheizung mit Haus-Zentralheizung, Kellerabteil mit Regalen, Motorrad Abstellplätze in der Garage, Paket Raum, Fahrradraum im Haus, kleiner Spielplatz im Hof, Waschplatz im Keller (z.B. für Hunde), uvm.



Das Objekt wird unmöbliert verkauft. Die auf den Fotos teilweise abgebildeten Möbel werden nicht mit verkauft bzw. sind noch zu besprechen.



Lage



Das Objekt liegt im Herzen des charmanten Alt Hietzing (13. Bezirk), direkt an einer lebendigen Einkaufs- und Gastronomie­meile. Historische Gründerzeitfassaden wechseln sich mit modernen Neubauten ab, umgeben von gepflegten Vorgärten und schattiger Allee. Die Lage bietet beste öffentliche Anbindung – U4 Stationen Ober bzw. Unter Sankt Veit (ca. 500m) sowie Straßenbahnlinie 10 und Busse in unmittelbarer Nähe – und liegt nahe der berühmten Klimt Villa sowie dem Eingang zum UNESCO Weltkulturerbe Schloss Schönbrunn und seinen weitläufigen Parkanlagen.



Gerne stehen wir für Rückfragen oder Besichtigungen zur Verfügung!



Wir ersuchen Sie, bereits in Ihrer Anfrage Ihre vollständigen Kontaktdaten (Adresse, Mail, Telefon) anzugeben, damit wir Ihre Anfrage rascher bearbeiten können. Aufgrund der Nachweispflicht gegenüber dem Abgeber sind wir verpflichtet, vor Bekanntgabe der Adresse diese Daten aufzunehmen und ersuchen um Ihr Verständnis.



Der guten Ordnung halber halten wir fest, dass, sofern im Angebot nicht anders vermerkt, bei erfolgreichem Vertragsabschluss eine Provision anfällt, die den in der Immobilienmaklerverordnung BGBI. 262 und 297/1996 festgelegten Provisionssätzen entspricht. Diese Provisionspflicht besteht auch dann, wenn Sie die Ihnen überlassenen Informationen an Dritte weitergeben.



Einzelne Bilder oder Visualisierungen in den Vermarktungsunterlagen, Exposés oder Inseraten wurden unter Umständen digital, teilweise auch mithilfe von künstlicher Intelligenz (KI), bearbeitet und dienen ausschließlich der Veranschaulichung. Sie können vom tatsächlichen Zustand, der Ausstattung oder Ausführung der Immobilien abweichen. Verbindlich sind ausschließlich die Angaben im Kauf-/Mietangebot sowie bei Besichtigung vor Ort.



Sämtliche Ihnen hiermit übermittelte Angaben wurden uns, seitens des Abgebers bekannt gegeben. Eine Garantie auf Richtigkeit und Vollständigkeit können wir nicht übernehmen.

Noch nichts gefunden? Wir informieren Sie über geeignete Immobilienangebote noch vor allen anderen.
Legen Sie jetzt Ihren individuellen Suchagenten unter folgendem Link an. Wir schicken Ihnen passende Immobilien exklusiv vorab zu.

Suchagent anlegen - https://reas-realitaeten-asmus.service.immo/registrieren/de


Wir weisen darauf hin, dass zwischen dem Vermittler und dem zu vermittelnden Dritten ein familiäres oder wirtschaftliches Naheverhältnis besteht.


Der Vermittler ist als Doppelmakler tätig.

Infrastruktur / Entfernungen

Gesundheit
Arzt <500m
Apotheke <500m
Klinik <1.500m
Krankenhaus <1.500m

Kinder & Schulen
Schule <500m
Kindergarten <500m
Universität <1.500m
Höhere Schule <4.000m

Nahversorgung
Supermarkt <500m
Bäckerei <500m
Einkaufszentrum <3.500m

Sonstige
Geldautomat <500m
Bank <500m
Post <500m
Polizei <500m

Verkehr
Bus <500m
U-Bahn <1.000m
Straßenbahn <500m
Bahnhof <1.000m
Autobahnanschluss <4.500m

Angaben Entfernung Luftlinie / Quelle: OpenStreetMap

Eckdaten Objektnr. 3966

Art: Wohnung
Land: Österreich
Baujahr: 2018
Alter: Neubau
Kaufpreis: 698.000,00
Provision: 3% des Kaufpreises zzgl. 20% USt.
Betriebskosten: 150,35 €
MwSt Gesamt: 15,04 €
Wohnfläche: 84,89 m²
Nutzfläche: 93,63 m²
Zimmer: 3
Bäder: 1
WC: 1
Balkone: 1
Keller: 3,24 m²
Heizwärmebedarf:  B  28,42 kWh/m²a
fGEE:  A  0,77
Immobilie merken Exposé

Ausstattung

Fliesen, Parkett, Gas, Fußbodenheizung, Zentralheizung, Einbauküche, Personenaufzug, Nordbalkon, Dusche, Garage


Immobilie anfragen


Ihre persönliche Beratung

REAS Realitäten Asmus GmbH

REAS Immobilien

REAS Realitäten Asmus GmbH

T +43 664 24 77 08 7