Trieser Straße - IKANO 75qm Bürofläche

Büro / Praxis , 2351 Wiener Neudorf


Triesterstraße B17

Beschreibung der Immobilie

Trieser Straße - IKANO 75qm Bürofläche

Ausblick - Perfekt angebunden - Bürooase - Parkflächen - Fancoil



Ich freue mich auf Ihren Anruf

Paul KLEINDL 0699 1188 7600



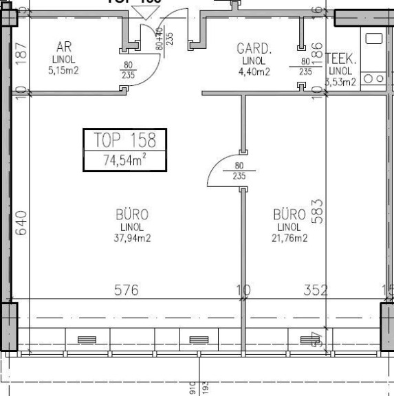
Büro mit ca. 75m² im ersten Liftstock eines Bürohauses zum sofortigen Bezug!

Werbeflächen am Turm oder Fassade möglich!



Das im Jahr 1992 fertig gestellte Bürohaus besteht aus zwei Bürogeschossen samt Nebenflächen für Büro und Lager. Außerdem gibt es eine direkte LKW-Anlieferung über den Parkplatz.

 

Ausstattung

Fancoil - Gebläsekonvektor (heizen und kühlen)

EDV-Verkabelung

Barrierefrei



LAGE und ANBINDUNG

Der IKANO-Bürokomplex liegt direkt an der B17-Triester Bundesstraße im Einzugsgebiet der Shopping City Süd und angrenzend an das IZ-NÖ-Süd. Die Südautobahn (A2) ist über den direkten Zubringer von der Triester Straße in wenigen Fahrminuten zu erreichen. Eine eigene Zufahrt und zahlreiche Parkmöglichkeiten im Außenbereich (230 Stellplätze) sowie 48 Tiefgaragenplätze garantieren eine stressfreie An- und Abfahrt für den Individualverkehr. Auch Lieferungen können problemlos über die Zufahrtsmöglichkeiten abgewickelt werden.

Für die Erreichbarkeit mit öffentlichen Verkehrsmitteln stehen die Badner Bahn (ab Karlsplatz), die Buslinie 360 (ab Hauptbahnhof), die Buslinie 2a / 2B (ab Mödling Hauptbahnhof) sowie die Buslinie 263 (ab Bahnhof Wr. Neudorf) zur Verfügung. Die Haltestellen befinden sich direkt vor dem IKANO-Bürogelände.



Resümee: 

Zentraler Bürokomfort in ländlichem Raum mit einer sehr guten Infrastruktur an der Grenze von Wien.



Autoabstellplatz EUR 40,00

Garagenplatz EUR 85,00



Alle Preisangaben verstehen sich pro Monat zuzüglich 20 Prozent Umsatzsteuer  



HWB: 55,02



Ich freue mich auf Ihren Anruf

Paul KLEINDL 0699 1188 7600




Wir weisen darauf hin, dass zwischen dem Vermittler und dem zu vermittelnden Dritten ein familiäres oder wirtschaftliches Naheverhältnis besteht.


Der Vermittler ist als Doppelmakler tätig.

Eckdaten Objektnr. 1760/656

Art: Büro / Praxis
Land: Österreich
Baujahr: 1992
Alter: Neubau
Kaltmiete (netto): 700,00 €
Kaltmiete: 972,10 €
Miete / m²: 9,39 €
Provision: 3 Bruttomonatsmieten zzgl. 20% USt.
Betriebskosten: 272,10 €
MwSt Gesamt: 194,42 €
Nutzfläche: 74,54 m²
Bürofläche: 74,54 m²
Zimmer: 2
WC: 2
Heizwärmebedarf: 55,02 kWh/m²a
Immobilie merken Exposé

Ausstattung

Zentralheizung, Personenaufzug, Teeküche


Immobilie anfragen


Ihre persönliche Beratung

Lind Immobilien

Paul Kleindl

Lind Immobilien

T +43 1 526 26 36 14

H +43 699 1188 7600