Zentrale Mietwohnung mit Balkon, Garagenstellplatz und Altstadtblick
Wohnung
- Etage,
3500
Krems an der Donau
Beschreibung der Immobilie
Zentrale Mietwohnung mit Balkon, Garagenstellplatz und Altstadtblick
Zentrale Eigentumswohnung mit Altstadtblick
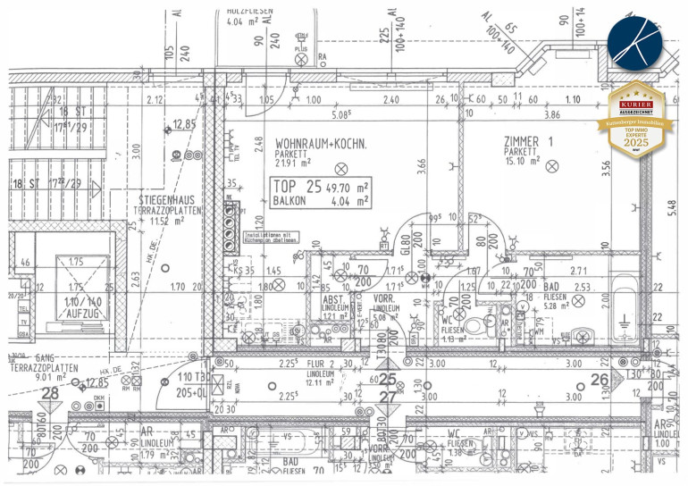
Die Wohnung gliedert sich in ein Wohn-Ess-Zimmer mit Einbauküche, ein Schlafzimmer, ein Bad mit Badewanne, ein separates WC, einen Vorraumsowie einen Abstellraum. Ein besonderes Highlight der Wohnung ist der Balkon sowie der eigene Tiefgaragenstellplatz.
Auf Wunsch kann die Wohnung gegen eine Ablöse von € 250,- teilmöbliert übernommen werden.
Die Gesamtmiete beträgt € 850,- brutto zuzüglich Strom und Heizung. Der Garagenstellplatz ist im Mietpreis inkludiert.
Außerdem steht ein Kellerabteil und ein gemeinschaftlich genutzter Fahrradraum zur Verfügung.
Die Wohnung ist ab sofort verfügbar und eignet sich ideal für Studierende. In der Nähe befinden sich mehrere Universitäten, darunter die Karl Landsteiner Privatuniversität, das IMC Krems, die Donau-Universität sowie die Danube Private University. Einkaufsmöglichkeiten, öffentliche Verkehrsmittel sowie zahlreiche Cafés, Restaurants und Freizeitangebote entlang der Donau sind bequem zu Fuß erreichbar.
Besichtigungen können nach Absprache ab sofort durchgeführt werden.
KONTAKT: Sonja Pirker 0660/6008002
Manche Fotos wurden durch Unterstützung von KI erstellt.
Wir sind immer auf der Suche nach neuen Objekten. Wenn auch Sie eine Immobilie zu verkaufen oder vermieten haben, berate ich Sie gerne über den besten Weg zum Vermittlungserfolg. Ich freue mich auf Ihren Anruf!
* * * * * * * * * * * * * * * * * *
KUTTENBERGER IMMOBILIEN - die Spezialisten für Wohnimmobilien & Zinshäuser -ausgezeichnet* mit den Qualitätssiegeln IMMO CHAMPION 2023, TOP IMMO EXPERTE 2024 und TOP IMMO EXPERTE 2025! (*von Kurier und dem IMWF - Institut für Management und Wirtschaftsforschung)
Jetzt neu: ✆ WhatsApp Assistent
Unverbindliche Beratung zu unseren Leistungen bequem über WhatsApp anfragen!
Weitere Online-Services auf www.kuttenberger-immo.at:
- Vormerkkunde werden und Angebote erhalten? - - - Suchagent anlegen - - -
- Sie möchten eine Immobilie verkaufen? - - - Beratung anfragen - - -
- Die passende Finanzierung finden? - - - Online Kreditrechner - - -
- Wieviel ist meine Immobilie wert? - - - Immobilie online bewerten - - -
- Künftig keine Immo-News verpassen? - - - Email-Newsletter anmelden - - -
* * * * * * * * * * * * * * * * * *
Wir weisen darauf hin, dass zwischen dem Vermittler und dem zu vermittelnden Dritten ein familiäres oder wirtschaftliches Naheverhältnis besteht.
Der Immobilienmakler erklärt, dass er – entgegen dem in der Immobilienwirtschaft üblichen Geschäftsgebrauch des Doppelmaklers – einseitig nur für den Vermieter tätig ist.
Infrastruktur / Entfernungen
Gesundheit
Arzt <500m
Apotheke <500m
Klinik <500m
Krankenhaus <1.500m
Kinder & Schulen
Schule <500m
Kindergarten <500m
Universität <1.000m
Höhere Schule <1.000m
Nahversorgung
Supermarkt <500m
Bäckerei <500m
Einkaufszentrum <2.000m
Sonstige
Geldautomat <500m
Bank <500m
Post <500m
Polizei <500m
Verkehr
Bus <500m
Autobahnanschluss <2.000m
Bahnhof <500m
Flughafen <5.000m
Angaben Entfernung Luftlinie / Quelle: OpenStreetMap
Eckdaten Objektnr. 8164/2596
| Art: | Wohnung - Etage |
| Land: | Österreich |
| Alter: | Neubau |
| Gesamtmiete: | 850,00 € |
| Kaltmiete (netto): | 850,00 € |
| Kaltmiete: | 850,00 € |
| Provision: | Gemäß Erstauftraggeberprinzip bezahlt der Abgeber die Provision. |
| Wohnfläche: | 49,70 m² |
| Nutzfläche: | 53,74 m² |
| Zimmer: | 2 |
| Bäder: | 1 |
| WC: | 1 |
| Balkone: | 1 |
| Heizwärmebedarf: | 40,00 kWh/m²a |
Ausstattung
Fernwärme, Personenaufzug, Tiefgarage
Ihre persönliche Beratung
Sonja Pirker
Kuttenberger Makler GmbH
T +43 660 6008002