Schöne und sonnige 1,5 Zimmer Wohnung/Büro mit großer Loggia! Befristet vermietet!

Wohnung , 1100 Wien


Beschreibung der Immobilie

Schöne und sonnige 1,5 Zimmer Wohnung/Büro mit großer Loggia! Befristet vermietet!

Zum Verkauf gelangt diese gepflegte, südseitig gelegene und dadurch sonnige 1,5 Zimmer Wohnung/Büro in einem schönen Neubau-Haus mit einer ca. 9 m² großen Loggia. Verkehrstechnisch gut, trotzdem relativ ruhig gelegen, mit idealer Infrastruktur.



Optimal gedämmte Fassaden senken die Heizkosten auf ein Minimum. Die funktional angefertigte komplett eingerichtete Küche (Geschirrspüler, Kühlschrank, E-Herd mit Glaskeramikkochfeld und Umluft-Dunstabzugshaube) lässt auch keine Wünsche offen. Im Eingangsbereich wurde ein ansprechender und leicht zu pflegender Linoleum-Boden verlegt. Die Wohnung liegt als einzige im vierten Stockwerk, das heißt man hat keine direkten Nachbarn. Die Sonne scheint hier fast über den ganzen Tag in die schöne Wohnung und die Loggia. 



Ein hoher, trockener Kellerabteil und ein Fahrradabstellraum stehen Ihnen zur Verfügung. Ein Garagenplatz kann für monatlich ca. € 100,- angemietet werden. Zusätzlich dazu gibt  es Besucherparkplätze in der Garage.



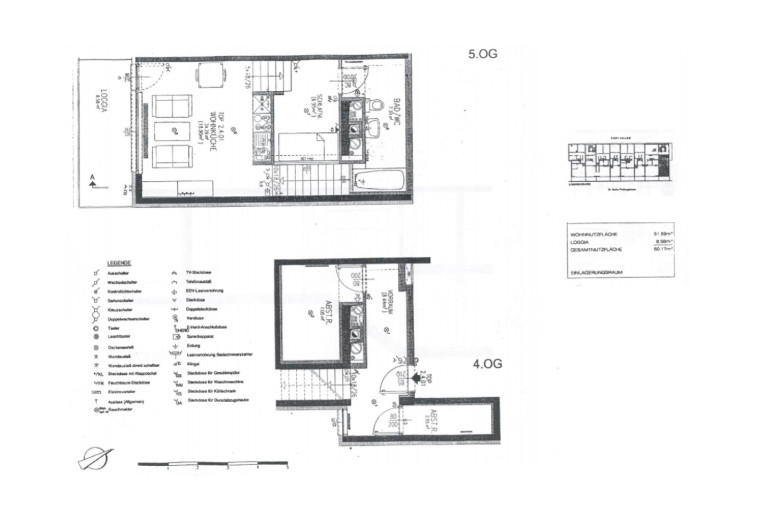
Sie liegt im 4. Liftstock und gliedert sich auf wie folgt:



  • Vorraum mit Sicherheitstür,
  • Abstellkammer,
  • kleines Zimmer ohne Fenster,
  • Wohnzimmer mit Küche und Zugang zur Loggia,
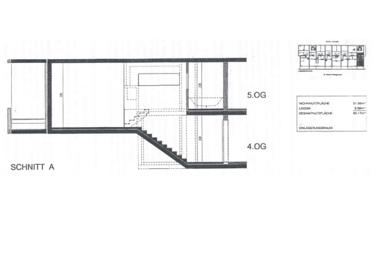
  • Relaxbereich eine halbe Ebene über dem Wohnzimmer, 
  • Bad mit Badewanne und WC, 
  • ca. 9 m² Loggia und ein hohes Kellerabteil mit ca. 2 m²




Derzeit wird die Wohnung als Büro für ca. € 1100 pro Monat an eine Rechtsanwaltskanzlei vermietet. Der Vertrag läuft noch bis März 2027!



Betriebskosten:  € 180,- (Reparaturfonds inkludiert)



Provision: 3% vom Verkaufspreis





Infrastruktur:



Die verkehrgünstige Lage begünstigt eine sehr gute Infrastruktur, die alle Bedürfnisse des Alltags, wie Geschäfte, Restaurants, Cafés, Bars, Fitnesscenter und Kino, in unmittelbarer Umgebung deckt.





Öffentliche Verkehrsanbindung:



Autobus 65A in 1 Minute und 15A in 4 Minuten erreichbar, 



die U2 wird 2025 bis zur Wienerberg City verlängert





Für genauere Informationen und Besichtigungstermine steht Ihnen Herr Mag. Ahmet Turan DAMAR unter der Telefonnummer +43 670 7759477 bzw. atd@damar.at zur Verfügung.



Weitere Angebote finden Sie auf www.damar.at



DAMAR REAL ESTATE e.U. verarbeitet personenbezogene Daten nach den datenschutzrechtlichen Bestimmungen. Weitergehende Informationen sind unter www.damar.at/datenschutzinformation zu finden.



Obige  Angaben basieren auf Informationen und Unterlagen des   Eigentümers. Der  guten Ordnung halber möchten wir festhalten, dass im   Falle eines  Abschlusses mit Ihnen oder einem von Ihnen namhaft   gemachten Dritten  unser Honorar (lt. Honorarverordnung für   Immobilienmakler, BGBl. 262 und  297/1996) 3% des Verkaufspreises zzgl.   der gesetzlichen MwSt. beträgt.  Wir weisen auf ein wirtschaftliches   Naheverhältnis zum Eigentümer hin.  Es gelten unsere allgemeinen   Geschäftsbedingungen. Irrtum vorbehalten.

Infrastruktur / Entfernungen

Gesundheit
Arzt <500m
Apotheke <500m
Klinik <500m
Krankenhaus <500m

Kinder & Schulen
Schule <500m
Kindergarten <500m
Universität <2.000m
Höhere Schule <1.500m

Nahversorgung
Supermarkt <500m
Bäckerei <500m
Einkaufszentrum <1.500m

Sonstige
Geldautomat <500m
Bank <500m
Post <500m
Polizei <1.500m

Verkehr
Bus <500m
U-Bahn <1.500m
Straßenbahn <1.000m
Bahnhof <1.500m
Autobahnanschluss <2.000m

Angaben Entfernung Luftlinie / Quelle: OpenStreetMap

Eckdaten Objektnr. 6840/206

Art: Wohnung
Land: Österreich
Zustand: Gepflegt
Alter: Neubau
Kaufpreis: 339.000,00
Kaufpreis / m²: 5.634,04 €
Provision: 3% des Kaufpreises zzgl. 20% USt.
Wohnfläche: 51,59 m²
Nutzfläche: 60,17 m²
Gesamtfläche: 60,17 m²
Zimmer: 1,50
Bäder: 1
WC: 1
Keller: 2,00 m²
Immobilie merken Exposé

Ausstattung

Parkett, Fliesen, Fernwärme, Wohnküche / offene Küche, Personenaufzug, Südbalkon, Badewanne, Kabel/Satelliten-TV


Immobilie anfragen


Ihre persönliche Beratung

DAMAR REAL ESTATE e.U.

Mag. Ahmet Turan Damar

DAMAR REAL ESTATE e.U.

T +43 670 7759477