360° TOUR / Modernes 4-Zimmer-Altbaubüro in zentraler Lage von Klagenfurt - Nähe Alter Platz

Büro / Praxis , 9020 Klagenfurt am Wörthersee


Beschreibung der Immobilie

360° TOUR / Modernes 4-Zimmer-Altbaubüro in zentraler Lage von Klagenfurt - Nähe Alter Platz

Modernes 4-Zimmer-Altbaubüro in zentraler Lage von Klagenfurt - Nähe Alter Platz



Zur unbefristeten Vermietung (Kündigungsverzicht 2 Jahre bzw. abzustimmen) gelangt ein modernes 4-Zimmer-Altbaubüro in allerbester, zentraler Lage von Klagenfurt - Nähe Alter Platz



  • Dieses ca. 136,96 m² große Altbaubüro befindet sich in einem historischen Jahrhundertwendehaus (ca. 1669), besticht vor allem durch die sehr gute Infrastrukturlage im Herzen von Klagenfurt.
  • Das Objekt selbst liegt im 1. Obergeschoss (Lift) eines gepflegten Jahrhundertwendehauses.
  • beste Citylage
  • Parkplätze / Dauerparker sind ev. um ca. € 95,00 - € 147,00 in den umliegenden APCOA Garagen verfügbar
  • gute öffentliche und individuelle Verkehrsanbindung
  • monatliches Heizkostenakonto: derzeit ca. € 180,10 netto zuzüglich 20% Ust., € 216,12 brutto ist in der Gesamtmiete beinhaltet
  • Adaptierungsmaßnahmen und Details (notwendige Änderungen, Sanierungs-, oder Adaptierungsarbeiten am Objekt, Kündigungsverzicht, Mietbeginn, etc.) wären mit dem Vermieter noch gesondert abzustimmen
  • Änderungen vorbehalten!


360 Grad Tour: https://360.feelestate.ch/view/portal/id/VZ7P1


Besichtigungswunsch: Höflichst ersuchen wir Sie um telefonische Kontaktaufnahme - Kontakt: siehe Angebotsunterlagen.



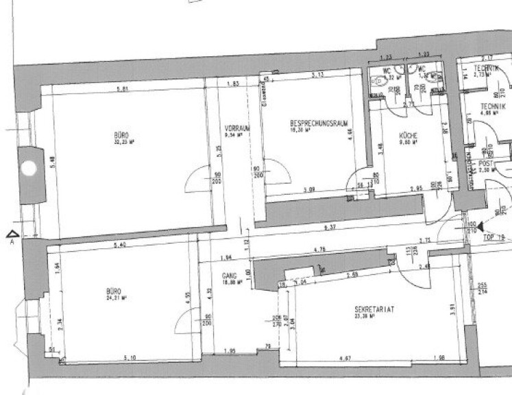
Raumaufteilung und Ausstattung:



- Vorraum

- Raum 1

- Raum 2

- Raum 3 

- Raum 4 ohne Fenster

- Teeküche

- 2 getrennte Toiletten



- Parkett-, und Fliesenböden

- Holzfenster

- Trennwände aus Glas

- teilweise Gewölbedecken

- Fernwärme



- Energieausweis (HWB 82,78 kWh/m²a, HWB-Klasse C, fGEE 1,64 kWh/m²a, HWB-Klasse C, lt. EA vom 11.02.2013)

- Ein neuer Energieausweis für diese Immobilie wurde beim Eigentümer schriftlich angefordert und über die neue Rechtslage (EAVG 2012) wurde schriftlich aufgeklärt.



HINWEIS:



Wir bedanken uns sehr herzlich für IHRE Anfrage und ersuchen SIE um IHR wertes Verständnis, dass von unserem Unternehmen NUR VOLLSTÄNDIG AUSGEFÜLLTE ANFRAGEN (NAME, ANSCHRIFT, TELEFONNUMMER) bearbeitet werden können!



Sehr gerne übermitteln wir IHNEN auf Wunsch IHR persönliches, detailliertes Exposè zu diesem Objekt oder arrangieren IHREN persönlichen Besichtigungstermin! Wir bedanken uns für IHR Interesse, stehen IHNEN jederzeit für Fragen sehr gerne zur Verfügung!



Schon heute für IHRE Realität von morgen!


Der Vermittler ist als Doppelmakler tätig.

Infrastruktur / Entfernungen

Gesundheit
Arzt <500m
Apotheke <500m
Krankenhaus <1.000m
Klinik <1.000m

Kinder & Schulen
Schule <500m
Kindergarten <500m
Universität <1.000m
Höhere Schule <1.000m

Nahversorgung
Supermarkt <500m
Bäckerei <500m
Einkaufszentrum <500m

Sonstige
Bank <500m
Geldautomat <500m
Post <500m
Polizei <500m

Verkehr
Bus <500m
Autobahnanschluss <3.500m
Bahnhof <1.500m
Flughafen <3.500m

Angaben Entfernung Luftlinie / Quelle: OpenStreetMap

Eckdaten Objektnr. 1178

Art: Büro / Praxis
Land: Österreich
Baujahr: 1669
Zustand: Gepflegt
Alter: Altbau
Kaltmiete (netto): 1.205,25 €
Kaltmiete: 1.507,77 €
Provision: 6.076,33 € inkl. 20% USt.
Betriebskosten: 259,95 €
Heizkosten: 180,10 €
MwSt Gesamt: 337,57 €
Nutzfläche: 136,96 m²
Bürofläche: 136,96 m²
Zimmer: 4
WC: 2
Heizwärmebedarf:  C  82,78 kWh/m²a
fGEE:  C  1,64
Immobilie merken Exposé

Ausstattung

Parkett, Fliesen, Fernwärme, Personenaufzug, Teeküche


Immobilie anfragen


Ihre persönliche Beratung

SCHIFFER Immobilien GmbH

Mag. Ing. Christoph Schiffer, MSc

SCHIFFER Immobilien GmbH

T +43 1/47 097 17

H +43 676/930 36 52

F +43 1/47 097 17