Geschäftsfläche im Haus „VITEA“ – Ort des gemeinsamen Lebens

Büro / Praxis , 6210 Wiesing


Die Fläche befindet sich in bestens erreichbarer Lage von Wiesing – unmittelbar neben der Autobahnanschlussstelle Wiesing und somit ideal angebunden an das Achental, Zillertal und Inntal. Durch die strategische Position profitiert der Standort von hoher Sichtbarkeit und schneller Erreichbarkeit sowohl mit dem Auto als auch öffentlichen Verkehrsmitteln. Die Umgebung ist geprägt von Wohn- u. Dienstleistungsnutzung und bietet ein modernes, lebendiges Umfeld mit stetig wachsender Frequenz.

Beschreibung der Immobilie

Geschäftsfläche im Haus „VITEA“ – Ort des gemeinsamen Lebens

Geschäftsfläche im Haus „VITEA“ – Ort des gemeinsamen Lebens



Sichern Sie sich jetzt Ihre Geschäftsfläche an einem Top-Standort in Wiesing! Das neue Generationenhaus „VITEA“ vereint Leben, Gesundheit und Gemeinschaft und bietet ideale Voraussetzungen für Gesundheits- und Serviceanbieter. Das Haus ist bereits durch einen Kindergarten und Pflegewohnungen geprägt – ein lebendiges Umfeld mit hoher Frequentierung.



Ideal geeignet für:



  • Sanitätshaus
  • Apotheke
  • Arztpraxis oder Radiologie
  • Physiotherapie oder andere Therapieeinrichtungen


Lage & Erreichbarkeit:



  • 6210 Wiesing, Dorf 102a
  • Direkt neben der Autobahnanschlussstelle Wiesing
  • Sehr gute Erreichbarkeit aus Achental, Zillertal und Inntal
  • Strategischer Standort für maximale Sichtbarkeit und Kundenfrequenz


Flächen & Ausstattung:



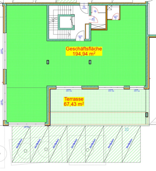
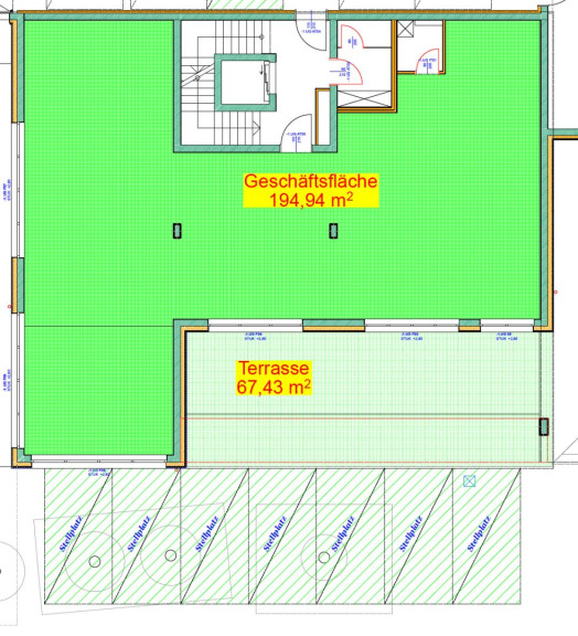
  • Geschäftslokal: ca. 198,06 m²
  • Terrasse: ca. 67,43 m²
  • Raumhöhe: ca. 3,30 m
  • Barrierefrei zugänglich
  • 7 Autoabstellplätze direkt vor der Fläche
  • Fläche wird im Edelrohbau angeboten – Innenausbau nach Wunsch des Mieters möglich
  • Zusätzlich: Weitere Stellplätze in der hauseigenen Tiefgarage
  • Zusätzlich: Lagerflächen bis zu 144 m² im KG verfügbar


Baustand & Fertigstellung:



  • Baustart bereits erfolgt
  • Fertigstellung geplant für Herbst 2026


Mietkonditionen:



  • Nettomietpreis inkl. 7 Stellplätze: EUR 4.087,83 zzgl. 20% USt. u. BK p.M.
  • Mietnebenkosten: Mietvertragserstellung, Vergebührung beim Finanzamt, Vermittlungshonorar


Bei Mietern, die umsatzsteuerbefreite Leistungen erbringen (z. B. Ärzte), versteht sich die Miete sowie die Betriebskosten inklusive Umsatzsteuer (netto/brutto).



VITEA LEBEN – Vita/Vitalität trifft Team/Gemeinschaft. Nutzen Sie die Chance, sich jetzt an diesem erstklassigen Standort eine moderne, individuell gestaltbare Fläche zu sichern, die Gesundheit, Leben und Miteinander perfekt verbindet.



Interesse geweckt?
Ich freue mich auf Ihre Anfrage!



Mario Tribus
Tiroler Immobilien



Tel. +436645252294

Mail. tribus@tiroler-immobilien.at 

Infrastruktur / Entfernungen

Gesundheit
Arzt <500m
Apotheke <2.500m
Klinik <6.500m
Krankenhaus <3.000m

Kinder & Schulen
Schule <1.000m
Kindergarten <1.000m

Nahversorgung
Supermarkt <500m
Bäckerei <500m
Einkaufszentrum <7.000m

Sonstige
Bank <500m
Geldautomat <500m
Post <2.000m
Polizei <500m

Verkehr
Bus <500m
Bahnhof <1.500m
Autobahnanschluss <500m

Angaben Entfernung Luftlinie / Quelle: OpenStreetMap

Eckdaten Objektnr. 1138

Art: Büro / Praxis
Land: Österreich
Baujahr: 2025
Zustand: Erstbezug
Alter: Neubau
Nutzfläche: 198,06 m²
Zimmer: 1
WC: 1
Terrassen: 1
Stellplätze: 7
Heizwärmebedarf:  B  37,00 kWh/m²a
fGEE:  A+  0,65
Immobilie merken Exposé

Ausstattung

Personenaufzug, Parkplatz


Immobilie anfragen


Ihre persönliche Beratung

TIV Tiroler Immobilien und Vertriebs GmbH

Mario Tribus

TIV Tiroler Immobilien und Vertriebs GmbH

T +43 5372 220 80 - 130

H +43 664 5252294