Charmanter Altbauflair im Herzen der Wiener Innenstadt
Wohnung
,
1010
Wien
Beschreibung der Immobilie
Charmanter Altbauflair im Herzen der Wiener Innenstadt
Charmanter Altbauflair im Herzen der Wiener Innenstadt – Leben, wo die Stadt pulsiert!
Mitten im 1. Bezirk, in der historischen Inneren Stadt, nur wenige Schritte von der weltberühmten Wiener Staatsoper und der charmanten Kärntnerstraße entfernt, erwartet Sie hier eine der begehrtesten Lagen Wiens. Genießen Sie das unvergleichliche Flair der Altstadt, umgeben von prachtvollen historischen Gebäuden, gemütlichen Cafés, stilvollen Restaurants und lebendigen Bars. Alle Geschäfte des täglichen Bedarfs sind bequem zu Fuß erreichbar – hier wohnen Sie, wo das Leben pulsiert.
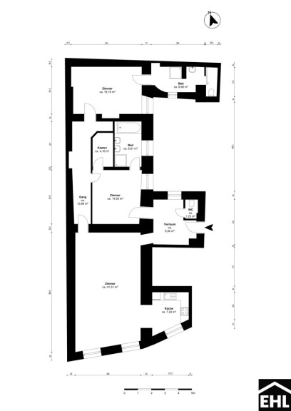
Die Wohnung befindet sich in der 2. Etage eines stilvollen Hauses und überzeugt durch ihre Großzügigkeit, helle Räume und durchdachte Raumaufteilung. Das geräumige Wohnzimmer bietet viel Platz für ruhige Momente sowie gesellige Runden. Die daran angrenzende Küche mit Tageslicht ist hochwertig modern ausgestattet und ein Paradies für kulinarische Genießer.
Zwei absolut ruhig gelegene Schlafzimmer sorgen für Privatsphäre und Komfort. Jedes der beiden Schlafbereiche verfügt über ein eigenes Bad - das erste ist mit Dusche und WC ausgestattet, das zweite mit Badewanne, Dusche, Doppelwaschbecken und WC – ideal für Familien oder Gäste. Ein praktischer Schrankraum mit Tischlermöbel bietet ausreichend Stauraum - ergänzt wird die Wohnung durch einen Vorraum mit Gäste-WC.
Moderne Annehmlichkeiten wie eine Klimaanlage sorgen für Behaglichkeit zur jeder Jahreszeit. Die Kombination aus eleganten, großzügigen Wohnräumen und hochwertiger Ausstattung macht diese Wohnung zu einem besonderen Rückzugsort mitten in der Wiener Innenstadt.
Ausstattung:
- Hochwertige vollausgestattete Küche
- 2 moderne Badezimmer
- Gäste-WC
- Vollmöblierter Schrank- und Stauraum
- Hochwertiger Parkett in den Wohnräumen
- Fließen in den Nassräumen
- Klimaanlage
Verkehrsanbindung:
U-Bahn-Linien: U2, U3, U4
Straßenbahnlinien: 1, 2, 71, D, Badener Bahn
Bus-Linien: 2A, 311, FlixBus
Die Kosten für Heizung und Warmwasser werden nach Verbrauch abgerechnet.
Befristung: 5 Jahre, 1 Jahr Kündigungsverzicht, 3 Monate Kündigungsfrist
Nebenkosten: 3 BMM, Vertragserrichtungsgebühr
Der Immobilienmakler erklärt, dass er – entgegen dem in der Immobilienwirtschaft üblichen Geschäftsgebrauch des Doppelmaklers – einseitig nur für den Vermieter tätig ist.
Infrastruktur / Entfernungen
Gesundheit
Arzt <500m
Apotheke <500m
Klinik <1.000m
Krankenhaus <1.500m
Kinder & Schulen
Schule <500m
Kindergarten <1.000m
Universität <500m
Höhere Schule <500m
Nahversorgung
Supermarkt <500m
Bäckerei <500m
Einkaufszentrum <500m
Sonstige
Geldautomat <500m
Bank <500m
Post <500m
Polizei <500m
Verkehr
Bus <500m
U-Bahn <500m
Straßenbahn <500m
Bahnhof <500m
Autobahnanschluss <3.500m
Angaben Entfernung Luftlinie / Quelle: OpenStreetMap
Eckdaten Objektnr. 90997
| Art: | Wohnung |
| Land: | Österreich |
| Zustand: | Voll_saniert |
| Alter: | Altbau |
| Gesamtmiete: | 3.800,00 € |
| Kaltmiete (netto): | 3.098,83 € |
| Kaltmiete: | 3.409,09 € |
| Provision: | Gemäß Erstauftraggeberprinzip bezahlt der Abgeber die Provision. |
| Betriebskosten: | 263,38 € |
| MwSt Gesamt: | 390,91 € |
| Wohnfläche: | 121,75 m² |
| Zimmer: | 3 |
| Bäder: | 2 |
| WC: | 2 |
| Heizwärmebedarf: | D 126,10 kWh/m²a |
| fGEE: | D 1,92 |
Ausstattung
Gas, Etagenheizung, Fußbodenheizung, Einbauküche, Personenaufzug, Bad mit Fenster, Badewanne, Dusche
Ihre persönliche Beratung
Dieser Makler ist ein offizielles Mitglied des IR – ir.at Mehr Erfahren
