Zentrale 2-Zimmer-Wohnung in Tulln

Wohnung , 3430 Tulln an der Donau


5 min Zentrum Tulln 7 min Bahnhof Stadt Tulln

Beschreibung der Immobilie

Zentrale 2-Zimmer-Wohnung in Tulln

Zentral, ruhig und gut angebunden: Diese 2-Zimmer-Wohnung im 3. Stock (mit Lift) in einer charmanten Seitengasse von Tulln kommt zur Vermietung und bietet eine angenehme Atmosphäre.



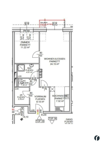
Schon beim Eintreten der ca. 61m² großen Wohnung bietet der Eingangsbereich praktischen Stauraum dank eines Abstellraums.

Gleich daneben befindet sich das Badezimmer mit Dusche, Waschbecken und Anschluss für die Waschmaschine, sowie ein separates WC.

Die offene Wohnraumküche, die mit einem Miele-Herd samt Ceranfeld, Dunstabzug, Mikrowelle, Geschirrspüler und großer Kühl-Gefrier-Kombination ausgestattet ist, lädt zum Kochen und backen ein. Diese kann optional vom Vormieter um € 1.200,- abgelöst werden.

Vom Wohnraum aus gelangt man direkt ins Schlafzimmer und auf den überdachten Balkon, der zusätzlichen Platz zum Entspannen bietet.



Die Kunststofffenster sind 3-fach-verglast und an der Balkontüre befindet sich teilweise ein Insektenschutzgitter. Weiters befindet sich im Erdgeschoss der Anlage ein kleines Lagerabteil.



Beheizt wird die Wohnung mittels Fernwärme, welche über einen eigenen Wärmezähler über die EVN abgerechnet wird. 





Im Hof befinden sich derzeit folgende verfügbare Parkplätze, welche zu den nachstehenden Konditionen angemietet werden können:



Parkplatz im Freien - Nr. 28

€ 60,- inkl. Ust. pro Monat

Kaution: € 200,-

MW-Gebühr: € 21,60 (einmalig)



Carport-Parkplatz (voll überdacht) - Nr.19

€ 78,- inkl. Ust. pro Monat

Kaution: € 200,-

MW-Gebühr: € 28,10 (einmalig)



Garagenplatz XL (Auto + Motorrad) - Nr. 08

€ 102,- inkl. Ust. pro Monat

Kaution: € 200,-

MW-Gebühr: € 36,70 (einmalig)





Hier noch einige Infos zur Stadt Tulln:



Schule & Kindergarten:
Tulln verfügt neben zahlreichen Kindergärten und Volksschulen, außerdem über viele weitere schulische und universitäre Einrichtungen wie Hauptschule, SportNMS, MusikNMS, Gymnasium, HAK, HAS, HBLA, Musikschule und den Campus Tulln mit Universitäts- und Forschungszentrum, Universität für Bodenkultur Wien-Department IFA-Tulln-Int. Univers. Forschungsinstitut, Austrian Biotech University of Applied Sciences



Medizinische Versorgung ganz in der Nähe:
Tulln verfügt über ein eigenes Krankenhaus inklusive Unfallambulanz, Kinderambulanz, Geburtsklinik und vielen weiteren Schwerpunkten. Es gibt zahlreiche Ärzte und Apotheken.



Einkaufsmöglichkeiten:
Viele Supermärkte und das Stadtzentrum mit einem riesigen Angebot an Shopping Möglichkeiten.



Freizeit:
Aubad, Hallenbad, Eislaufplatz, zahlreiche Sportvereine, Kunst- und Kulturveranstaltungen, sowie Restaurants, Gasthäuser und Heurigen in der Umgebung stehen Ihnen zur Verfügung. 



Öffentlicher Verkehr:
Im Halbstundentakt erreichen sie mit der ÖBB vom nahegelegenen Hauptbahnhof Tulln aus in 20 Minuten Wien und in 40 Minuten Krems. Der außerhalb der Stadt gelegene Bahnhof Tullnerfeld bietet mit seiner Hochleistungsstrecke sowohl ÖBB als auch Westbahn Verbindungen zum Wiener Hauptbahnhof sowie nach Westen. St. Pölten erreichen sie in ca. 14 Minuten, Linz in ca. 1 Stunde und 10 Minuten.



Alle Infos zur Stadt Tulln finden sie auf www.tulln.at.





Hinweis: Die Angaben zu dieser Immobilie sind ohne Gewähr. Auf Grund der Nachweispflicht gegenüber dem Eigentümer ersuchen wir Sie um Verständnis, dass wir nur Anfragen mit vollständiger Anschrift und Telefonnummer bearbeiten können, sowie keine Auskünfte betreffend Objektunterlagen und der genauen Liegenschaftsadresse erteilen können. 








Der Immobilienmakler erklärt, dass er – entgegen dem in der Immobilienwirtschaft üblichen Geschäftsgebrauch des Doppelmaklers – einseitig nur für den Vermieter tätig ist.

Infrastruktur / Entfernungen

Gesundheit
Arzt <500m
Apotheke <500m
Klinik <6.500m
Krankenhaus <1.500m

Kinder & Schulen
Schule <500m
Kindergarten <500m
Universität <1.500m
Höhere Schule <1.500m

Nahversorgung
Supermarkt <500m
Bäckerei <500m
Einkaufszentrum <500m

Sonstige
Bank <500m
Geldautomat <500m
Post <500m
Polizei <500m

Verkehr
Bus <500m
Bahnhof <500m
Autobahnanschluss <3.500m
Flughafen <5.000m

Angaben Entfernung Luftlinie / Quelle: OpenStreetMap

Eckdaten Objektnr. 4900

Art: Wohnung
Land: Österreich
Gesamtmiete: 949,56
Kaltmiete (netto): 670,00 €
Kaltmiete: 863,24 €
Provision: Gemäß Erstauftraggeberprinzip bezahlt der Abgeber die Provision.
Betriebskosten: 176,91 €
MwSt Gesamt: 86,32 €
Wohnfläche: 61,29 m²
Zimmer: 2
Bäder: 1
WC: 1
Balkone: 1
Heizwärmebedarf:  A  24,00 kWh/m²a
Immobilie merken Exposé

Ausstattung

Parkett, Fliesen, Fernwärme, Wohnküche / offene Küche, Personenaufzug, Dusche


Immobilie anfragen


Ihre persönliche Beratung

Immobilien86 KG

Martin Schildberger

Immobilien 86 KG

H +43 676 9501248